Ons kantoor is lid van Baerz & Co Luxury Homes; een internationaal platform dat exclusieve woningmakelaars met elkaar verbindt. Neem contact op met ons secretariaat voor meer informatie over het landelijke aanbod, waarvan u hieronder een selectie kunt bekijken.

UITHOORN
Faunalaan 93 - 1422 ZH
هولندا

John Korver profile image
John Korver
Real estate agent
€1,343,000 k.k.
منطقة المعيشة
290m2
حجم الأرض
445m2
غرف النوم
6

الوصف

تقدم فيلا أوتهورن توازناً استثنائياً بين المساحة الرحبة ورفاهية المعيشة الراقية في حي ليغمير-ويست السكني المرغوب فيه. منذ لحظة وصولك، يرحب بك تصميم الفيلا البالغ مساحته 290 م² بالضوء والخصوصية والمرونة. يُعطي المدخل انطباعاً هادئاً، بفضل الممر الواسع الذي يتسع لعدة سيارات والشارع الهادئ الذي يؤطر حضور العقار المترف.

عند الدخول، يكشف البهو عن استخدام مثالي للمساحات وحلول تخزين مخفية. غرفة المعيشة الرئيسية يغمرها الضوء الطبيعي وتتميز بانسيابية التواصل بين الداخل والخارج، مع أبواب فرنسية تفتح على حديقة واسعة مشمسة بمساحة 445 م². توفر التراسات المتعددة، وبركة المياه، وزوايا الاسترخاء أماكن للراحة والتجمعات. المطبخ المفتوح مصمم بعناية مع جزيرة كبيرة وأجهزة عالية الجودة تلبي متطلبات الراحة والأجواء الاجتماعية. هناك غرفة متعددة الاستخدامات بمدخل خاص، مثالية كمكتب أو استوديو أو مساحة تمارين رياضية، وتوفر خصوصية واستقلالية لعشاق الإبداع والعمل المستقل.

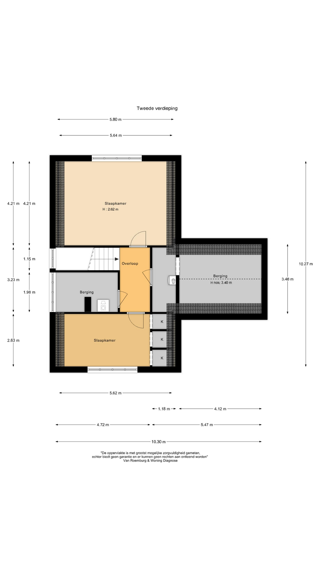
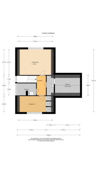
في الطابق العلوي، تحيط ثلاث غرف نوم بالمساحة المركزية، بينما تؤكد الحمامات الهادئة ومرحاض الضيوف الإضافي على رفاهية الخصوصية والراحة. ويوفر الطابق الثاني إمكانيات إضافية بفضل غرفتي نوم جديدتين ومساحات تخزين واسعة، لتلبية تطلعات العائلات المتنامية أو هواة الجمع.

في جميع أرجاء الفيلا، تضفي مواد مثل أرضيات البلوط الفرنسي مع تدفئة أرضية طابعاً فاخراً هادئاً. يربط الجراج المجهز بباب كهربائي متحرك ونظام تدفئة ومساحة عمل المنزل بكفاءة وسلاسة. توفر الفيلا مستوى كفاءة ممتاز بفضل التصنيف الطاقي A ووجود 18 لوحة شمسية ومضخة حرارية هجينة، ما يدعم حياة عصرية فعّالة.

تجمع القرب من خط ترام سريع إلى أمستردام ومجموعة من المدارس والحدائق والأندية الرياضية بين سهولة الوصول إلى المدينة وإيقاع الحياة الهادئ في أوتهورن. تقدم الفيلا ليس فقط رحابة الحيز والمهارة المعمارية، بل عنواناً تلتقي فيه الفخامة والعملية والسهولة اليومية.

استكشف Uithoorn مع Baerz، مستشارك الموثوق للعثور على العقارات الشخصية

تعقيدات السوق، من تفاصيل التفاوض إلى العقارات غير المدرجة والتنظيمات المتغيرة، تعزز قيمة التعاون مع مختصين. يقدم هؤلاء الخبراء رؤى جوهرية من تحديد العقار المناسب إلى إتمام الإجراءات القانونية. بفضل خبراتهم وشبكة علاقاتهم، يتيح المستشارون فرصاً حصرية وميزة واضحة طيلة عملية البحث والشراء.

تجنب المزالق الشائعة

غالبًا ما يهدر المشترون الدوليون وقتًا ثمينًا أثناء التنقل بين القوائم المكررة أو القديمة أو المضللة عبر الإنترنت، خاصةً أن ما يقرب من 30% من العقارات الفاخرة لا تظهر في السوق على الإطلاق.
يمثل وكلاء البائعين مصالح البائع وليس مصالحك، وحتى مجرد الاستفسار عن عقار قد يؤدي إلى تسجيلك كـ "عميل" لديهم دون موافقتك.
مع Baerz Property Finders & Advisors، يمكنك تجنب هذه المزالق تمامًا.
نحن نعمل حصريًا نيابة عنك، ونقدم لك تمثيلاً مستقلاً، وإرشادًا شفافًا، وإمكانية الوصول إلى كل عقار متاح، بما في ذلك الفرص الخاصة وغير المطروحة في السوق والتي لا يراها الآخرون أبدًا.

هل ترغب في معرفة كيفية الحصول على مستشار عقاري شخصي؟ اتصل بنا لتتعرف على كيفية تمثيل مصالحك وفتح السوق بالكامل أمامك.

الميزات

الألواح الشمسية
نقل الملكية
السعر المطلوب
€ 1.343.000 k.k.
الحالة
verkocht onder voorbehoud
القبول
in overleg
البناء
نوع المنزل
Villa
نوع المبنى
geschakelde woning
فترة البناء
2009
تقييم الطاقة
A
نوع السقف
samengesteld dak
غرف النوم
6
الحمامات
1
المساحات السطحية والحجم
منطقة المعيشة
290 m2
مساحة داخلية أخرى
22 m2
الحجم بالأمتار المكعبة
1116 m3
حجم الأرض
445 m2
المرافق
Mechanische ventilatie
Tv kabel
Rookkanaal
Dakraam
Zonnepanelen
Balansventilatie
Natuurlijke ventilatie
Aan rustige weg
In woonwijk
Baerz & Co Property Brochure

كتيب

فيديوهات

مخططات الطوابق

Korver makelaars

Stationsweg 12
3641RG Mijdrecht

welkom@korvermakelaars.nl
+31 297 25 04 21

www.korvermakelaars.nl

طلب معلومات / مشاهدة

John Korver profile image
John Korver
Real estate agent