Ons kantoor is lid van Baerz & Co Luxury Homes; een internationaal platform dat exclusieve woningmakelaars met elkaar verbindt. Neem contact op met ons secretariaat voor meer informatie over het landelijke aanbod, waarvan u hieronder een selectie kunt bekijken.

ZOETERMEER
Bellefleurhof 12 0 ong - 2728 KH
هولندا

Xandra Bek profile image
Xandra Bek
Register makelaar - taxateur
€1,345,000 k.k.
مساحة المعيشة
382m2
حجم الأرض
N/A
غرف نوم
9

الوصف

يقدم هذا المنزل شبه المستقل في زوترمير فرصة نادرة: وحدتان سكنيتان مستقلتان تماماً تحت سقف واحد، صممتا لتلبية الاحتياجات المتغيرة للسكن متعدد الأجيال أو التعايش السهل. بمساحة داخلية تبلغ 382 متر مربع موزعة على أربعة طوابق، يحقق المنزل توازناً راقياً بين الخصوصية وإمكانية المشاركة الاجتماعية من خلال غرفتي معيشة، مطبخين، وتسع غرف نوم، مع ثلاث حمامات عصرية.

تغمر الإضاءة الطبيعية المساحات الداخلية الواسعة عبر نوافذ كبيرة، مضفية على التصميم العصري خطوطاً نقية وإطارات ألمنيوم منخفضة الصيانة. كل منطقة معيشة تطل على مناظر خضراء، ما يمنح شعوراً بالهدوء في حي سكني ينبض بالأشجار الناضجة والشوارع الواسعة الهادئة. يتيح توزيع غرف النوم على جميع الطوابق مرونة الاستخدام، سواء للعائلات الكبيرة، الضيوف، أو المساحات الخاصة للعمل.

تتوفر مساحة خارجية إجمالية تبلغ 168 متر مربع، تشمل حديقة أمامية، حديقة خلفية، ثلاث شرفات، وثلاثة تراسات على السطح، لتمنحك تجربة مثالية بين أشعة الشمس والخصوصية. يتميز المنزل بزجاج HR++ وعزل عالي الجودة، مع اثني عشر لوحاً شمسياً وتصنيف الطاقة A، ما يبرز التزامه بالجودة والاستدامة. تشمل المرافق العملية موقف سيارات مغطى، موقف خاص مع محطة للشحن، وسعة للتوسعة لاحقاً. يوفر حي Noordhove deel II بيئة هادئة مع سهولة الوصول إلى المدارس الابتدائية، المرافق الرياضية، المحميات الطبيعية، وروابط مريحة إلى وسط زوترمير ولاهاي، مما يجعل هذا المنزل ملاذ عائلي متعدد الاستخدامات وهادئ.

استكشف Zoetermeer مع Baerz، مستشارك الشخصي الموثوق للعقارات

القطاع الراقي في زوترمير يستفيد من التمثيل السري والمعرفة المحلية الواسعة. يقدم المستشارون الخاصون وصولاً إلى عقارات حصرية وخبرة في التفاوض على صفقات معقدة. شبكتهم غالباً ما تكون ضرورية لشراء عقارات ذات قيمة عالية وترتيبات بيع شخصية بسرية، مما يساعد العملاء في العثور على فرص نادرة وتحقيق أفضل النتائج.

تجنب الأخطاء الشائعة

غالبًا ما يضيع المشترون الدوليون وقتًا ثمينًا على قوائم مكررة أو قديمة أو مضللة عبر الإنترنت، خاصة وأن ما يقرب من 30% من المنازل الفاخرة لا تظهر أبدًا في السوق العام. يمثل وكلاء البائعين مصالح البائع، وليس المشتري. حتى طلب معلومات عن عقار يمكن أن يؤدي إلى تسجيل وكيل البائع لك كـ "عميل" دون موافقتك.
مع بايرز فايندرز ومستشارو العقارات، تتجنب كل هذه الأخطاء تمامًا. نحن نعمل فقط نيابة عنك، ونقدم تمثيلًا مستقلًا، وإرشادات واضحة والوصول إلى جميع العقارات المتاحة، بما في ذلك الفرص خارج السوق التي لا يراها الآخرون أبدًا.

مهتم بمستشار عقارات شخصي؟

نحن نعرض لك جميع المنازل المتاحة في مكان واحد. لا تتردد في الاتصال بنا لمعرفة كيف يمكننا تلبية احتياجاتك وحماية مصالحك بشكل حصري.

الميزات

ألواح شمسية
تكييف هواء
نقل الملكية
السعر المطلوب
€ 1.345.000 k.k.
الحالة
beschikbaar
القبول
in overleg
البناء
نوع المنزل
Herenhuis
نوع المبنى
halfvrijstaande woning
فترة البناء
2002
تصنيف الطاقة
A
نوع السقف
plat dak
غرف نوم
9
حمامات
3
المساحات السطحية والحجم
مساحة المعيشة
382 m2
مساحة داخلية أخرى
0 m2
المساحة الخارجية الملحقة بالمبنى
168 m2
مساحة تخزين خارجية
9 m2
الحجم بالمتر المكعب
1262 m3
المرافق
Airconditioning
Rookkanaal
Schuifpui
Frans balkon
Glasvezel kabel
Zonnepanelen
Aan park
In woonwijk
Vrij uitzicht
Baerz & Co Property Brochure

كتيب

فيديوهات

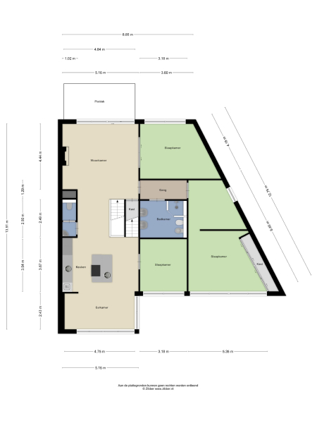
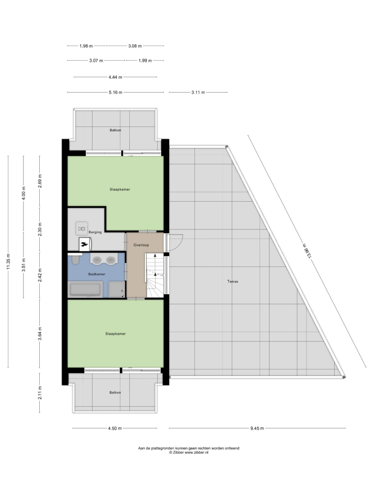
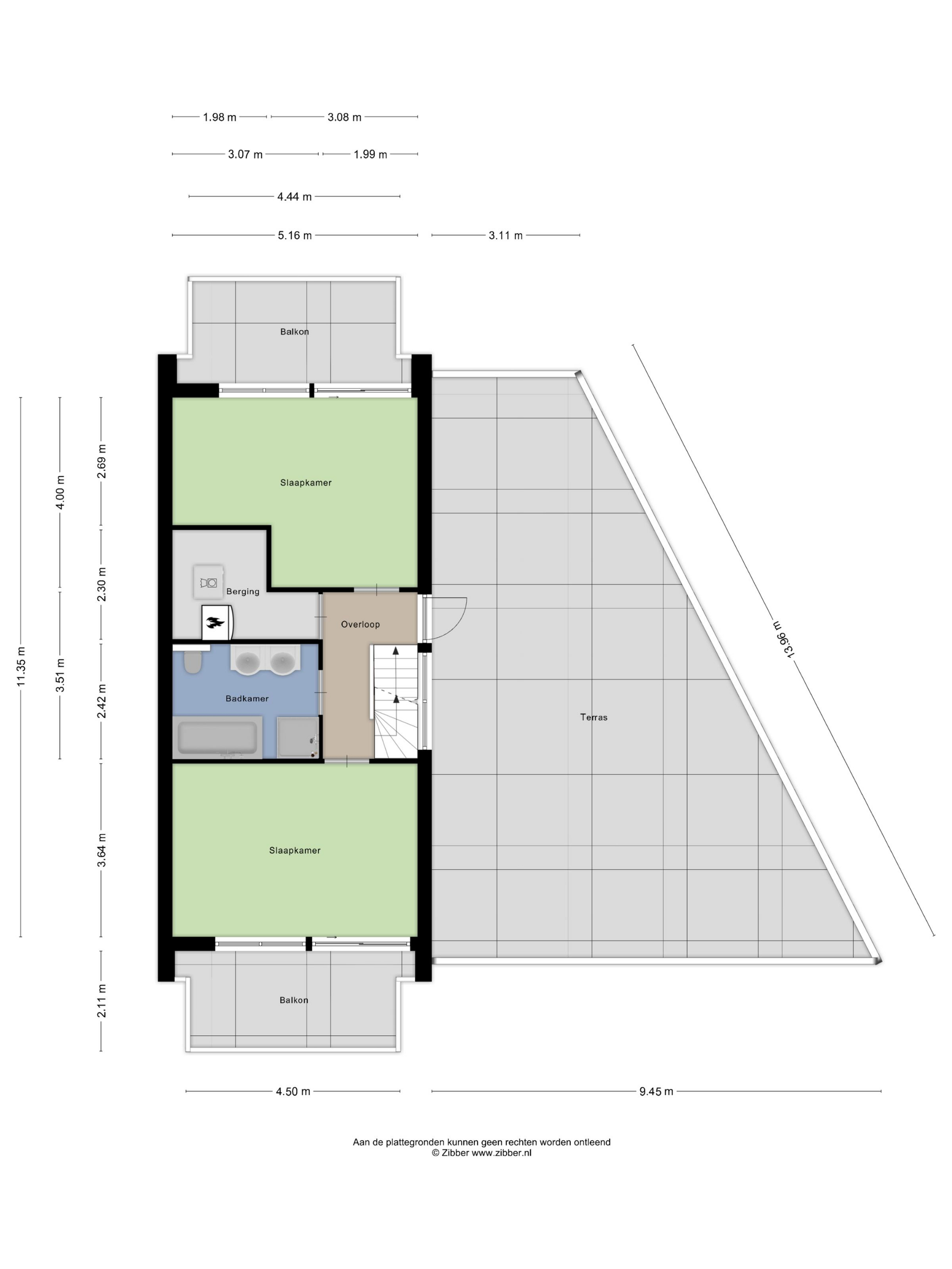
مخططات الطوابق

Van Herk Makelaars Excellent

Oudehoofdplein 4
3011 TM Rotterdam

xbek@vanherk.nl
+31 102581855

www.vanherk.nl/excellent/

طلب معلومات / مشاهدة

Xandra Bek profile image
Xandra Bek
Register makelaar - taxateur

شراء عقار فاخر في Zoetermeer

زوترمير مدينة حديثة ومرحبة تجمع بين الرقي، والخدمات الثقافية النابضة، وروابط مواصلات فعالة. يتمتع السكان بخدمات مميزة، وعقارات فاخرة، ونظرة عالمية في أجواء هادئة وديناميكية على حد سواء.