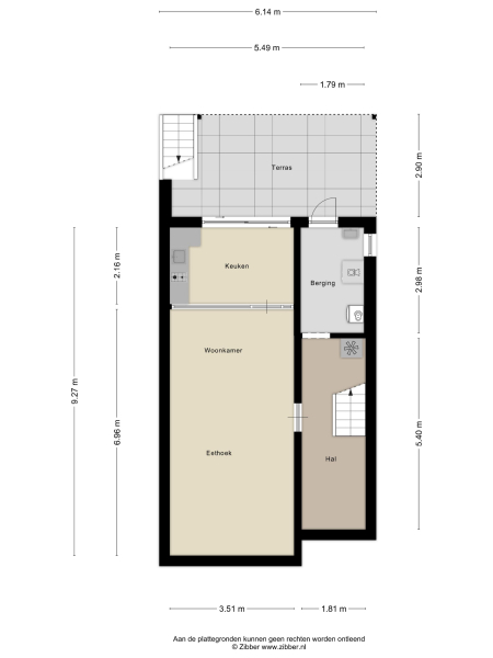
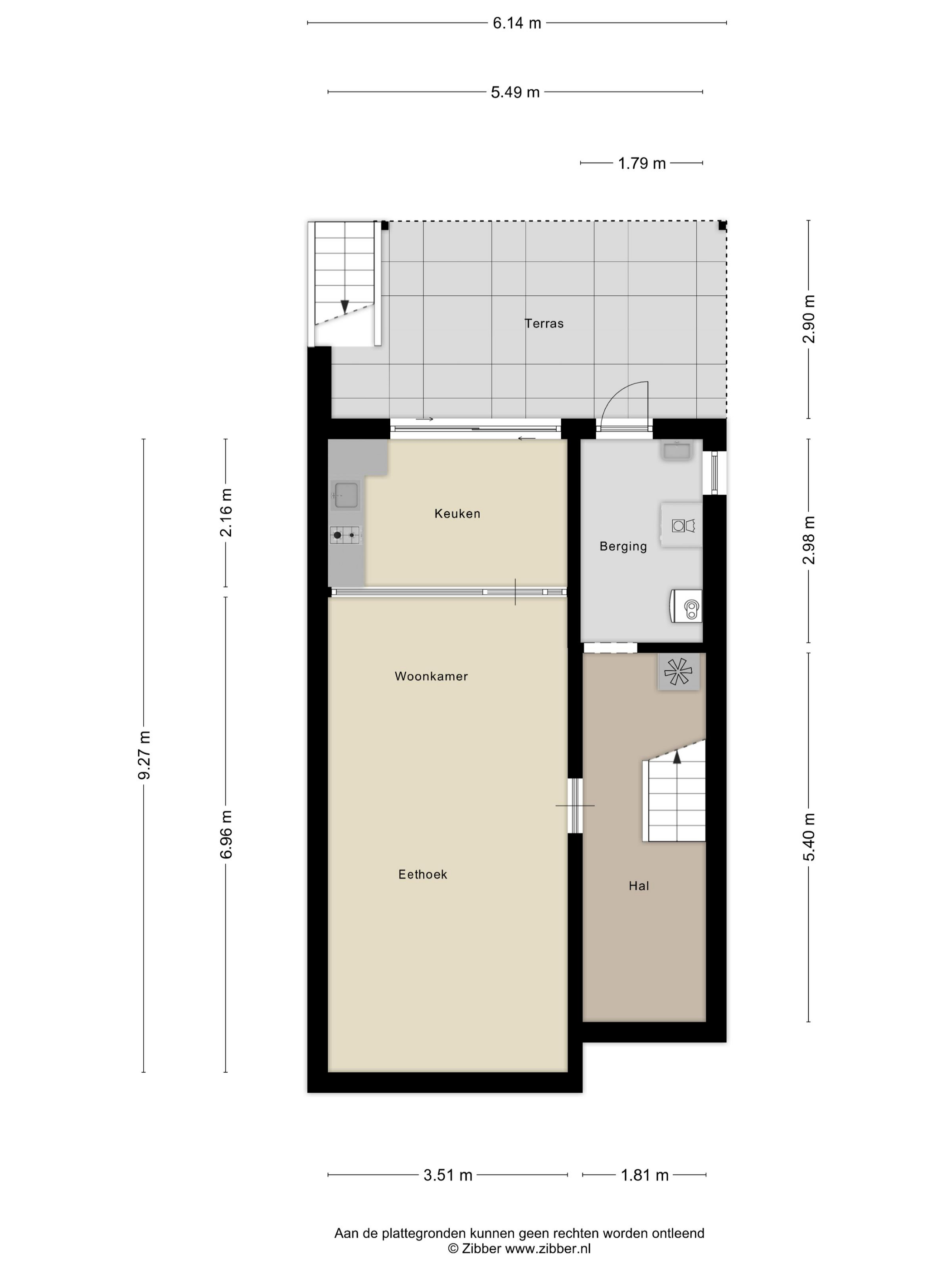
Dieses Doppelhaus in Berkel en Rodenrijs, dessen Ursprünge auf die 1930er Jahre zurückgehen, verbindet Geschichte mit Zukunftspotenzial in einer zurückhaltenden Lage an der Rodenrijse Vaart. Das Anwesen erstreckt sich über 170 m² Wohnfläche auf einem 788 m² großen Grundstück und begeistert vor allem durch seinen tiefen, besonders breiten, 28 Meter langen Garten im hinteren Bereich. Das morgendliche Licht wandert dezent über mehrere Terrassen und schafft vielseitige Bereiche für Arbeit oder Entspannung, während eine üppige Bepflanzung und ein ruhiger Teich Privatsphäre bieten.
Im Inneren verleihen originaler Parkettboden und ein stimmungsvoller Kamin dem Wohnzimmer eine ruhige Atmosphäre, während die Küche mit modernen Ausstattungen wie Kühlschrank, Geschirrspüler, Backofen und Induktionskochfeld überzeugt. Das Erdgeschoss öffnet sich harmonisch zum Garten und lässt die Natur herein. Im Obergeschoss laden zwei großzügige Schlafzimmer—einst unterteilt und bei Bedarf wieder trennbar—zur Erholung ein, mit Balkonen, die den Blick ins Grüne freigeben, und Klimaanlage für Komfort. Das Badezimmer im ersten Stock verfügt über Dusche, Waschtisch und Handtuchheizkörper.
Das geräumige und vielseitige Untergeschoss bietet eine zweite Küche und einen Essbereich mit direktem Zugang zum Garten—ideal für Gäste oder flexible Familiennutzung. Eine private Einfahrt mit elektrischem Tor, mehrere Stellplätze, ein Carport mit 10 Solarpaneelen und eine Garage mit Stromanschluss unterstreichen den praktischen Luxus.
Nur Minuten vom Zentrum von Berkel en Rodenrijs entfernt, bietet diese Adresse schnellen Zugang zur RandstadRail—drei Minuten zu Fuß—Radwegen und wichtigen Straßen in Richtung Rotterdam, Den Haag und darüber hinaus. Dieses Doppelhaus zum Verkauf in Berkel en Rodenrijs lädt dazu ein, ein persönliches Refugium zu gestalten, ohne auf die Nähe zu pulsierenden urbanen Zentren zu verzichten.
Entdecken Sie Berkel en Rodenrijs mit Baerz, Ihrem vertrauenswürdigen persönlichen Immobilienfinder und Berater
Kenntnis der lokalen Markttraditionen, Rechtslage und Werte ist entscheidend. Spezialisten bieten Zugang zu nicht gelisteten Objekten, identifizieren Chancen und vertreten diskret und effizient Ihre Interessen in Verhandlungen. Sie sichern reibungslose Abläufe und optimieren Diskretion und Rendite.
Häufige Fallstricke vermeiden
Internationale Käufer verlieren oft wertvolle Zeit, weil sie sich durch doppelte, veraltete oder irreführende Online-Angebote kämpfen müssen – besonders da fast 30% aller Luxusimmobilien überhaupt nicht auf dem Markt erscheinen.
Makler des Verkäufers vertreten die Interessen des Verkäufers, nicht Ihre, und schon eine einfache Anfrage kann dazu führen, dass eine Agentur Sie ohne Ihre Zustimmung als deren „Kunden“ registriert.
Mit Baerz Property Finders & Advisors umgehen Sie all diese Fallstricke vollständig.
Wir handeln ausschließlich in Ihrem Interesse, bieten unabhängige Vertretung, transparente Beratung und Zugang zu jedem verfügbaren Objekt – einschließlich privater und off-market Angebote, die andere nie zu sehen bekommen.
Neugierig, wie Sie Ihren eigenen Personal Property Advisor sichern können? Kontaktieren Sie uns, um zu erfahren, wie wir Ihre Interessen vertreten und Ihnen den gesamten Markt öffnen können.