Ons kantoor is lid van Baerz & Co Luxury Homes; een internationaal platform dat exclusieve woningmakelaars met elkaar verbindt. Neem contact op met ons secretariaat voor meer informatie over het landelijke aanbod, waarvan u hieronder een selectie kunt bekijken.

HARLINGEN
Franekereind 15 - 8861 AA
Die Niederlande

Ellen Schoneveld profile image
Ellen Schoneveld
Real Estate Agent
€775,000 k.k.
Wohnbereich
469m2
Grundstücksgröße
210m2
Schlafzimmer
5

Beschreibung

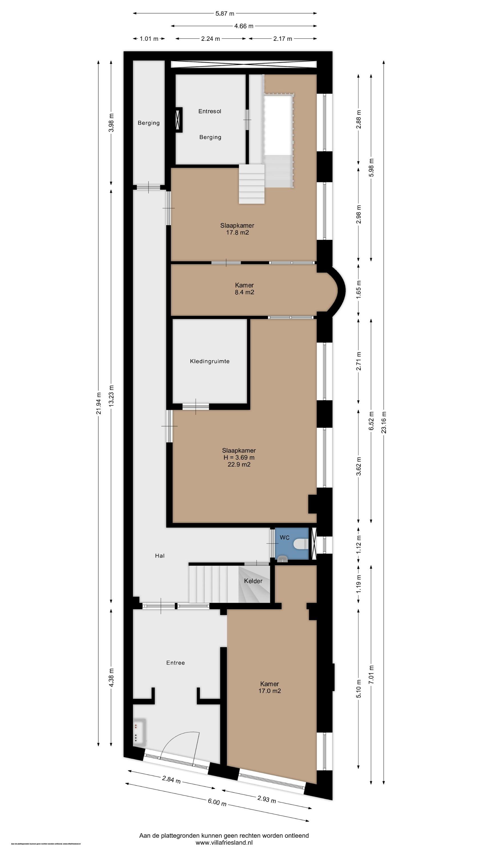
Dieses denkmalgeschützte Grachtenhaus in Harlingen ist ein seltenes Zeugnis der Seefahrtsgeschichte und der architektonischen Tradition der Stadt. Direkt an einem der ältesten Kanäle von Harlingen gelegen, präsentiert sich das unter dem Namen „Het Tempelhuys“ bekannte Anwesen mit seiner zentralen Präsenz inmitten der historischen Fassaden des Franekereind und bietet etwa 469 m² Wohnfläche über verschiedene Ebenen hinweg. Mit fünf Schlafzimmern und flexibler Raumaufteilung eignet es sich gleichermaßen als privates Wohnhaus, Atelier, Galerie, Praxis oder Bed & Breakfast.

Beim Betreten führen Marmorböden und ein einladendes Vestibül zu drei Hauptsälen: einer Galerie mit Blick auf die Gracht, einem sanft beleuchteten Schlafzimmer mit angrenzendem Ankleideraum sowie einem rückwärtigen Praxisraum mit Galerieebene und direktem Zugang zu einer historischen Kapelle. Im ersten Obergeschoss bildet die großzügige Wohnküche mit Wasserblick das Zentrum, während der angrenzende, gewölbte Saal beeindruckende Deckenhöhe und Tageslicht bietet– vielseitig nutzbar für Empfänge oder Ausstellungen. Die zweite Etage umfasst ein Studioapartment, einen Technikraum und reichlich Stauraum, alle mit großen Fenstern und natürlicher Belüftung. Darüber liegt ein beeindruckender Dachboden von 106 m² mit freigelegten Originalbalken und spannenden Möglichkeiten für einen Loft-Ausbau, ergänzt durch einen zusätzlichen Dachraum unter dem First. Ein 20 m² großer Keller rundet das funktionale Angebot ab. Die Immobilie verfügt über vertikale Belüftung, Dachfenster, Kamin und moderne Dämmung. Beheizt wird das Haus zentral mit Potenzial für einen offenen Kamin.

Das Leben am Franekereind vereint Geschichte mit Lebendigkeit des Alltags; sämtliche Annehmlichkeiten sind fußläufig erreichbar, Parkmöglichkeiten direkt vor der Haustür. Amsterdam ist nur eine Stunde entfernt, doch Harlingen bewahrt seinen zurückgezogenen Charme– geprägt von über sechshundert Jahren maritimer Tradition, herzlichen Lokalen und der Nähe zur Nordsee sowie den Watteninseln. Wer nach einer Residenz mit Geschichte und vielseitigem Entwicklungspotenzial sucht, für den bietet dieses monumentale Grachtenhaus in Harlingen eine außergewöhnliche Gelegenheit, abgestimmt auf den Rhythmus seiner Küstenlage.

Entdecken Sie Harlingen mit Baerz, Ihrem vertrauenswürdigen persönlichen Immobilienfinder und Berater

Im Luxussegment von Harlingen spielen diskrete Transaktionen, regulatorische Herausforderungen und spezielle Anforderungen beim Denkmalschutz eine bedeutende Rolle. Erfahrene Immobilienberater ermöglichen Zugang zu exklusiven Off-Market-Angeboten und bieten strategische Unterstützung bei Verhandlung und Vertragsabwicklung. Ihr Fachwissen gewährleistet den vollen Marktwert für Käufer und Verkäufer – unter Berücksichtigung aller historischen, kulturellen und rechtlichen Besonderheiten im niederländischen Kontext.

Häufige Fallstricke vermeiden

Internationale Käufer verlieren oft wertvolle Zeit, weil sie sich durch doppelte, veraltete oder irreführende Online-Angebote kämpfen müssen – besonders da fast 30% aller Luxusimmobilien überhaupt nicht auf dem Markt erscheinen.
Makler des Verkäufers vertreten die Interessen des Verkäufers, nicht Ihre, und schon eine einfache Anfrage kann dazu führen, dass eine Agentur Sie ohne Ihre Zustimmung als deren „Kunden“ registriert.
Mit Baerz Property Finders & Advisors umgehen Sie all diese Fallstricke vollständig.
Wir handeln ausschließlich in Ihrem Interesse, bieten unabhängige Vertretung, transparente Beratung und Zugang zu jedem verfügbaren Objekt – einschließlich privater und off-market Angebote, die andere nie zu sehen bekommen.

Neugierig, wie Sie Ihren eigenen Personal Property Advisor sichern können? Kontaktieren Sie uns, um zu erfahren, wie wir Ihre Interessen vertreten und Ihnen den gesamten Markt öffnen können.

Merkmale

Eigentumsübertragung
Verkaufspreis
€ 775.000 k.k.
Status
beschikbaar
Annahme
in overleg
Bau
Art des Hauses
Grachtenpand
Gebäudetyp
halfvrijstaande woning
Bauzeitraum
1651
Dachtyp
schilddak
Schlafzimmer
5
Badezimmer
0
Flächen und Volumen
Wohnbereich
469 m2
Andere Innenräume
22 m2
Volumen in Kubikmetern
2041 m3
Grundstücksgröße
210 m2
Einrichtungen
Rookkanaal
Dakraam
Natuurlijke ventilatie
Aan water
Aan rustige weg
In centrum
Baerz & Co Property Brochure

Broschüre

Videos

Grundrisse

Villa Friesland Makelaardij

Lange Marktstraat 1
8911 AD Leeuwarden

info@villafriesland.nl
+31 (0)58 - 23 006 23

www.villafriesland.nl

Information / Besichtigungsanfrage

Ellen Schoneveld profile image
Ellen Schoneveld
Real Estate Agent