Baerz & Co is een landelijk samenwerkingsverband van zorgvuldig geselecteerde boutique luxury makelaars. Samen vormen wij één netwerk, met één gedeeld aanbod. De woningen die u op onze website ziet, zijn afkomstig van alle aangesloten kantoren binnen Baerz & Co. Daardoor is niet ieder object rechtstreeks door ons kantoor in verkoop, maar door een gespecialiseerde collega binnen ons netwerk. Heeft u een woning gevonden die u aanspreekt en wilt u meer informatie? Dan brengen wij u graag persoonlijk in contact met de betreffende verkoopmakelaar, zodat u direct en zorgvuldig wordt begeleid.

'S-GRAVENHAGE
Prinsestraat 37 F - 2513 CA
Netherlands

John Korver profile image
John Korver
Real Estate Agent
€1,580,000 k.k.
Living Area
201m2
Plot Size
116m2
Bedrooms
3

Description

Verscholen tussen de Prinsestraat en het statige Noordeinde ligt een bijzondere Haagse historie: het voormalige koetshuis van de brandweerkazerne uit 1899. Dit karaktervolle pand is in 2018 volledig gerenoveerd tot een nagenoeg vrijstaande stijlvolle stadsvilla met behoud van authentieke details.

Achter de historische gevel bevindt zich deze royale en lichte woning welke beschikt over drie ruime slaapkamers, twee moderne badkamers en een indrukwekkende living van ca. 70 m². De hoge plafonds en de open vide versterken het gevoel van ruimte. Openslaande deuren naar de binnenplaats met eigen terras op het zuiden geven veel vrijheid en privacy. Heel veel privacy mede omdat ‘s avonds en in het weekend het toegangshek gesloten is.

De moderne keuken is uitgerust met alle denkbare apparatuur en vormt het hart van de woning. Onder de fraaie houten vloer ligt comfortabele vloerverwarming, wat samen met energielabel A zorgt voor een aangenaam en energiezuinig woonklimaat.

Als kroon op het geheel biedt het zonnige dakterras een prachtig panoramisch uitzicht over Den Haag.

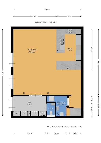
Indeling:
Entree, ruime hal met ingebouwde garderobekasten, moderne wc met fonteintje, via het stalen frame met glas komen we in de royale zit/eetkamer met open moderne keuken voorzien van inbouw apparatuur. Deze ruimte heeft een loftachtig gevoel door de hoogte en de grote raampartijen komt er veel licht binnen. De vloerafwerking is een fraaie eiken parket vloer en er zijn twee sets openslaande deuren naar het terras voor het huis. De begane grond wordt gecompleteerd door een interne berging voorzien van de Cv en waterpomp & ontharder en de aansluitingen voor wasmachine en droger.

De 1e verdieping bestaat uit een grote L-vormige vide die op verschillende wijze kan worden benut. Thans zijn hier twee heerlijke lichte werkplekken gesitueerd maar mocht men behoefte hebben aan extra slaapkamers dan kunnen deze hier worden gecreëerd.

De 2e verdieping telt een drietal slaapkamers, een ruim zonnig balkon en twee moderne badkamers. De hoofdslaapkamer heeft eveneens een loft achtige uitstraling met de spanten in het zicht. Vanuit de gang is er een vliering bereikbaar waar een WTW-systeem staat en er is een vaste trap naar het zonnige dakterras met fraai vrij uitzicht over Den Haag.

Dit unieke pand ligt midden in de levendige binnenstad. Op loopafstand bevinden zich kunstgaleries, theaters, winkels, OV en veel gezellige restaurants.

Bewoners hebben de mogelijkheid gebruik te maken van een ondergrondse parkeervoorziening. Deze 158 parkeerplaatsen zijn beschikbaar voor mensen die binnen 200 meter van de paleistuin wonen of werken.

Nadere gegevens:
- Eigen grond
- Rijksmonument
- Woonoppervlakte ca. 200m2
- Energielabel A
- Terras op begane grond
- Dakterras
- Aanvaarding in onderling overleg
- Ouderdom- en materialenclausule worden opgenomen in de NVM Koopovereenkomst
Tucked between Prinsestraat and the stately Noordeinde a unique piece of The Hague history: the former fire station coach house dating from 1899. This characterful building was fully renovated in 2018 into a virtually detached, stylish city villa, preserving authentic details.

Behind the historic facade lies this spacious and bright home, which features three large bedrooms, two modern bathrooms, and an impressive living room of approximately 70 m². The high ceilings and open loft enhance the feeling of space. French doors leading to the courtyard with its own south-facing terrace offer a sense of freedom and privacy. This privacy is particularly high, partly because the entrance gate is closed in the evenings and on weekends.

The modern kitchen is equipped with every conceivable appliance and forms the heart of the home. Underneath the beautiful wooden floor is comfortable underfloor heating, which, together with an A energy label, ensures a pleasant and energy-efficient living environment.

The crowning glory is the sunny roof terrace, which offers a stunning panoramic view of The Hague.

Layout:
Entrance hall with built-in wardrobes, a modern toilet with a small sink, and through the steel-framed glass doors we enter the spacious living/dining room with an open-plan modern kitchen equipped with built-in appliances. This space has a loft-like feel thanks to its height and the large windows, allowing for abundant natural light. The floor is finished with beautiful oak parquet flooring, and two sets of French doors open onto the terrace in front of the house. The ground floor is completed by an internal storage room housing the central heating system, a water pump and water softener, and connections for a washing machine and dryer.

The first floor comprises a large L-shaped loft that can be used in various ways. Currently, two wonderfully bright workspaces are located here, but if additional bedrooms are needed, they can be created.

The second floor has three bedrooms, a spacious sunny balcony, and two modern bathrooms. The master bedroom also has a loft-like feel. From the hallway, an attic is accessible, featuring a heat recovery system. A staircase leads to the sunny roof terrace with a beautiful view of The Hague.

This unique property is located in the heart of the vibrant city center. Art galleries, theaters, shops, public transport, and many charming restaurants are all within walking distance.

Residents have access to underground parking. These 158 parking spaces are available to residents living or working within 200 meters of the palace gardens.

Additional information:
- Freehold land
- National Monument
- Living area approx. 200m²
- Energy label A
- Ground floor terrace
- Roof terrace
- Acceptance by mutual agreement
- Age and materials clauses will be included in the NVM Purchase Agreement

Features

Transfer of ownership
Asking Price
€ 1.580.000 k.k.
Status
beschikbaar
Acceptance
in overleg
Construction
Kind of house
Herenhuis
Building type
geschakelde woning
Construction period
1938
Energy rating
A
Bedrooms
3
Bathrooms
2
Surface Areas And Volume
Living Area
201 m2
Other indoor space
2 m2
Exterior space attached to the buildinge
18 m2
Volume in cubic meters
820 m3
Plot Size
116 m2
Facilities
In centrum
Beschutte ligging
Baerz & Co Property Brochure

Brochure

Korver makelaars

Stationsweg 12
3641RG Mijdrecht

welkom@korvermakelaars.nl
+31 297 25 04 21

www.korvermakelaars.nl

Information / Viewing request

John Korver profile image
John Korver
Real Estate Agent

Buying a Luxury Property in The Hague

The Hague offers a sophisticated community, global connectivity, and respected cultural institutions. Residents enjoy premium services, elegant surroundings, and seamless access to international amenities, all within a discreet and secure urban environment.