 
	        		 
								SPACIOUS DETACHED HOME WITH PRIVATE GARAGE AND A BEAUTIFUL GREEN GARDEN BACKING ONTO WATER AND THE EGMONDERHOUT NATURE PARK!
This charming home, built in 1966, is constructed from hand-formed red bricks laid in a diamond bond pattern, with dark grey roof tiles, giving it a classic appearance.
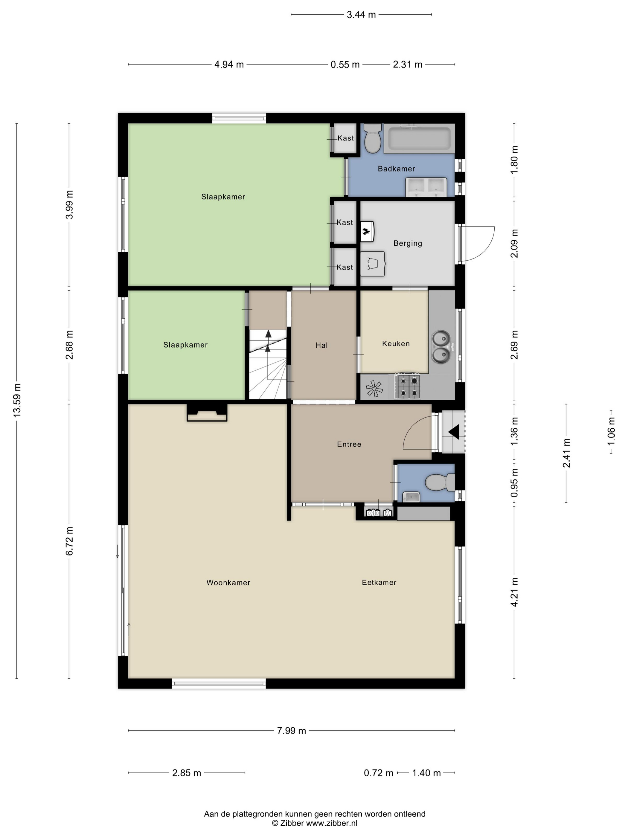
The property features a generous driveway, a detached garage, and a lovely, sunny, and sheltered garden right by the water. The layout is practical, including a bedroom and bathroom on the ground floor. With four bedrooms, ample storage space, and a spacious living room, this house is ideal for families or for those looking for a more generous living environment.
Upon arrival, you can park your car on your private driveway. The large driveway leads to the entrance of the home, opening into a hallway that provides access to various rooms on the ground floor. To the right of the hallway, you'll find two bedrooms. The larger of the two is very spacious and features an en-suite bathroom with a bathtub, toilet, and double washbasin. The second room is perfectly suited as a child’s bedroom, office, or hobby room. This layout also makes the home ideal for single-level living or working from home. Next to the second bedroom is access to the cellar storage.
Continuing through the hallway, you enter the kitchen, equipped with built-in appliances. Adjacent to the kitchen is the utility room, housing the central heating system and washing machine connection. This space also provides direct access to the driveway and a door to the back garden—perfect when returning with groceries or stepping outside quickly.
To the left of the hallway is a separate toilet with a small sink, the fuse box, and access to the living room. The living room is spacious and bright, with large windows, an original built-in cabinet, a fireplace, and sliding doors leading to the mature front, side, and back gardens.
The back garden is truly a highlight. With lush greenery, a sunny orientation, and a stunning view of the water and the Egmonderhout Nature Park beyond, the garden offers a unique combination of privacy and tranquility. Because the property borders directly on the water and nature reserve, there are no rear neighbors. The spacious garage is also accessible from the garden. This garage, fitted with an electric door, is ideal for storing bikes, tools, or parking your car.
A staircase in the hallway leads to the first floor. The large landing offers plenty of storage space in the eaves, access to a separate shower room, and two more generously sized bedrooms with built-in wardrobes. The size of the landing allows for an easy reconfiguration to create additional bedrooms and/or a bathroom on this floor. This makes the house not only perfect for families but also ideal for hosting guests or creating dedicated work or hobby spaces.
Location:
In addition to the home itself, the location is also excellent. The house is situated in a quiet, family-friendly neighborhood with various schools and sports facilities nearby, including the multi-sports club "Alcmaria Victrix," sports complex “De Meent,” and “Victorie Plaza Sport & Wellness.” Shopping center "De Hoef" is also just a short distance away.
Alkmaar’s charming and historic city center is only about an 11-minute bike ride. If you love the beach, Egmond aan Zee is just a 15-minute drive. Accessibility is excellent too: the A9 motorway towards Amsterdam, Haarlem, and other cities is reachable within 10 minutes. Alkmaar's train station is about 10 minutes away by bike, and bus stops are within walking distance.
Key features:
Opportunity to renovate and customize to your own taste;
Very suitable for families and those seeking single-level living;
Spacious garage and ample parking on the private driveway;
Garden includes an underground irrigation system with multiple water points;
Beautiful, green garden on the water and adjacent to the Egmonderhout Nature Park;
Ideally located in a family-friendly neighborhood with all amenities close by;
Energy label D;
Transfer in consultation, available on short notice.
