Baerz & Co is een landelijk samenwerkingsverband van zorgvuldig geselecteerde boutique luxury makelaars. Samen vormen wij één netwerk, met één gedeeld aanbod. De woningen die u op onze website ziet, zijn afkomstig van alle aangesloten kantoren binnen Baerz & Co. Daardoor is niet ieder object rechtstreeks door ons kantoor in verkoop, maar door een gespecialiseerde collega binnen ons netwerk. Heeft u een woning gevonden die u aanspreekt en wilt u meer informatie? Dan brengen wij u graag persoonlijk in contact met de betreffende verkoopmakelaar, zodat u direct en zorgvuldig wordt begeleid.

APELDOORN
Schubertlaan 13 - 7333 CS
Netherlands

John Korver profile image
John Korver
Real Estate Agent
€675,000 k.k.
Living Area
120m2
Plot Size
330m2
Bedrooms
4

Description

Royale vrijstaande en aan de achterzijde uitgebouwde woning met oprit, carport, houten schuur, luxe veranda en vrij gelegen zonnige tuin. De woning is ingedeeld met een royale woonkamer, moderne woonkeuken, tuinkamer, 4 (slaap)kamers en een badkamer. Het geheel is recent met zorg volledig gemoderniseerd tot een charmant en comfortabel woonhuis, waarin uitstraling en hedendaags wooncomfort elkaar versterken.

De woonkeuken heeft in 2017 een geïsoleerde betonvloer met elektrische vloerverwarming gekregen. Er is een landelijke keukenopstelling geplaatst met luxe inbouwapparatuur waaronder een tussenbouw fornuis met grote oven. Ook is er een aansluiting aanwezig om elektrisch te kunnen koken. In 2022 is vervolgens de gehele riolering, langs- en aan de voorzijde van de woning tot aan de scheidingsput, vervangen. Ook is er airconditioning aangelegd in de woonkamer.

In 2024 is het complete dak vervangen en geïsoleerd met Isodekplaten en voorzien van geglazuurde zwarte dakpannen. De dakgoten en regenafvoeren zijn uitgevoerd in zink. De gehele bovenverdieping is voorzien van nieuwe hardhouten kantel kiepramen met HR++ beglazing. Beneden is het grote raam vervangen door een nieuw hardhouten kozijn en voorzien van triple beglazing (HR+++), het kleine voorraam door kantelkiep met HR++.
In 2024 is de vloer van de woonkamer vervangen door een Faber gasbetonvloer en voorzien van vloerverwarming, aangesloten op de HR-combiketel. De woonkamer en entree zijn stijlvol afgewerkt met een PVC-vloer in visgraatmotief in de tint white-wash eiken. Wanden en plafonds zijn strak gestuct en voorzien van sierlijsten en ornamenten die de woning extra allure geven.

De woning is toekomstgericht dankzij de aanwezigheid van 12 zonnepanelen en diverse slimme voorzieningen, zoals buitenkranen, elektrische aansluitpunten in de tuin, solar screens met afstandsbediening op de begane grond, een zonwering met draai-knik-arm en waterafvoer via een drain.

De buitenruimte is minstens zo aantrekkelijk. De fraai aangelegde tuin beschikt over terrassen van blauw hardsteen, granieten plantenbakken en diverse zitplekken. Aan de achterzijde staat een houten schuur met bergvliering met daarvoor een exclusieve veranda vervaardigd uit een robuust eikenhouten constructie en een met EPDM afgewerkt dak: een heerlijke plek om te genieten van het buitenleven en gezelligheid. De erfafscheidingen zijn recent vernieuwd in samenwerking met de buren en bestaan uit schuttingen met betonpalen en hout. Aan de voorzijde siert een acaciaboom de tuin, terwijl een smeedijzeren hekwerk met afsluitbare poort zorgt voor een stijlvolle entree. De royale oprit met klinkerbestrating en carport biedt plaats aan meerdere auto’s.

Tot slot is de carport in augustus 2025 voorzien van een nieuw EPDM-dak. De achter- buitengevel van de keuken is afgewerkt met onderhoudsarm Keralit en de overstekken en kozijnen geschilderd, zodat ook de buitenzijde in perfecte staat verkeert.

De Schubertlaan ligt in de geliefde componistenbuurt van Apeldoorn, een rustige en groene woonomgeving met een sfeervol karakter. Hier woont u in een vriendelijke buurt met voornamelijk vrijstaande en half-vrijstaande woningen, brede lanen en grote bomen.
Alle dagelijkse voorzieningen liggen binnen handbereik. Op loopafstand bevindt zich het Schubertplein met een compleet aanbod aan winkels, supermarkten, horecagelegenheden en een wekelijkse vrijdagmarkt. Meerdere winkelcentra liggen in de directe omgeving. Voor ontspanning en recreatie is het Zuiderpark nabijgelegen, een fraai park met speel- en wandelmogelijkheden dat geliefd is bij buurtbewoners. U kunt ook wandelingen maken langs de Spreng die doorloopt tot aan de westkant van Apeldoorn. Een heerlijk bosrijk gebied waar losloopgebieden zijn voor uw lieve viervoeter.
Daarnaast liggen scholen, sportvoorzieningen en kinderopvang in de directe omgeving en bereikt u binnen enkele minuten de gezellige binnenstad van Apeldoorn. De ontsluiting is uitstekend: de snelwegen A1 en A50 zijn eenvoudig bereikbaar en ook het NS-station ligt op korte afstand, met goede treinverbindingen naar onder meer Zwolle, Deventer, Arnhem, en rechtstreeks naar Amersfoort- Amsterdam.

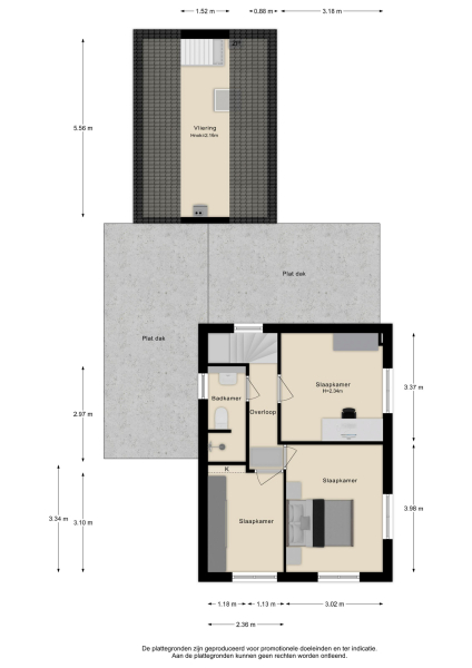
Indeling:
Bij binnenkomst valt direct de hoogwaardige afwerking op. Vanuit de entree zijn de garderobe en een modern toilet met wandcloset bereikbaar.

De L-vormige woonkamer is sfeervol ingericht met een eetgedeelte en een loungehoek. De grote ramen geven uitzicht op de tuin en zorgen voor een prettige lichtinval. De airconditioning kan de woonkamer zowel aangenaam verwarmen als koelen.

De keuken is een ware blikvanger: een luxe landelijke opstelling met granieten werkblad, een sfeervolle Portugese tegelvloer met elektrische vloerverwarming en hoogwaardige inbouwapparatuur: een combi-stoomoven, combimagnetron, vaatwasser, grote koelkast en een inbouw-koffiezetapparaat. Het 90 cm brede en luxe 5 pits gasfornuis heeft een ingebouwde oven. Hierboven is in de schouw een afzuigunit ingebouwd. De vele kasten en de hoekkast met een dubbel uitzwenkplateau geven handige bergruimte. Tevens is er een granieten eetbar aanwezig waar u gezellig kunt zitten, of kunt genieten van een maaltijd of drankje. Via de keuken is er directe verbinding naar zowel de woonkamer als de achtergelegen tuinkamer.

De tuinkamer is momenteel multifunctioneel ingericht en heeft tevens aansluitingen voor wasmachine en droger, een werkblad en uitstortgootsteen. Deze tuinkamer is in een handomdraai aan te passen naar werk- of woonruimte. Via een vaste trap is de (slaap-) zolder boven deze ruimte te bereiken. Hier zorgt een Velux dakvenster voor de lichtinval en ventilatie. De tuinkamer heeft bovendien een eigen toegangsdeur naar de tuin.

Op de eerste verdieping van de woning bevinden zich drie slaapkamers die voorzien zijn van kantel-kiepramen en moderne laminaatvloer. Twee kamers zijn geschikt voor een tweepersoonsbed, terwijl de derde ruimte ideaal is als inloopgarderobe, kantoor- of tienerkamer.

De badkamer is uitgerust met een inloopdouche, wastafel, wandtoilet en een designradiator. Ventilatie gaat hier mechanisch en met een kantel- kiepraam.

Via een vlizotrap is de volledig bevloerde bergzolder bereikbaar met praktische bergruimte.

Schubertlaan 13 is een woning waar u direct verliefd op wordt: volledig gemoderniseerd, duurzaam uitgevoerd, voorzien van luxe en comfort, en met een tuin die uitnodigt om van ieder seizoen te genieten.

Features

Solar panels
Air conditioning
Transfer of ownership
Asking Price
€ 675.000 k.k.
Status
beschikbaar
Acceptance
in overleg
Construction
Kind of house
Eengezinswoning
Building type
vrijstaande woning
Construction period
1957
Energy rating
A
Roof type
zadeldak
Bedrooms
4
Bathrooms
1
Surface Areas And Volume
Living Area
120 m2
Other indoor space
19 m2
Exterior space attached to the buildinge
23 m2
External storage space
36 m2
Volume in cubic meters
532 m3
Plot Size
330 m2
Facilities
Buitenzonwering
Airconditioning
Dakraam
Glasvezel kabel
Zonnepanelen
Natuurlijke ventilatie
Aan rustige weg
In woonwijk
Baerz & Co Property Brochure

Brochure

Videos

Floor Plans

Korver makelaars

Stationsweg 12
3641RG Mijdrecht

welkom@korvermakelaars.nl
+31 297 25 04 21

www.korvermakelaars.nl

Information / Viewing request

John Korver profile image
John Korver
Real Estate Agent

Buying a Luxury Property in Apeldoorn

Apeldoorn blends heritage, verdant landscapes, and a refined social scene. Its exclusive properties, excellent amenities, and international connections appeal to high-net-worth buyers prioritizing privacy, sophistication, and enduring value.