Ons kantoor is lid van Baerz & Co Luxury Homes; een internationaal platform dat exclusieve woningmakelaars met elkaar verbindt. Neem contact op met ons secretariaat voor meer informatie over het landelijke aanbod, waarvan u hieronder een selectie kunt bekijken.

BLARICUM
Rotondeweg 26 - 1261 BG
Netherlands

John Korver profile image
John Korver
Real Estate Agent
€1,495,000 k.k.
Living Area
144m2
Plot Size
540m2
Bedrooms
4

Description

Located on a leafy avenue where birdsong greets you in the morning, this charming 1950s villa features a beautifully landscaped garden. Lovingly and tastefully modernized over the years, the home offers the best of both worlds: character and atmosphere combined with modern day comfort. Within walking distance, you'll find the historic village center of Blaricum, as well as woods and heathlands.

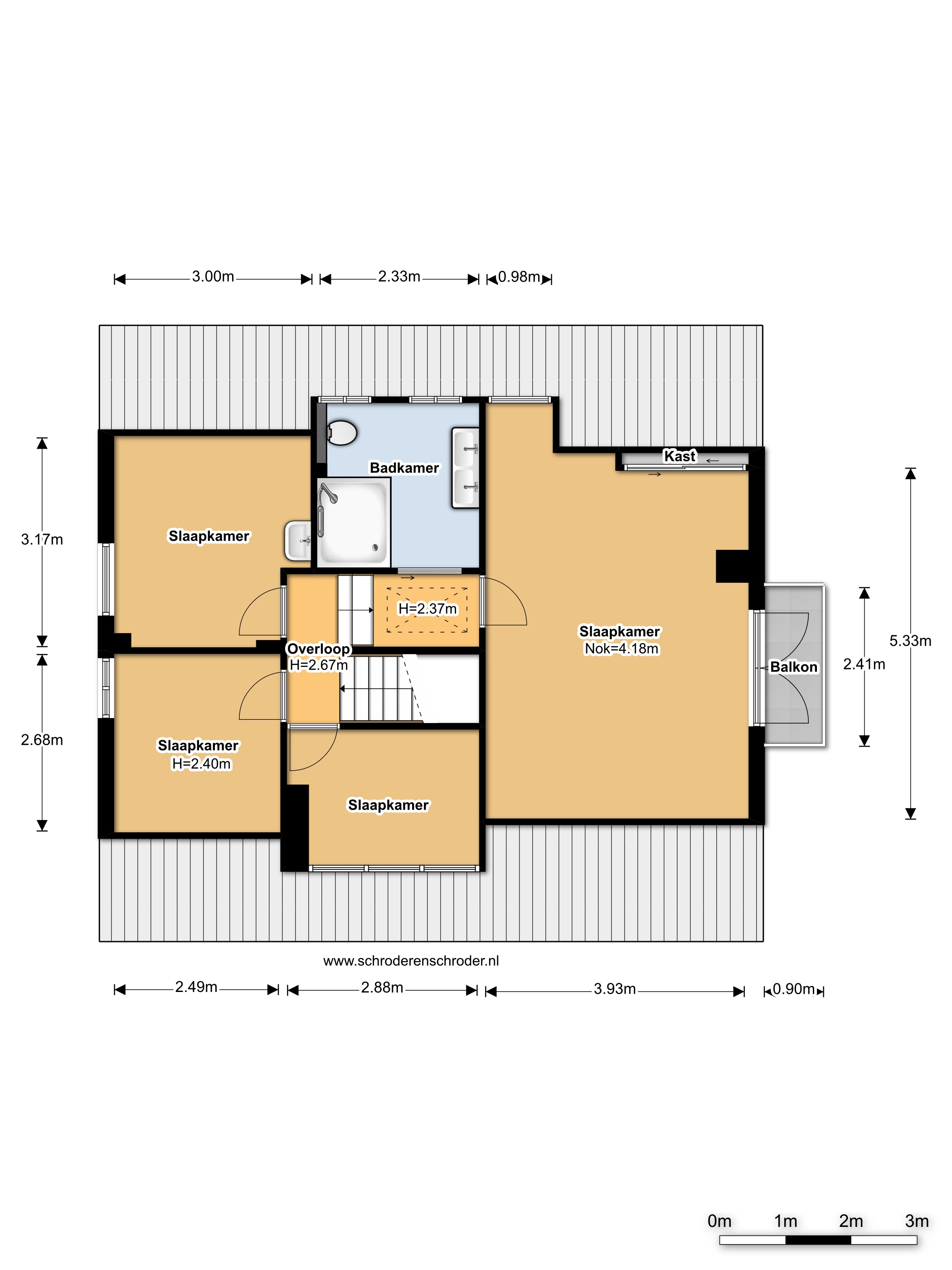
Inside, you are welcomed into a hallway with a guest toilet (although, as is customary in Blaricum, you'll likely enter through the back door). The bright L-shaped living room spans the entire rear of the house and features a parquet floor and gas fireplace perfect for long evenings or sunny afternoons with the French doors open to the garden. The open-plan kitchen is modern and functional, equipped with built-in appliances and a back door leading to the inner garden. A full-height basement offers additional storage space and room for a washer and dryer.

Upstairs, you’ll find a spacious master bedroom with vaulted ceiling, built-in wardrobes, and French doors opening onto the balcony. There are two additional bedrooms, one currently used as a walk-in closet, a study and a modern bathroom featuring underfloor heating, a walk-in shower/steam cabin, second toilet, and vanity unit with ample storage.

The detached studio of approx. 16 m² — formerly a garage — has been converted into a bright, heated space with water and electricity. An ideal spot for peaceful work or creative pursuits. There is also potential to extend the ground floor towards the studio.

The private, south-facing garden wraps around the home and offers sunny spots throughout the day. The veranda invites long summer evenings outdoors. There is private parking for two cars on the property.

Key features:
- Living space approx. 144 m², plot size 540 m²
- Studio approx. 16 m² (included in total living space)
- Roof tiles replaced in 2003
- Central heating system from 2025
- Equipped with 14 solar panels
- Mostly double-glazed windows
- Garden with irrigation system
- Excellent access to the A1 and A27 highways

Features

Alarm system
Transfer of ownership
Asking Price
€ 1.495.000 k.k.
Status
beschikbaar
Acceptance
in overleg
Construction
Kind of house
Eengezinswoning
Building type
vrijstaande woning
Construction period
1952
Energy rating
C
Roof type
zadeldak
Bedrooms
4
Bathrooms
1
Surface Areas And Volume
Living Area
144 m2
Other indoor space
20 m2
Exterior space attached to the buildinge
2 m2
External storage space
8 m2
Volume in cubic meters
519 m3
Plot Size
540 m2
Facilities
Alarminstallatie
Tv kabel
Rookkanaal
Dakraam
Natuurlijke ventilatie
Aan bosrand
Aan rustige weg
In woonwijk
Beschutte ligging
In bosrijke omgeving
Baerz & Co Property Brochure

Brochure

Videos

Korver makelaars

Stationsweg 12
3641RG Mijdrecht

welkom@korvermakelaars.nl
+31 297 25 04 21

www.korvermakelaars.nl

Information / Viewing request

John Korver profile image
John Korver
Real Estate Agent

Buying a Luxury Property in Blaricum

Blaricum offers refined living amidst tranquil, verdant surroundings, supported by premium services and a cosmopolitan community. Its combination of heritage homes, privacy, and cultural vibrancy appeals to discerning international residents.