Baerz & Co is een landelijk samenwerkingsverband van zorgvuldig geselecteerde boutique luxury makelaars. Samen vormen wij één netwerk, met één gedeeld aanbod. De woningen die u op onze website ziet, zijn afkomstig van alle aangesloten kantoren binnen Baerz & Co. Daardoor is niet ieder object rechtstreeks door ons kantoor in verkoop, maar door een gespecialiseerde collega binnen ons netwerk. Heeft u een woning gevonden die u aanspreekt en wilt u meer informatie? Dan brengen wij u graag persoonlijk in contact met de betreffende verkoopmakelaar, zodat u direct en zorgvuldig wordt begeleid.

RIETHOVEN
Kapelstraat 7 - 5561 TW
Netherlands

John Korver profile image
John Korver
Real Estate Agent
€2,750,000 k.k.
Living Area
484m2
Plot Size
6755m2
Bedrooms
4

Description

In a quiet street on the outskirts of Riethoven, on a magnificent plot of 6,755 m², lies this beautiful old-style renovated farmhouse with a thatched roof. The property has been tastefully renovated and features a large, detached guest house, a spacious outbuilding with a relaxation room and fitness room/gym, a spacious carport for several cars and a beautifully landscaped park-like garden facing west.

The completely renovated farmhouse features a cosy living room, a stylish dining room, a spacious and luxurious kitchen, a large (wine) cellar, two bathrooms and four comfortable bedrooms. The guest house also has two bedrooms and two bathrooms.

The location is perfect: quiet and rural, yet on the edge of the sought-after Riethoven. There are several nature reserves with extensive walking and cycling paths in the immediate vicinity. The lively centre of Eersel, with a wide variety of shops, amenities and restaurants, is within cycling distance.

The A67 motorway is in the immediate vicinity and the centre of Eindhoven, the High Tech Campus and ASML
are also within easy reach.

FARMHOUSE
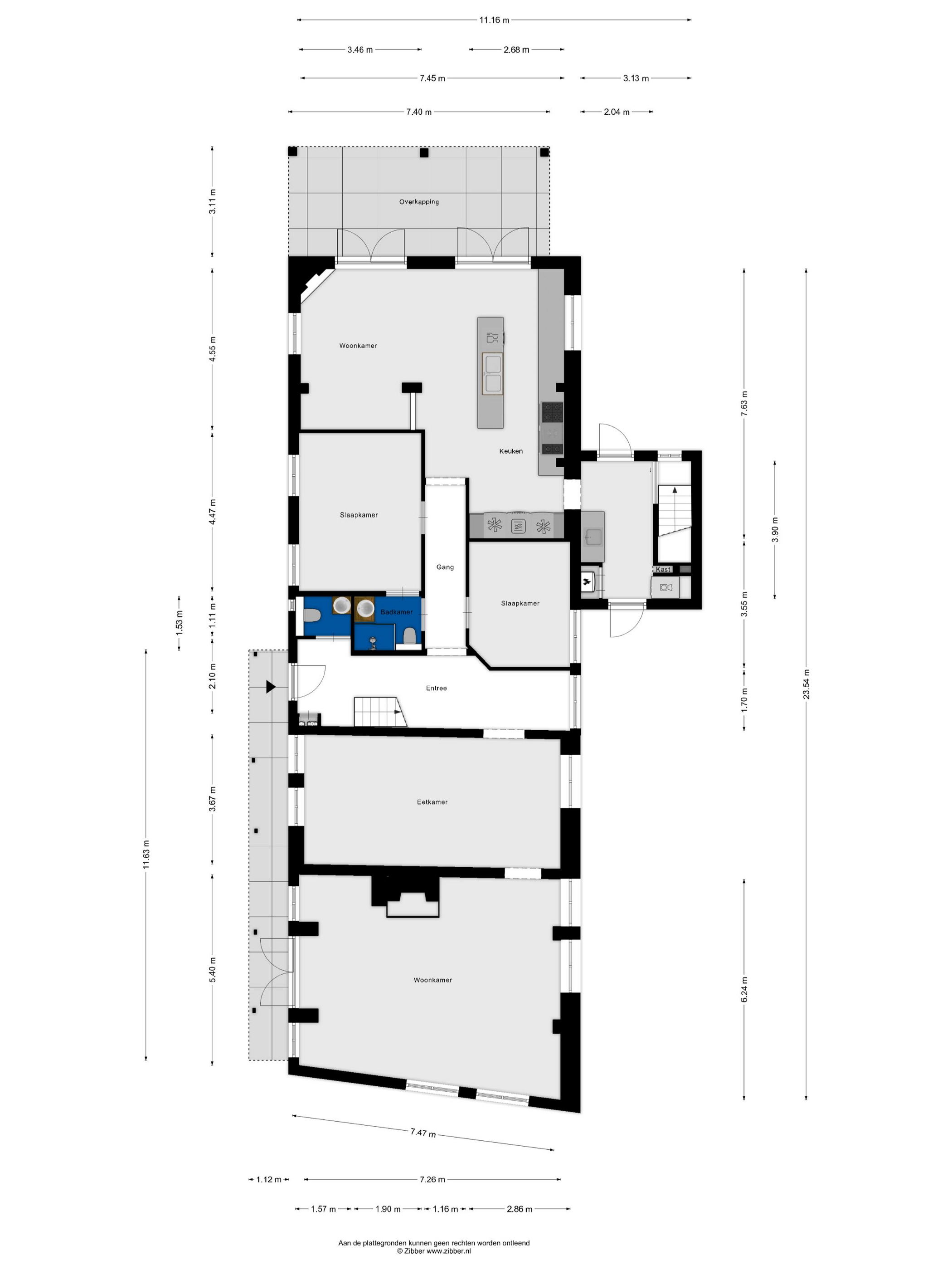
Ground floor:
Spacious entrance hall with marble floor, toilet, meter cupboard and beautiful hardwood staircase to the first floor. The hall provides access to the dining room and to a corridor leading to the kitchen, bedrooms and bathroom. Toilet with marble floor and wall tiles, free-hanging toilet and washbasin. Spacious, attractive dining room with marble floor, beamed ceiling and plenty of space for a large dining table. The dining room provides access to the living room. Spacious, stylish living room with wooden floor, large fireplace (wood), a very high ceiling with a unique beam construction and a beautiful mezzanine that provides access to one of the bedrooms. The large and attractive kitchen has marble flooring, a beamed ceiling with recessed spotlights and two double French doors to the covered terrace. On the garden side, the kitchen has a spacious and cosy sitting area with a fireplace (gas). The kitchen consists of a wall unit with a worktop with cooking area, a large cupboard wall and a sink island with bar area. The kitchen is equipped with a marble worktop with various cupboards and drawers, a large AGA stove with various types of ovens, a gas stove, two hotplates and an extractor hood. The “cupboard wall” consists of a large refrigerator, freezer with ice cube function, coffee machine, combi-oven/microwave, steam oven and various cupboards. The sink island, equipped with a marble top with double sink and a bar with no fewer than nine seats, forms the central point in the kitchen. The island also has a dishwasher and various cupboards.
Spacious utility room with marble floor, worktop with sink and various cupboards, meter cupboard, connections for washing appliances, door to the garden and a staircase to the large, full-height cellar. The cellar is divided into a large wine cellar and a room with a hardstone worktop with plenty of cupboard space underneath. From the hall, a corridor leads to the two bedrooms and the bathroom. Bedroom 1 is spacious and has a marble floor, recessed spotlights and direct access to the bathroom. Bedroom 2 has a marble floor and recessed spotlights. The attractive bathroom 1 has a marble floor, wall tiles, recessed spotlights, a free-hanging toilet, walk-in shower, designer radiator and washbasin in a cabinet.

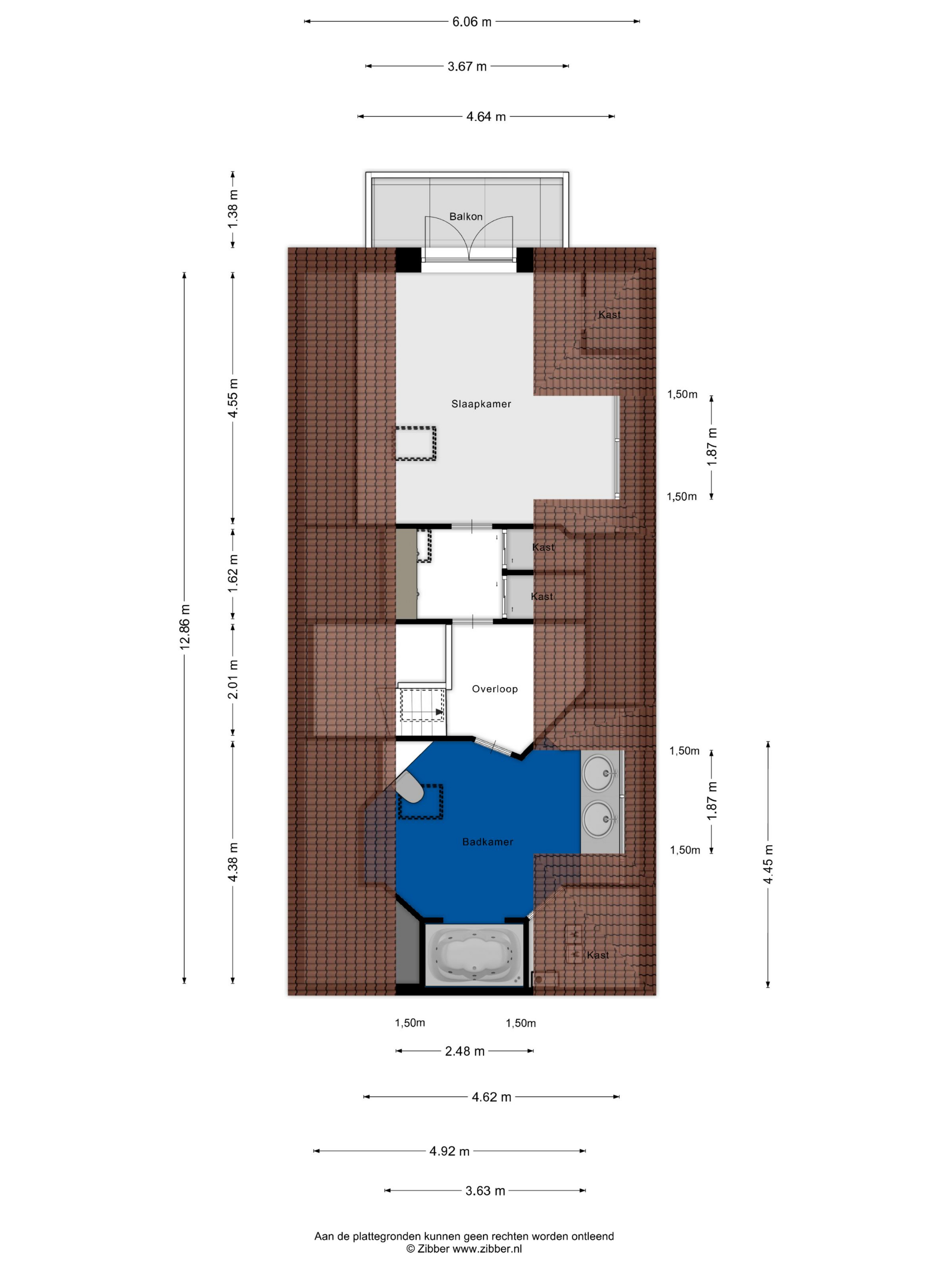
First floor:
Spacious landing with wooden flooring and dormer window. Both bedrooms and the bathroom are accessible from the landing. The spacious bedroom 3 has wooden flooring, a ceiling with a characteristic beam construction, a dormer window and access to the loft. The large loft offers a beautiful view of the stylish living room.

The very spacious bedroom 4 has wooden flooring, a ceiling with a very special beam construction, two dormer windows and a large walk-in closet. A large characteristic window offers a beautiful view of the park-like garden. Bathroom 2 has marble floor and wall tiles, a dormer window, decorative radiator, wall-mounted toilet, bathtub, shower and double washbasin in a vanity unit.

GUEST HOUSE
Ground floor:
The detached, spacious guest house has a thatched roof and its own private sun terrace. The entrance is located on the side of the house. The hall has natural stone floor tiles and a large cupboard with connections for washing appliances. The hall also has a toilet and a beautiful hardwood staircase to the first floor. The hall provides access to the living/dining room, bedroom 1 and bathroom 1.
Toilet with marble floor and wall tiles, free-hanging toilet and washbasin. Spacious, attractive living/dining room with natural stone floor tiles, characteristic beamed ceiling with recessed spotlights, open kitchen, fireplace (gas) and three double French doors to the terraces. The large open kitchen has a U-shaped kitchen layout. The kitchen is equipped with a marble worktop with one and a half sinks, dishwasher, refrigerator, freezer with ice cube function, coffee machine, combi-oven/microwave, gas stove (Boretti) with grill plate and extractor hood, crockery cupboard and various other cupboards and drawers. The spacious bedroom 1 has wooden flooring, a characteristic beamed ceiling with recessed spotlights, a large built-in wardrobe, a door to bathroom 1 and double French doors to the terrace.
Spacious bathroom 1 with natural stone floor and wall tiles, beamed ceiling with recessed spotlights, shower cubicle and double washbasin in cabinet.

First floor:
Spacious landing with wooden floor and skylight. Bathroom 2 and the hall to bedroom 2 are accessible from the landing. This hall has two large built-in cupboards. The spacious bedroom 2 has wooden flooring, a ceiling with characteristic beams and recessed spotlights, a skylight and a dormer window. French doors from this bedroom open onto a large balcony offering beautiful views of the park-like garden. The spacious bathroom 2 has wooden flooring, wall tiles, a ceiling with characteristic beams and recessed spotlights, a skylight and a dormer window. The bathroom also has a large bathroom cabinet with marble top and double sink, decorative radiator, wall-mounted toilet and bathtub with shower function. The room housing the central heating combi boiler is accessible from the bathroom.

ANNEX
Ground floor:
The former garage has been completely renovated and fitted with a thatched roof. Part of this “clapboard” annex is used as a storage room. It is accessible via a door near the carport. The ground floor also has a large relaxation room. The hall has natural stone floor tiles, a large cupboard containing the meter cupboard, the toilet and a beautiful hardwood staircase to the first floor. The relaxation room is also accessible from the hall. Toilet with natural stone floor tiles, free-hanging toilet, urinal and a designer cabinet with washbasin. Large, attractive relaxation room with natural stone floor tiles, beamed ceiling with recessed spotlights and a glass window looking through to the fitness room/gym above. This relaxation room has a large stylish bar with a drinks cabinet, a cosy sitting area and a built-in sound system. This space is currently partly used as a “billiard room”. The access door to the storage room is located near the carport. The storage room offers plenty of space and is equipped with a built-in cupboard wall. The storage room also houses the underfloor heating system and the connections for the central heating and irrigation systems.

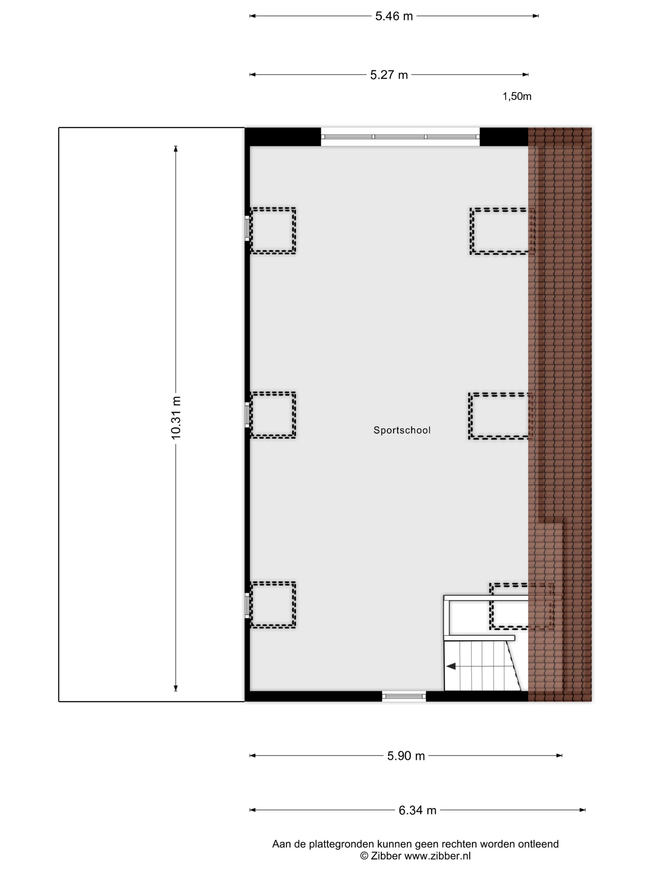
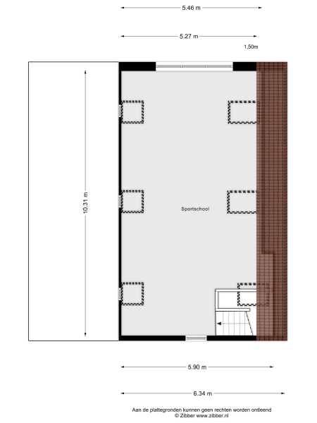
First floor:
Large, attractive space covering the entire first floor with wooden flooring, beamed ceiling with recessed spotlights, various skylights, large windows, mirrored walls and a glass window looking through to the relaxation room on the ground floor. This very spacious room is currently used as a gym/fitness room.

EXTERIOR
Courtyard
The farmhouse, guest house and outbuilding are located on a courtyard on a very spacious plot of approximately 6,755 m². The courtyard is accessible via a large electric gate with French doors and via a gate on the side of the farmhouse. The spacious courtyard has decorative paving, a large lawn and various mature plants. All buildings are equipped with outdoor lighting.

Carport
The carport is located on the side of the outbuilding and can accommodate several cars. There is also an electric charging point here. Next to the carport is a basketball court screened off by hedges.

Garden
The beautifully landscaped, very spacious garden faces east and has several large sun terraces. The terraces are situated in such a way that both the farmhouse and the guest house can count on sufficient privacy and offer a beautiful view of the park-like back garden. The terrace adjacent to the farmhouse has a large glass canopy and a beautiful pergola.
The magnificent back garden has a very large lawn, mature trees and borders with various plants. From the lawn, a natural passage leads to a second perfectly maintained lawn. At the rear, the garden borders on greenery, guaranteeing peace and privacy. The garden is also equipped with a sprinkler system and various electrical points.

Street scene/surroundings
The farmhouse with outbuildings is located in a quiet street on the outskirts of Riethoven on a unique plot of no less than 6,755 m². The location is perfect: quiet and rural, yet on the edge of the sought-after Riethoven. There are several nature reserves with extensive walking and cycling paths in the immediate vicinity. The lively centre of Eersel, with a wide variety of shops, amenities and restaurants, is within cycling distance. Eersel also has schools, sports clubs and medical facilities. The A67 motorway is in the immediate vicinity and the centre of Eindhoven, the hospital, High Tech Campus and ASML are also within easy reach.

SPECIAL FEATURES
- The farmhouse and outbuilding have high ceilings with beautiful beam construction and characteristic
“arch windows”.
- The farmhouse, guest house and outbuilding will be fitted with a new thatched roof in 2025.
- The farmhouse, guest house and outbuilding are equipped with an alarm system, underfloor heating (ground floor) and
air conditioning.
- The charming guest house is a fully-fledged home with two bedrooms and two bathrooms.
- The park-like garden faces east and offers optimal privacy.

Features

Alarm system
Transfer of ownership
Asking Price
€ 2.750.000 k.k.
Status
beschikbaar
Acceptance
in overleg
Construction
Kind of house
Woonboerderij
Building type
vrijstaande woning
Construction period
1910
Energy rating
D
Roof type
schilddak
Bedrooms
4
Bathrooms
2
Surface Areas And Volume
Living Area
484 m2
Other indoor space
60 m2
Exterior space attached to the buildinge
41 m2
Volume in cubic meters
2016 m3
Plot Size
6755 m2
Facilities
Alarminstallatie
Aan rustige weg
Landelijk gelegen
Baerz & Co Property Brochure

Brochure

Videos

Floor Plans

Korver makelaars

Stationsweg 12
3641RG Mijdrecht

welkom@korvermakelaars.nl
+31 297 25 04 21

www.korvermakelaars.nl

Information / Viewing request

John Korver profile image
John Korver
Real Estate Agent

Buying a Luxury Property in Riethoven

Riethoven combines sophisticated rural living, strong community ties, and tailored estate management. International buyers appreciate its privacy, cultural richness, and professional service ecosystem, making it an exceptional setting for refined living and long-term value.