Ons kantoor is lid van Baerz & Co Luxury Homes; een internationaal platform dat exclusieve woningmakelaars met elkaar verbindt. Neem contact op met ons secretariaat voor meer informatie over het landelijke aanbod, waarvan u hieronder een selectie kunt bekijken.

BERGEN (NH)
Buerweg 15 - 1861 CG
Países Bajos

Angeline Croonen profile image
Angeline Croonen
Real Estate Agent
€2,995,000 k.k.
Área de estar
344m2
Tamaño del terreno
2684m2
Dormitorios
4

Descripción

Villa Bergen se ubica en un entorno singularmente tranquilo, con amplias vistas a los prados y privacidad total, asegurada por una entrada artística con portón. Esta finca Villa Bergen fusiona historia y modernidad de manera sutil. Al frente de la parcela de 2.684 m², una casa de campo con techo de paja de mediados del siglo XVIII, meticulosamente renovada en 2014, brinda una presentación distinguida a la propiedad. Este anexo está completamente equipado para usarse como oficina en casa, estudio o espacio para cuidados informales, y su flexibilidad está a la altura de su historia.

La residencia principal es una villa de diseño arquitectónico de 344 m² concluida en 1984, que irradia una energía contemporánea y sosegada en todos sus ambientes. El amplio salón capta la luz del día y ofrece vistas abiertas al prado, complementado por una chimenea que aporta calidez en las noches. En la cocina, una isla conecta las reuniones familiares con el entorno verde, mientras que las puertas francesas y una terraza cubierta y climatizada desdibujan los límites entre el interior y el exterior. El equipamiento incluye quooker, cocina profesional con teppanyaki y freidora, horno de vapor, vinoteca y más. Los espacios auxiliares adyacentes aportan mayor funcionalidad.

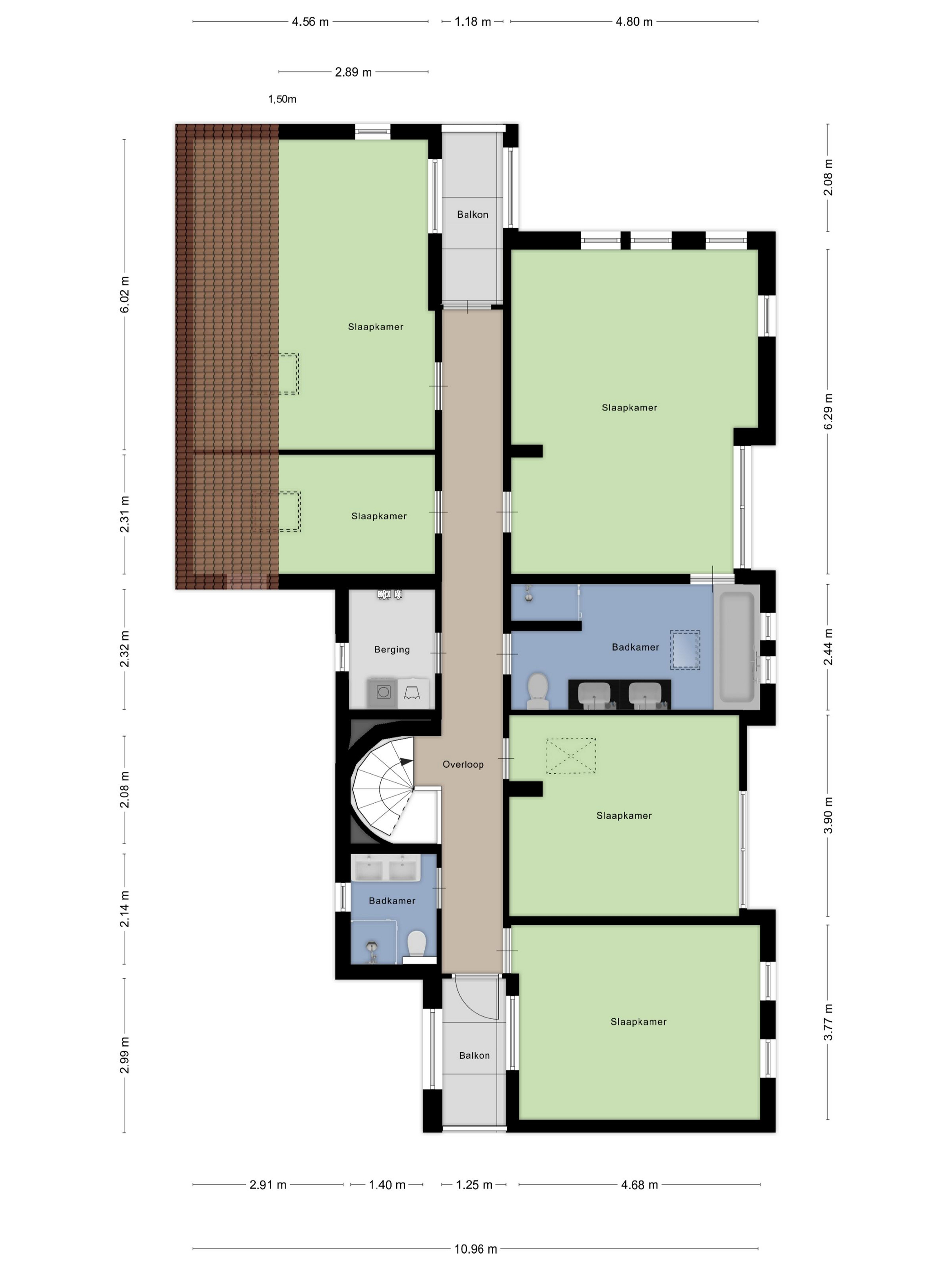
La villa dispone de cuatro dormitorios, cinco salas superiores, incluyendo un lavadero independiente, y dos baños, uno en suite en el dormitorio principal con doble lavabo y ducha a ras de suelo. El ático ofrece potencial de expansión. Se han implementado características sostenibles como bomba de calor, calefacción parcial por suelo radiante y paneles solares, logrando certificación energética clase A. Otras comodidades incluyen ventilación mecánica y natural, sistema de alarma y facilidades pensadas para el bienestar.

Un carport de madera da cobijo a varios vehículos y se integra con un taller preparado para instalaciones de bienestar. Al fondo, el jardín paisajístico ofrece espacios tanto de recogimiento como de convivencia, con varias terrazas orientadas para aprovechar la luz solar y las vistas al pasto. Aquí, a solo minutos del vibrante centro de Bergen y la costa, convergen la arquitectura atemporal y el ritmo natural en una oferta excepcional.

Características

Paneles solares
Alarm system
Transferencia de propiedad
Precio de Venta
€ 2.995.000 k.k.
Estado
beschikbaar
Aceptación
in overleg
Construcción
Tipo de casa
Villa
Tipo de edificio
vrijstaande woning
Período de construcción
1984
Calificación energética
A
Dormitorios
4
Baños
2
Superficies y Volumen
Área de estar
344 m2
Otro espacio interior
41 m2
Espacio exterior adjunto al edificio
27 m2
Espacio de almacenamiento externo
93 m2
Volumen en metros cúbicos
1428 m3
Tamaño del terreno
2684 m2
Instalaciones
Mechanische ventilatie
Alarminstallatie
Rookkanaal
Dakraam
Zonnepanelen
Natuurlijke ventilatie
Aan rustige weg
Vrij uitzicht
Beschutte ligging
In bosrijke omgeving
Baerz & Co Property Brochure

Folleto

Vídeos

Croon Makelaars

Breelaan 41
1861 GD Bergen

info@croonmakelaars.nl
+31 (0)72 743 32 44

www.croonmakelaars.nl

Solicitud de información / Visita

Angeline Croonen profile image
Angeline Croonen
Real Estate Agent