Canal House Delft representa una oportunidad excepcional para habitar un Monumento Nacional catalogado en el emblemático corazón histórico de la ciudad. Esta propiedad ofrece aproximadamente 543 m² de espacio habitable tras una imponente fachada del siglo XVII, donde la monumentalidad original y el confort contemporáneo coexisten en armonía y serenidad.
Una reciente restauración preservó meticulosamente los detalles de época, incorporando materiales naturales, acabados orgánicos e innovaciones sostenibles como sistemas de bomba de calor y paneles solares. El resultado es una vivienda distintiva, con texturas táctiles y un clima interior excepcional, realzada por techos altos y elementos decorativos originales.
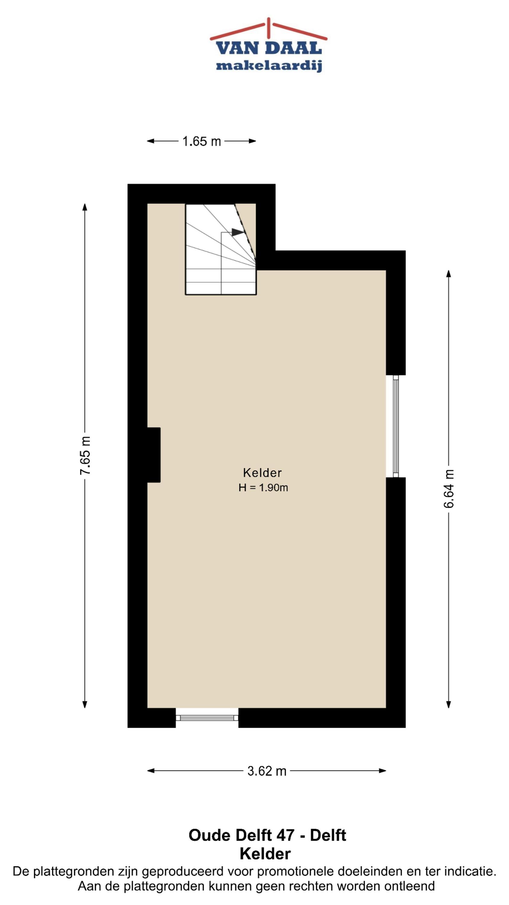
La planta baja recibe con un vestíbulo de mármol, elegantes espacios de oficina y una bodega abovedada que da paso a un jardín tropical de 100 m², con cobertizo de piedra y acceso privado y discreto a tres plazas de aparcamiento. La sala de jardín, con suelo radiante y paredes de acabado pictórico, une el interior y el exterior. La vida familiar y el entretenimiento confluyen en el amplio salón con suelos de roble y techos de cuatro metros de altura, y en la cocina Bulthaup situada en la parte trasera, equipada con electrodomésticos Gaggenau.
Cinco dormitorios se distribuyen en las plantas superiores, incluyendo una suite en entreplanta con baño de mármol, zona de bienestar con sauna y una luminosa buhardilla de uso flexible, todas beneficiadas por la orientación sur y la tranquilidad preservada de la propiedad. Con etiqueta energética B, avanzada seguridad y equipamiento técnico, esta casa de canal se presenta como una fusión poco habitual entre legado y lujo sostenible en el vibrante centro de Delft.
Explora Delft con Baerz, tu asesor y buscador personal de propiedades de confianza
Navegar el mercado exclusivo de Delft exige discreción y conocimiento experto. Los asesores proporcionan acceso a propiedades fuera de mercado, negociación estratégica y profundo entendimiento de las particularidades culturales y normativas locales. Su asesoría es esencial para quienes buscan oportunidades raras y transacciones fluidas.
Evite errores comunes
Los compradores internacionales a menudo desperdician tiempo valioso navegando por anuncios duplicados, desactualizados o engañosos, especialmente porque casi el 30% de las propiedades de lujo nunca aparecen en el mercado.
Los agentes del vendedor representan los intereses del vendedor, no los suyos, y simplemente solicitar información sobre una propiedad puede hacer que las agencias lo registren como su “cliente” sin su consentimiento.
Con Baerz Property Finders & Advisors, evita completamente estos problemas.
Actuamos únicamente en su nombre, ofreciendo representación independiente, orientación transparente y acceso a todas las propiedades disponibles, incluidas oportunidades privadas y fuera de mercado que otros nunca ven.
¿Le gustaría saber cómo asegurar su propio Asesor Personal de Propiedades? Contáctenos para descubrir cómo podemos representar sus intereses y abrirle el mercado completo.