Ons kantoor is lid van Baerz & Co Luxury Homes; een internationaal platform dat exclusieve woningmakelaars met elkaar verbindt. Neem contact op met ons secretariaat voor meer informatie over het landelijke aanbod, waarvan u hieronder een selectie kunt bekijken.

KAAG
Nassaulaan 12 - 2159 LR
Países Bajos

Frits Wilbrink profile image
Frits Wilbrink
Real estate agent
€1,975,000 k.k.
Área de estar
347m2
Tamaño del terreno
496m2
Dormitorios
3

Descripción

Villa Kaageiland, con piscina interior y vistas al agua, establece un estándar sereno en esta idílica isla holandesa, combinando tranquilidad y máximo confort para quienes valoran la privacidad y la amplitud. Esta villa independiente, construida en 2010, ofrece una superficie habitable de 347 m² sobre una parcela de 496 m², con conexión directa al agua abierta y vistas panorámicas del paisaje.

Un salón luminoso y espacioso gira en torno a una chimenea de gas y puertas plegables que prolongan el espacio hacia una terraza en la azotea de 25 m² y una plataforma situada directamente sobre el agua. La cocina, diseñada para quienes aprecian la utilidad y la elegancia, incorpora una isla central con fregadero y un conjunto completo de electrodomésticos integrados. Tres dormitorios y dos baños modernos garantizan privacidad y espacio para los invitados, con calefacción por suelo radiante en todas las estancias.

En la planta baja, la residencia dispone de una piscina interior climatizada, instalaciones de wellness y salas para el relax o los pasatiempos. En el exterior, la terraza con tarima resguarda varios espacios de descanso y un embarcadero con acceso inmediato a Kagerplassen. El jardín paisajístico ofrece un entorno privado, jacuzzi y estacionamiento en la propiedad.

Entre las características de alta gama destacan el aire acondicionado, sistema de alarma, descalcificador de agua y aislamiento integral, que aseguran tranquilidad y seguridad. Villa Kaageiland disfruta de una ubicación excepcional en una isla, con acceso eficiente a las principales ciudades, el aeropuerto de Schiphol y la costa del Mar del Norte. El lujo discreto de esta villa en venta en Kaageiland seduce a quienes buscan autenticidad y refinamiento sin estridencias.

Explora Kaag con Baerz, tu asesor y buscador personal de propiedades de confianza

Acceso Inteligente y ExclusivoLa compra de una residencia en Kaag requiere navegar un mercado definido por la discreción, la escasez y la singularidad. Asesores experimentados conectan con viviendas fuera de mercado y lideran negociaciones, priorizando siempre el interés del cliente. Su conocimiento permite anticipar tendencias y requisitos legales o fiscales. La colaboración con profesionales reconocidos es el camino al éxito en este enclave privado.

Evite errores comunes

Los compradores internacionales a menudo desperdician tiempo valioso navegando por anuncios duplicados, desactualizados o engañosos, especialmente porque casi el 30% de las propiedades de lujo nunca aparecen en el mercado.
Los agentes del vendedor representan los intereses del vendedor, no los suyos, y simplemente solicitar información sobre una propiedad puede hacer que las agencias lo registren como su “cliente” sin su consentimiento.
Con Baerz Property Finders & Advisors, evita completamente estos problemas.
Actuamos únicamente en su nombre, ofreciendo representación independiente, orientación transparente y acceso a todas las propiedades disponibles, incluidas oportunidades privadas y fuera de mercado que otros nunca ven.

¿Le gustaría saber cómo asegurar su propio Asesor Personal de Propiedades? Contáctenos para descubrir cómo podemos representar sus intereses y abrirle el mercado completo.

Características

Piscina
Paneles solares
Alarm system
Aire acondicionado
Transferencia de propiedad
Precio de Venta
€ 1.975.000 k.k.
Estado
beschikbaar
Aceptación
in overleg
Construcción
Tipo de casa
Villa
Tipo de edificio
vrijstaande woning
Período de construcción
2010
Calificación energética
C
Tipo de techo
zadeldak
Dormitorios
3
Baños
3
Superficies y Volumen
Área de estar
347 m2
Otro espacio interior
0 m2
Espacio exterior adjunto al edificio
25 m2
Volumen en metros cúbicos
1167 m3
Tamaño del terreno
496 m2
Instalaciones
Alarminstallatie
Zwembad
Airconditioning
Rookkanaal
Sauna
Glasvezel kabel
Zonnepanelen
Aan water
Aan rustige weg
In woonwijk
Vrij uitzicht
Aan vaarwater
Baerz & Co Property Brochure

Folleto

Vídeos

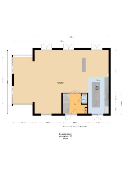
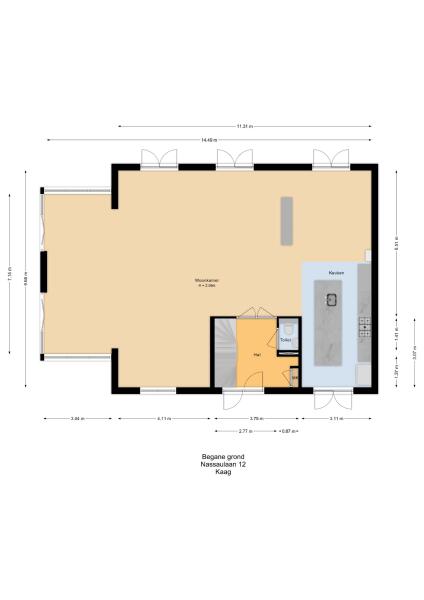
Planos

Wilbrink & v.d. Vlugt Makelaars

Heereweg 231
2161 BG Lisse

info@wilbrinkvandervlugt.nl
+31 252 41 90 49

www.onsaanbod.nl

Solicitud de información / Visita

Frits Wilbrink profile image
Frits Wilbrink
Real estate agent