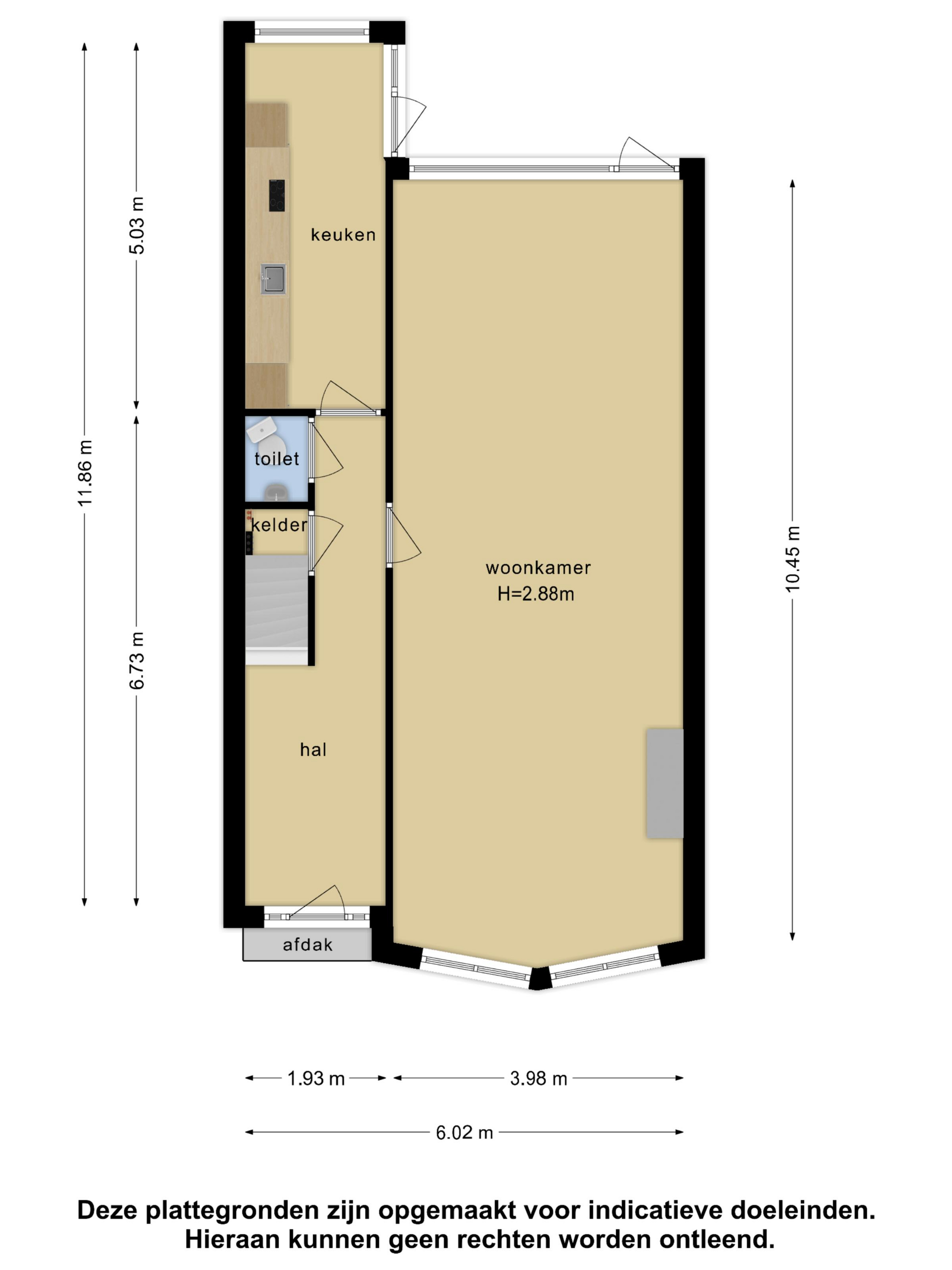
Cette maison familiale à Rotterdam incarne à la fois le patrimoine architectural et le privilège rare d'un accès direct à l'eau sur une parcelle privée de 226 m². Construite en 1927, elle a su préserver son authenticité tout en proposant environ 119 m² de surface habitable mesurée selon la norme NEN-2580. Les lignes classiques de la propriété s’associent à des améliorations telles que le double vitrage partiel et une chaudière à condensation installée en 2021.
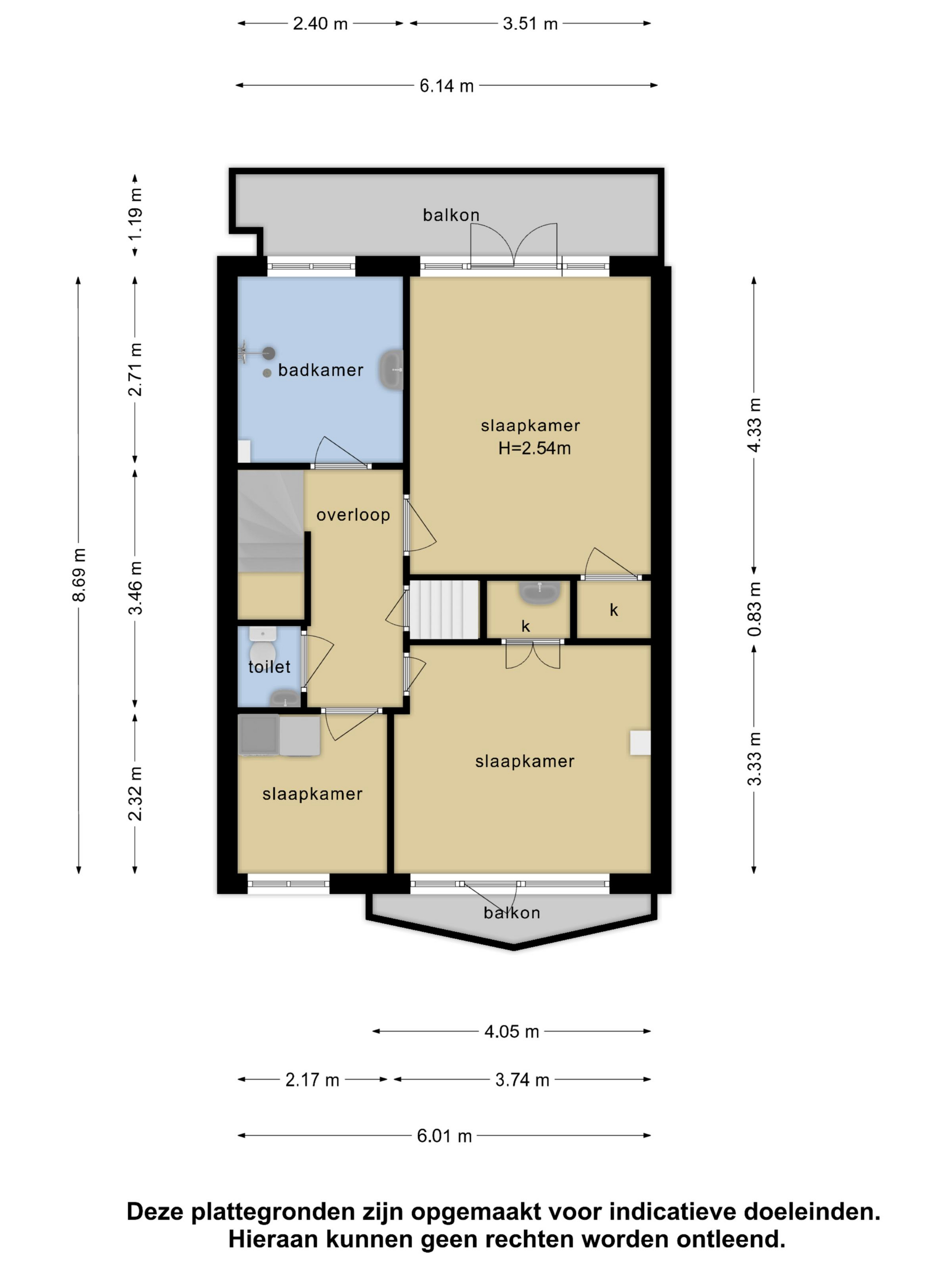
Quatre chambres et une salle de bains offrent un équilibre harmonieux entre repos et activité. La possibilité d’amarrer une embarcation légère au fond du jardin distingue cette adresse, offrant un mode de vie en connexion directe avec l’eau. Les 29 m² restants d’espace intérieur, répartis entre le sous-sol et le deuxième étage, laissent place à des aménagements ; avec de simples ajustements des lucarnes, une surface habitable supplémentaire pourrait être envisagée. Un espace extérieur attenant d’environ 10 m² prolonge la zone de vie à l’extérieur pour des instants de quiétude.
Parmi ses atouts, on retrouve une connexion TV, des stores extérieurs, un label énergétique D ainsi que la tranquillité d’une propriété privée. Un bien défini par son héritage et son potentiel, idéal pour ceux qui apprécient l’authenticité et le rythme paisible des canaux de Rotterdam.
Découvrez Rotterdam avec Baerz, votre conseiller et chasseur immobilier personnel de confiance
Se repérer sur le marché dynamique de Rotterdam requiert des conseillers chevronnés alliant expertise locale et service international. Un accès discret aux biens confidentiels, des stratégies de négociation ciblées et une maîtrise réglementaire approfondie permettent aux acquéreurs et vendeurs exigeants de prendre des décisions avisées. Ce savoir-faire optimise le potentiel d’investissement et préserve vos intérêts à chaque étape.
Évitez les pièges courants
Les acheteurs internationaux perdent souvent un temps précieux à naviguer entre des annonces en ligne dupliquées, obsolètes ou trompeuses, d’autant que près de 30% des propriétés de luxe ne sont jamais mises sur le marché.
Les agents du vendeur représentent les intérêts du vendeur, pas les vôtres, et une simple demande d’information peut entraîner votre inscription comme “client” auprès d’une agence sans votre consentement.
Avec Baerz Property Finders & Advisors, vous évitez totalement ces écueils.
Nous agissons exclusivement en votre nom, en vous offrant une représentation indépendante, des conseils transparents et un accès à toutes les propriétés disponibles, y compris les opportunités privées et off-market que les autres ne voient jamais.
Curieux de savoir comment obtenir votre propre Conseiller Immobilier Personnel ? Contactez-nous pour découvrir comment nous pouvons défendre vos intérêts et vous ouvrir l’accès à l’ensemble du marché.