Welkom bij Korver makelaars Internationaal. Ook ver buiten Nederland zijn wij zeer actief. Via ons internationale netwerk binnen Baerz & Co Luxury Homes begeleiden onze Nederlandse (!) partners u vakkundig bij de aankoop van exclusieve tweede huizen. U vindt ons in 20 landen rond de Middellandse zee, de Alpen, Mexico en Dubai. Neem voor meer informatie contact op met ons secretariaat.

SITGES
Espagne

Chantal Cunningham profile image
Chantal Cunningham
Chief Property Advisory
€1,800,000
Surface habitable
216m2
Superficie du terrain
287m2
Chambres
4

Description

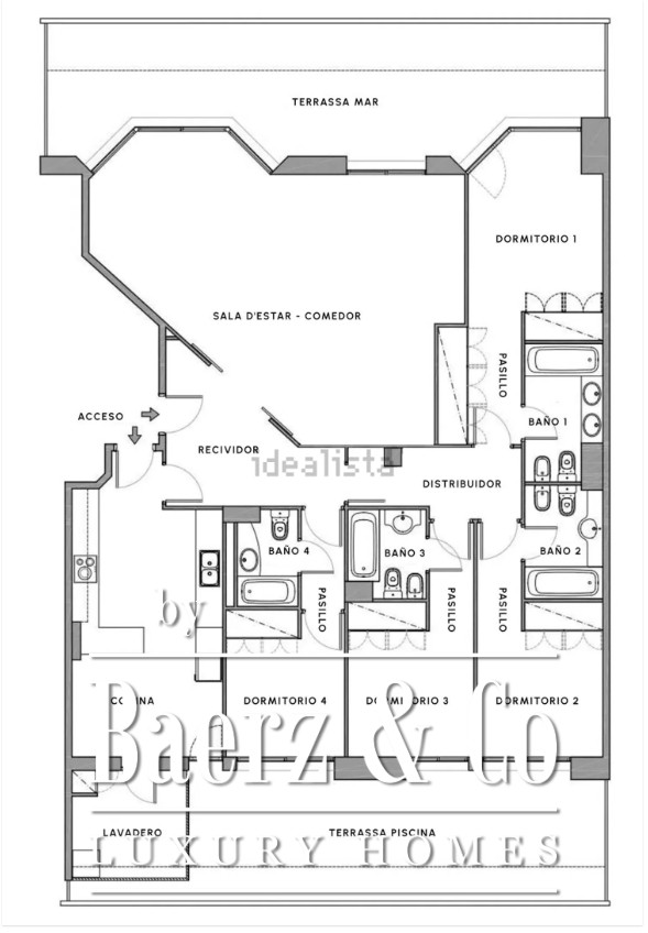
Cet appartement en front de mer à Sitges se situe dans le quartier très prisé de Terramar, ouvrant directement sur la Méditerranée. Le confort et une élégance discrète se retrouvent dans ses 216 m² d’espaces de vie soigneusement aménagés, où chaque pièce donne accès à l’extérieur. Quatre chambres doubles, chacune bénéficiant d’un accès direct à la terrasse et de salles de bains attenantes, offrent un équilibre entre intimité et lien avec la mer. La suite principale permet d’admirer l’eau depuis le lit, tandis que le séjour principal fait entrer lumière et horizon dans le quotidien.

Deux vastes terrasses, totalisant 71 m², épousent le périmètre de l’appartement ; l’une surplombe les jardins communs paisibles, l’autre est située directement au-dessus du rivage, garantissant une vue dégagée. La cuisine et l’espace repas allient fonctionnalité et ouverture, prolongés par une terrasse entourée de verdure. Le bien a été récemment rénové et comprend deux places de parking ainsi qu’un local de rangement de 14 m².

Les résidents profitent de jardins paysagers, de plusieurs piscines et d’un service de sécurité 24h/24, à seulement 100 mètres du Golf de Terramar. Cet appartement de luxe à vendre à Sitges offre un art de vivre méditerranéen raffiné, idéal comme résidence principale ou comme discret refuge en bord de mer.

Découvrez Sitges avec Baerz, votre conseiller et chasseur immobilier personnel de confiance

L’acquisition ou la vente d’une propriété exceptionnelle à Sitges exige de maîtriser la négociation privée, la réglementation évolutive et l’accès à un réseau foncier confidentiel. Des conseillers expérimentés assurent un accès précoce à des biens rares, la structuration rigoureuse des transactions et des conseils impartiaux. Leur maîtrise juridique et fiscale offre une vraie valeur ajoutée, de la recherche à l’accompagnement post-transaction.

Évitez les pièges courants

Les acheteurs internationaux perdent souvent un temps précieux à naviguer entre des annonces en ligne dupliquées, obsolètes ou trompeuses, d’autant que près de 30% des propriétés de luxe ne sont jamais mises sur le marché.
Les agents du vendeur représentent les intérêts du vendeur, pas les vôtres, et une simple demande d’information peut entraîner votre inscription comme “client” auprès d’une agence sans votre consentement.
Avec Baerz Property Finders & Advisors, vous évitez totalement ces écueils.
Nous agissons exclusivement en votre nom, en vous offrant une représentation indépendante, des conseils transparents et un accès à toutes les propriétés disponibles, y compris les opportunités privées et off-market que les autres ne voient jamais.

Curieux de savoir comment obtenir votre propre Conseiller Immobilier Personnel ? Contactez-nous pour découvrir comment nous pouvons défendre vos intérêts et vous ouvrir l’accès à l’ensemble du marché.

Caractéristiques

Piscine
Climatisation
Transfert de propriété
Prix demandé
€ 1.800.000
Référence
TERRAMAR0
SIL
Construction
Type de maison
Apartamento
Période de construction
1995
Classe énergétique
E
Chambres
4
Salles de bains
4
Surfaces et volumes
Surface habitable
216 m2
Espace extérieur attenant au bâtiment
71 m2
Espace de stockage externe
14 m2
Superficie du terrain
287 m2
Équipements
2Swimming pool
Air conditioning
Garden
Parking
Sea
Coastal
 

Vidéos

Plans

Demande d'information / de visite

Chantal Cunningham profile image
Chantal Cunningham
Chief Property Advisory

Buying a Luxury Property in Sitges

Sitges séduit par son ambiance dynamique, la diversité de ses loisirs raffinés et la solidité de ses infrastructures. Les acquéreurs internationaux y trouvent une offre résidentielle et patrimoniale sans difficulté. Accompagnement sur-mesure, prestations de très haut niveau et charme méditerranéen pérennisent la renommée de cette destination d’exception.