Ons kantoor is lid van Baerz & Co Luxury Homes; een internationaal platform dat exclusieve woningmakelaars met elkaar verbindt. Neem contact op met ons secretariaat voor meer informatie over het landelijke aanbod, waarvan u hieronder een selectie kunt bekijken.

Dubbel benedenhuis te koop in AMSTERDAM

AMSTERDAM Hobbemakade 30 A - 1071 XK Nederland


Eran Hausel profile image
Eran Hausel
Real Estate Agent
+31 6 46 11 94 28
info@heerenmakelaars.nl

Heeren Makelaars
Stadionweg 75
1077 SE Amsterdam
NETHERLANDS
+31 0204702255
www.heerenmakelaars.nl
info@heerenmakelaars.nl

Woonoppervlakte
135m2
Perceeloppervlakte
N/A
Slaapkamers
3

Omschrijving

Hobbemakade 30A + 2 PP, 1071 XK te Amsterdam

“Now, boys, don’t get caught watching the paint dry”

Een van de vele fameuze uitspraken van de acteur Dennis Hopper, naamgever van dit prachtige begane grond appartement in het prestigieuze “The Glass House”. Een hoogwaardig en luxe appartementencomplex bestaande uit tien appartementen en een parkeerkelder.

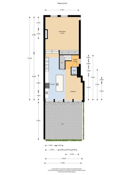
Dit complex is ontworpen en uiteindelijk in 2012 gerealiseerd, met oog voor detail en kwaliteit. Het ontwerp voorziet in extra hoge plafonds en het gebruik van voornamelijk glas in de gevels aan de tuinzijde. De appartementen ademen licht, lucht en ruimte uit. De huidige eigenaren hebben intern het appartement afgebouwd met zeer veel smaak en oog voor detail en kenmerkt zich door stoere materialen als visgraat vloeren en met staal bekleedde binnen kozijnen. Veel details repeteren zich ook door het appartement heen. Dit appartement heeft een woonoppervlakte van 135 m² en een tuin van 41 m².

Indeling:

Begane grond:
De royale entree met lift geeft toegang tot het appartement. Ruime hal met separaat toilet en garderobe. U treedt binnen in het epicentrum van het appartement; de woonkeuken, die middels openslaande deuren toegang geeft tot de ruime tuin van 41 m². De luxe en goed geoutilleerde keuken is werkelijk van alle gemakken voorzien. Van professionele vaatwasser tot meerdere koelkasten die het verblijf in deze ruimte tot een feest maakt. Tevens bevindt zich hier een ruime trapkast.

De woonkamer bevindt zich aan de straatzijde en heeft daardoor een prachtig zicht over het water van de Boerenwetering. Deze ruimte heeft een plafondhoogte van ruim 3,90 meter en is voorzien van een gashaard. Vanuit deze ruimte heeft u een mooie doorkijk naar de keuken en tuin, maar ook naar het vrijstaande bad.

Eerste verdieping:
Middels interne trap bereikt u de overloop van de slaapverdieping. Aan de tuinzijde bevindt zich de master bedroom met daarnaast gelegen een tweede ruime slaapkamer met eigen kastgedeelte. De derde kamer op deze verdieping is thans in gebruik als walk-in closet en heeft een aparte doorgang naar het centrale trappenhuis. In de hal is er een kast met de aansluitingen voor de wasmachine en droger en tevens opstelplaats van de technische apparatuur.

De luxe badkamer is in het midden van de verdieping gesitueerd en is voorzien van een vrijstaand ligbad, separate douche, toilet alsmede dubbele wastafel. Het raam, dat het nodige licht verschaft in de badkamer, is elektrisch aan te passen van doorschijnend naar matglas voor de nodige privacy.

In de kelder van het gebouw is een parkeergarage. Hier kunnen twee auto’s achter elkaar worden geparkeerd. In de onderbouw nog een grote externe bergruimte welke bij het appartement hoort.

Het appartement maakt onderdeel uit van een actieve vereniging van eigenaars. Gelegen op EIGEN GROND, dus geen erfpacht!

Bijzonderheden:
- Bouwjaar: 2012
- Woonoppervlakte: 135 m² (gemeten conform NEN2580 meetinstructie)
- Berging: 20m²
- Ruime tuin van 41 m²
- Extra diepe parkeerplaats (2,35m/9m) t.b.v. 2 auto’s voor €250.000,- k.k.
- Gelegen op eigen grond, dus géén erfpacht.
- Actieve vereniging van eigenaars. Servicekosten €1000,- p/mnd (incl. servicekosten P: €200,- p/mnd)
- Servicekosten zijn inclusief voorschot stookkosten en warm water.
- Het complex maakt gebruik van aardwarmte met eigen warmte en koude opslag, vloerverwarming en -koeling in het
appartement. Deze kosten zitten in de servicekosten.
- Huismeester aanwezig.
- Professionele beheerder: VvE beheer Amsterdam
- Toplocatie in Zuid
- Hoogwaardig afgewerkt
- Voorbereiding B&O geluid door appartement aangelegd
- Woonkamer met gashaard en verdiepingshoogte van 3.93 m!
- Extra entree op de eerste verdieping
- Twee goede slaapkamers en een kleedkamer (ook te gebruiken als derde slaapkamer)

Deze informatie is door ons met de nodige zorgvuldigheid samengesteld. Onzerzijds wordt echter geen enkele aansprakelijkheid aanvaard voor enige onvolledigheid, onjuistheid of anderszins, dan wel de gevolgen daarvan. Alle opgegeven maten en oppervlakten zijn indicatief. Koper heeft zijn eigen onderzoeksplicht naar alle zaken die voor hem of haar van belang zijn. Met betrekking tot deze woning is de makelaar adviseur van verkoper. Wij adviseren u een deskundige (NVM-)makelaar in te schakelen die u begeleidt bij het aankoopproces. Indien u specifieke wensen heeft omtrent de woning, adviseren wij u deze tijdig kenbaar te maken aan uw aankopend makelaar en hiernaar zelfstandig onderzoek te (laten) doen. Indien u geen deskundige vertegenwoordiger inschakelt, acht u zich volgens de wet deskundige genoeg om alle zaken die van belang zijn te kunnen overzien. Van toepassing zijn de NVM-voorwaarden.

Kenmerken

Overdracht
Vraagprijs
€ 1.550.000 k.k.
Status
verkocht onder voorbehoud
Aanvaarding
in overleg
Bouw
Soort woonhuis
Dubbel benedenhuis
Soort bouw
appartement
Bouwjaar
2012
Energieklasse
A_PP
Slaapkamers
3
Badkamers
1
Oppervlakten en inhoud
Woonoppervlakte
135 m2
Overige inpandige ruimte
0 m2
Externe bergruimte
8 m2
Inhoud
387 m3
faciliteiten
Mechanische ventilatie
Tv kabel
Aan water
In woonwijk
Baerz & Co Property Brochure

Brochure

Informatie / bezichtigingsaanvraag

Video's

Video Hobbemakade 30 A
Video Hobbemakade 30 A

Foto's

Plattegronden