Baerz & Co is a nationwide partnership of carefully selected boutique luxury real estate agents. Together, we form a single network with a shared portfolio. The properties you see on our website come from all affiliated offices within Baerz & Co. As a result, not every property is sold directly by our office, but by a specialized colleague within our network. Have you found a property that appeals to you and would you like more information? We will be happy to put you in touch with the relevant sales agent, so that you receive direct and careful guidance.

BARCELONA
Spanje

John Korver profile image
John Korver
Real Estate Agent
€1.990.000
Woonoppervlakte
201m2
Perceeloppervlakte
N/A
Slaapkamers
3

Omschrijving

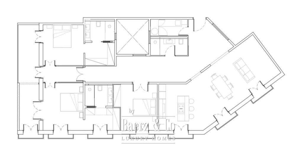
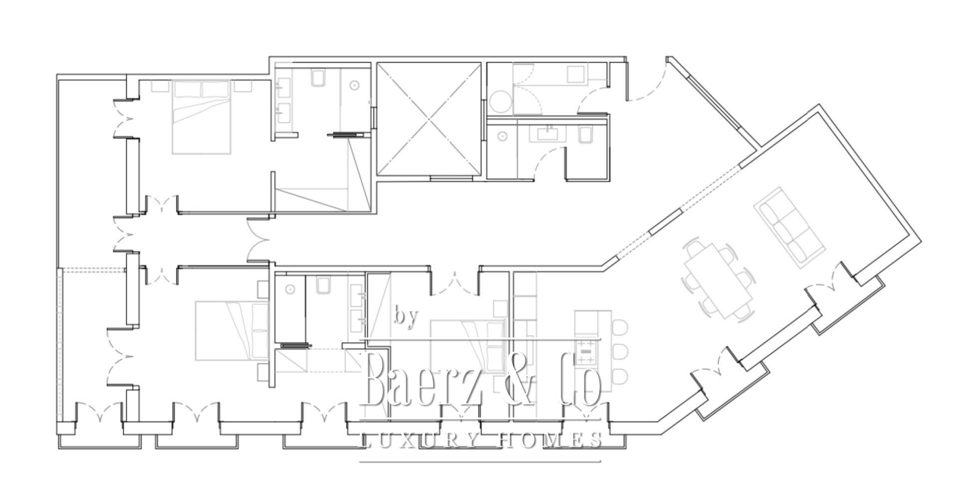
Penthouse Barcelona Quadrat d'Or bevindt zich op het felbegeerde kruispunt van Calle Girona en Gran Via de les Corts Catalanes en biedt 201 m² aan verfijnde leefruimte met een terras van 20 m². Deze woning combineert historie met hedendaags design, op slechts enkele passen van de Passeig de Gràcia en Plaça Catalunya. Omringd door hotels, theaters, restaurants, scholen en exclusieve winkels en volledig ontsloten door het openbaar vervoer, bevindt u zich hier in het hart van Barcelona’s iconische Quadrat d'Or.

Het penthouse is volledig gerenoveerd met hoogwaardige materialen, waarbij authentieke elementen als hydraulische tegelvloeren en houten timmerwerk zijn behouden. Het interieur omvat drie tweepersoons slaapkamers, waarvan twee en-suite, en drie volwaardige badkamers. De ruime woon- en eetkamer wordt geaccentueerd door een open designkeuken met centraal eiland, Miele en Liebherr apparatuur, Neolith werkbladen en gelakte kasten. Balkons, een berging en een aparte wasruimte verhogen het wooncomfort. Het gebouw beschikt over een lift en conciërgeservice, waarmee comfort en veiligheid gegarandeerd zijn.

Moderne voorzieningen zijn onder andere een aerothermisch systeem voor klimaatbeheersing, ingebouwde kasten, automatische deuren, satellietverbindingen en stadsverwarming op gas. Geworteld in Barcelona’s modernistische erfgoed, plaatst deze penthouse u tussen spraakmakende architecturale hoogtepunten en het bruisende stadsleven van een van Europa’s meest geliefde wijken. Deze woning is ideaal voor wie waarde hecht aan design, vakmanschap en een bevoorrechte locatie.

Ontdek Barcelona met Baerz, Uw Vertrouwde Personal Property Finder & Advisor

De kennis van een expert in het hogere segment in Barcelona is van onschatbare waarde. Inzicht in marktmechanismen, toegang tot vertrouwelijke of off-market aanbod en deskundige onderhandeling zijn essentieel. Maatwerkadvies biedt discretie, diepgewortelde connecties en risicobeheersing gedurende het hele koop- of verkooptraject, zodat kopers en verkopers hun doelstellingen realiseren.

Vermijd veelvoorkomende valkuilen

Internationale kopers verspillen vaak kostbare tijd aan dubbele, verouderde of misleidende online aanbiedingen, en ook omdat bijna 30% van de luxe woningen nooit openbaar op de markt verschijnt. Verkopersmakelaars behartigen de belangen van de verkoper, niet die van kopers. Alleen al het aanvragen van informatie over een woning kan ertoe leiden dat een verkoopmakelaar u zonder uw toestemming als “cliënt” registreert.
Met Baerz Property Finders & Advisors voorkomt u al deze valkuilen volledig. Wij werken uitsluitend in uw belang en bieden onafhankelijke vertegenwoordiging, heldere begeleiding en toegang tot alle beschikbare woningen, inclusief off-market aanbiedingen die anderen nooit te zien krijgen.

Interesse in een Personal Property Advisor?

Wij tonen u alle beschikbare woningen op één plek. Neem gerust contact met ons op om te zien hoe wij aan uw wensen kunnen voldoen en uitsluitend uw belangen zullen beschermen.

Kenmerken

Overdracht
Vraagprijs
€ 1.990.000
LAS
Bouw
Kamers
N/A
Slaapkamers
3
Badkamers
3
Oppervlakten en inhoud
Woonoppervlakte
201 m2
Perceeloppervlakte
0 m2
faciliteiten
Balcon
A/A
Telephone
Terrace
Elevator
Wardrobes cupboard
Appliances
Light
Town Gas
Laundry
Automatic Doors
Satellite
T. V.
Clearly
Baerz & Co Property Brochure

Brochure

Informatie / bezichtigingsaanvraag

John Korver profile image
John Korver
Real Estate Agent

Een luxe woning kopen in Barcelona

De luxevastgoedmarkt van Barcelona verwelkomt internationale bewoners die kiezen voor stijlvol wonen, een levendige cultuur en veilige investeringskansen. Een mix van erfgoed, gemeenschapsgevoel en hoogwaardige dienstverlening wacht in deze mediterrane metropool.