 
	        		 
								Prachtig aan het water gelegen vrijstaande villa met tuingerichte woonkamer en grote eveneens op de tuin gerichte praktijkruimte.
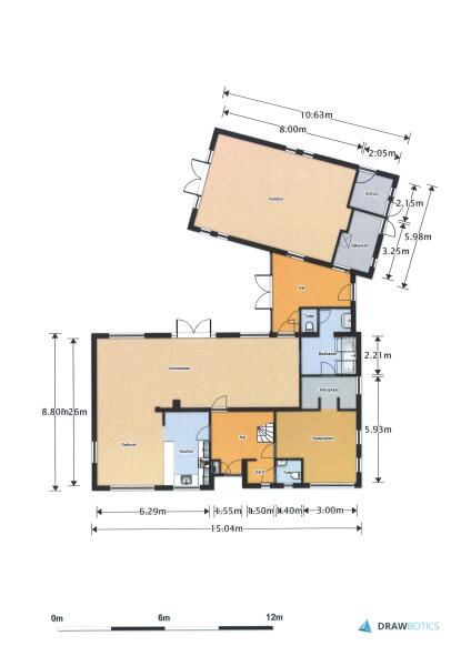
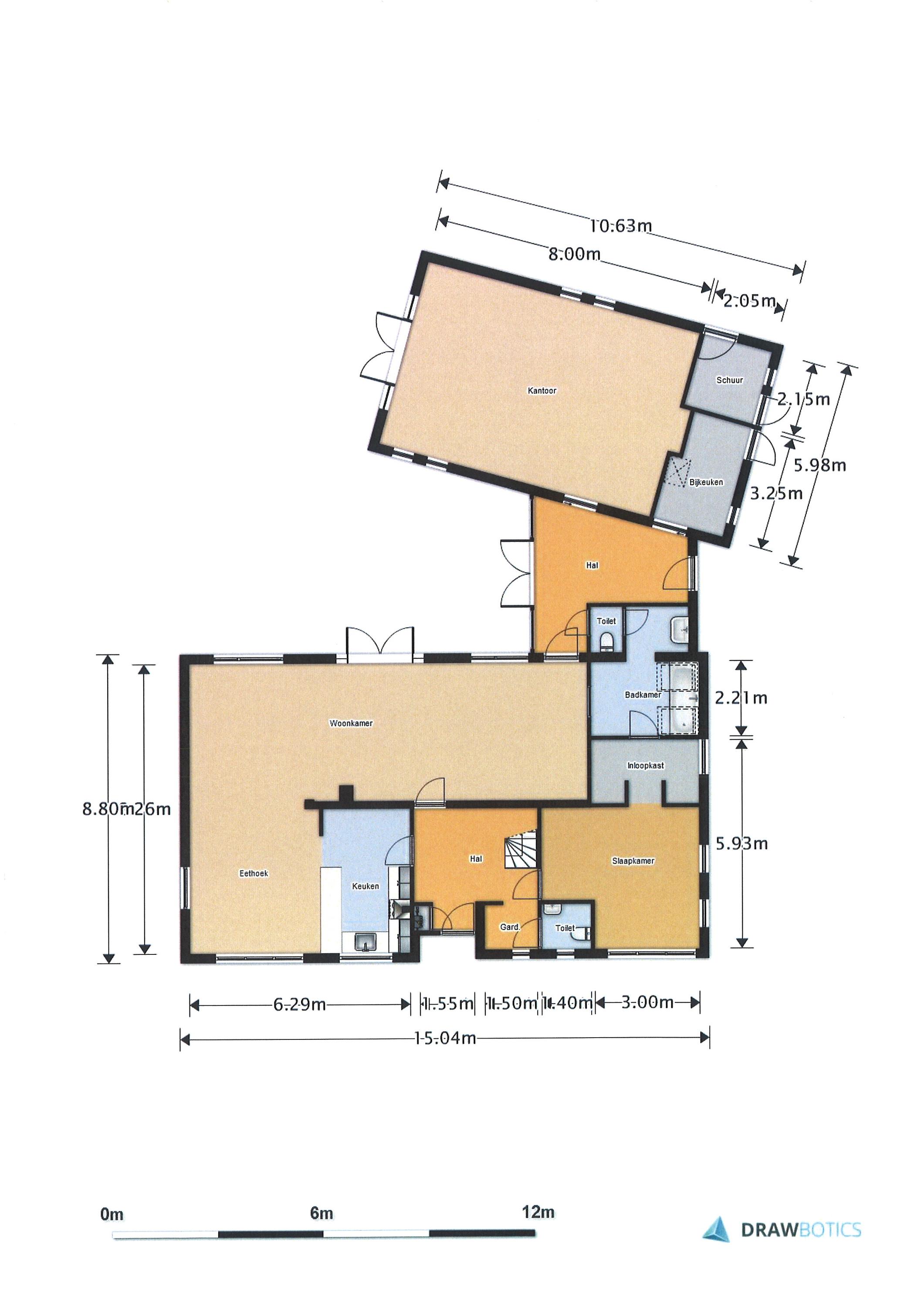
De kantoorruimte (ca. 42m²) is gesitueerd in de in 2008 aangebouwde vleugel. Deze ruimte is met eenvoudige ingrepen geschikt te maken voor eventuele dubbele bewoning. De woning is levensloopbestendig met onder andere een slaap- en badkamer op de begane grond.
De woning is uitstekend onderhouden en verkeert in een goede “up-to-date“ staat en is voorzien van 2 warmtepompen en 18 zonnepanelen.
De ligging is zeer goed, aan de rand van het gemoedelijk dorp Lage-Zwaluwe in een rustige villawijk. De jachthaven, de prachtige Biesbosch, en vele fietsroutes zijn in de directe omgeving aanwezig. De uitvalswegen richting onder andere Breda en de randstad zijn in enkele minuten te bereiken.
BEGANE GROND
HAL/ENTREE
Hal/entree (ca. 3.45 x 3.55m) met meterkast (14 groepen + aardlekschakelaar), garderobe, toiletruimte met wandcloset met inbouwreservoir en fonteintje, trapopgang naar de eerste verdieping en toegang tot:
SLAAPKAMER I
Slaapkamer (ca. 4.50 x 4.15m + 3.00 x 1.95m) met op maat gemaakte garderobekasten. Voorts toegang tot:
BADKAMER
Badkamer (ca. 3.85 x 2.95m) met luxe inrichting bestaand uit een ligbad, wastafelmeubel, deels in natuursteen uitgevoerde, ruime inloopdouche met hand- en regendouche en een designradiator;
Vanuit eerdergenoemde hal toegang tot :
WOONKAMER
Tuingerichte woonkamer, bestaande uit een zitkamer (ca. 4.00 x 7.30m) en een eetkamer (ca. 4.00 x 4.05m) met open haard en openslaande deuren naar de tuin, de grote glaspartijen zorgen voor een prachtige lichtinval én een fraaie verbinding met de tuin.
WOON-/EETKEUKEN
Woon-/eetkeuken (ca. 6.30 x 4.05m). Het keukengedeelte is voorzien van een luxe inrichting in U-opstelling, bestaand uit hardstenen blad met spoelbak, “Lacanche”gasfornuis, 90cm breed 5-pits met oven met diverse compartimenten. Voorts zijn hier een koelkast, vriezer, magnetron, vaatwasser en diverse boven- en onderkasten geplaatst.
WERKKAMER
Werkkamer (ca. 5.40 x 7.85m) met zeer fraai op maat gemaakt wandmeubel, openslaande deuren naar de tuin. Vanuit deze kamer prachtig zicht op de tuin en achtergelegen waterpartij.
Door de nokhoogte van ca. 5.40m wordt een zeer ruimtelijk effect verkregen. Deze werkkamer is een multifunctionele ruimte en is zeer geschikt voor kantoor/praktijk aan huis (met eigen ingang!), maar ook eenvoudig geschikt te maken voor mantelzorg, logeerruimte etc.
Tussenportaal met zelfstandige entree;
TOILET
Toiletruimte met wandcloset met inbouwreservoir en fonteintje;
BIJKEUKEN
Bijkeuken (ca. 3.15 x 2.05m) met nette inrichting bestaand uit een aanrechtblad met rvs spoelbak, koelkast en diverse kasten.
Middels luik toegang tot:
EERSTE VERDIEPING
Bergvliering (ca. 5.50 x 5.40m vloeroppervlak).
Ruime, lichte overloop (met bergruimte), waarop uitkomen:
SLAAPKAMER II
Voorslaapkamer (ca. 4.05/2.90 x 4.40m) met zogenaamd Frans balkon en bergruimte achter de knieschotten;
SLAAPKAMER III
Achterslaapkamer (ca. 3.45 x 3.00m);
SLAAPKAMER IV
Achterslaapkamer (ca. 4.15 x 4.45m) met bergruimte achter de knieschotten.
BADKAMER
Badkamer (ca. 3.45 x 1.10m) met douchecabine, wastafel en toilet;
Vaste kast waarin de c.v.-combiketel (ATAG blauwe engel) en aansluitpunten ten behoeve van de wasapparatuur gesitueerd zijn;
TUIN
De tuin is fraai aangelegd met o.a. een gazon (beregeningsinstallatie aanwezig) en zeer variërende beplanting en biedt optimale privacy, achter de woning ligt een prachtige grote vijver waardoor er géén sprake is van achterburen.
Er zijn diverse terrassen gerealiseerd, waaronder een ruim terras direct aan het water en een riant terras met hardstenen bestrating tegen het huis gelegen, deels middels platanen overdekt. In de voor-/zijtuin is een vijverpartij aangelegd.
Verder is er een laadpunt voor een elektrische auto aanwezig.
BERGING
- Houten berging (ca. 3.00 x 3.00m);
- Inpandige berging (ca. 2.05 x 2.20m).
