 
	        		 
								Dit zeer statige vrijstaande herenhuis (gemeentelijk monument) met inpandige grote garage en oprit voor 2 auto’s is geheel gerenoveerd met behoud van karakter. Het ligt aan het meest geliefde stukje van de Heereweg, in het centrum van het dorp en is in 2018 zeer luxe verbouwd. De monumentale beukenbomen maken het gehele plaatje compleet. Het sfeervolle Vierkant met de vele terrassen, basisscholen en winkels zijn op loopafstand bereikbaar.
· Bouwjaar 1898  · Perceeloppervlakte: 610m²  · Woonoppervlakte 321m², Overige inpandige ruimte 62m² 
· Inhoud: 1.349m³
Begane grond
Fraai portaal waarin de markant hoge voordeur, imposant lange hal met de gerestaureerde authentieke granitovloer, garderobe en toiletruimte en een deur naar de tuin. Links van de hal een zeer royale woon-/leefkeuken met luxe keukeninrichting in mat wit uitgevoerd, prachtig kook-/ en spoeleiland met houten eetbar en alle inbouwapparatuur o.a. een fraaie wijnkoeling. Ook een gezellige gashaard en de grote achterpui met veel glas en openslaande deuren naar de tuin ontbreken niet. Rechts van de hal is er een tv-/zitkamer met een gashaard en dubbele deuren geven toegang tot de opkamer. Deze opkamer met een grote op maat gemaakte kastenwand is zeer geschikt als speel-/of werkkamer en heeft een trap naar de grote droge kelder met stahoogte. In het voormalige cellencomplex is een prachtige werkkamer gecreëerd, een bergkamer, een technische ruimte en is er één cel in originele staat behouden gebleven. De inpandig bereikbare garage is groot en o.a. voorzien van een elektrische segment deur met loopdeur en een vaste trap naar ruime bergzolder.
1e Etage
Ook hier een imposant lange hal met deur naar balkon, 3 fantastisch grote slaapkamers met mooie raampartijen, luxe badkamer met inloopdouche, ligbad en brede wastafel met 2 kranen op houten meubel, apart 2e luxe toiletruimte en 4e zeer royale was-/werkkamer.
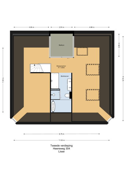
2e Etage
De hoofdslaapkamer bestrijkt de gehele etage en is voorzien van een inpandig balkon/loggia op het westen, inloopgarderobe en een luxe badkamer met ligbad, inloopdouche, 3e toilet en brede wastafel met twee kranen op houten meubel.
Tuin
De prachtig aangelegde tuin ligt rondom de woning en heeft o.a. een nieuw in authentieke stijl smeedijzeren hek, verlichting en beregening. De zeer zonnige achtertuin van 13 meter diep en 7.5 meter breed biedt veel privacy en is o.a. voorzien van een grote veranda waarin het ook in de koudere maanden goed toeven is.
Duurzaamheid
De woning is voorzien van muur-, en dakisolatie alsmede geïsoleerde beglazing. Verder zijn er 32 zonnepanelen en zijn er twee nieuwe HR ketels geplaatst.
Bijzonderheden
· Oprit voor 2 auto’s en inpandige garage
· Zeer hoge plafonds met vele inbouwspots
· Wanden en plafonds fraai gestuukt 
· Massief eikenhouten vloeren
· Luxe houten paneeldeuren
· In alle kamers op maat gemaakte kasten 
· Alarminstallatie
· Kantoor of praktijk aan huis is een prima optie, er is zelfs een eigen adres (Vuursteeglaan 1) 
. Gemeentelijk monument
Ook benieuwd, ik laat deze prachtige woning graag aan je zien. Tot snel, Miranda van der Wagt
