Ons kantoor is lid van Baerz & Co Luxury Homes; een internationaal platform dat exclusieve woningmakelaars met elkaar verbindt. Neem contact op met ons secretariaat voor meer informatie over het landelijke aanbod, waarvan u hieronder een selectie kunt bekijken.

METEREN
Blanckestyn 2 0 ong - 4194 CA
Nederland

Arjan Veelers profile image
Arjan Veelers
Directeur
€1.690.000 k.k.
Woonoppervlakte
350m2
Perceeloppervlakte
890m2
Slaapkamers
6

Omschrijving

Nieuwbouw op toplocatie in het hart van de Betuwe

Stelt u zich eens voor: een nieuwbouwwoning waar alles klopt. Waar u niets hoeft te verbouwen, niet hoeft te wachten, maar alleen nog maar hoeft te wonen. Aan de groene rand van woonwijk De Plantage in Meteren ligt deze gloednieuwe villa van 350 vierkante meter, gebouwd voor wie rust, ruimte en kwaliteit zoekt. De moderne architectuur, de doordachte indeling, de fijne tuin op het zuiden. Alles ademt comfort. Grote raampartijen trekken het daglicht naar binnen en verbinden de woonkeuken met het terras. Terwijl u de koffie inschenkt, kijkt u uit op uw eigen stukje vrijheid.

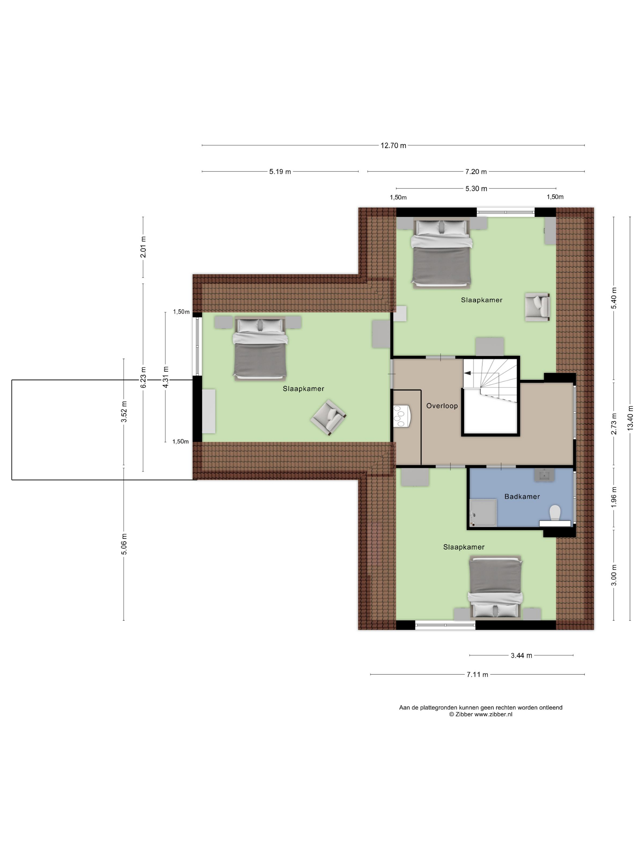
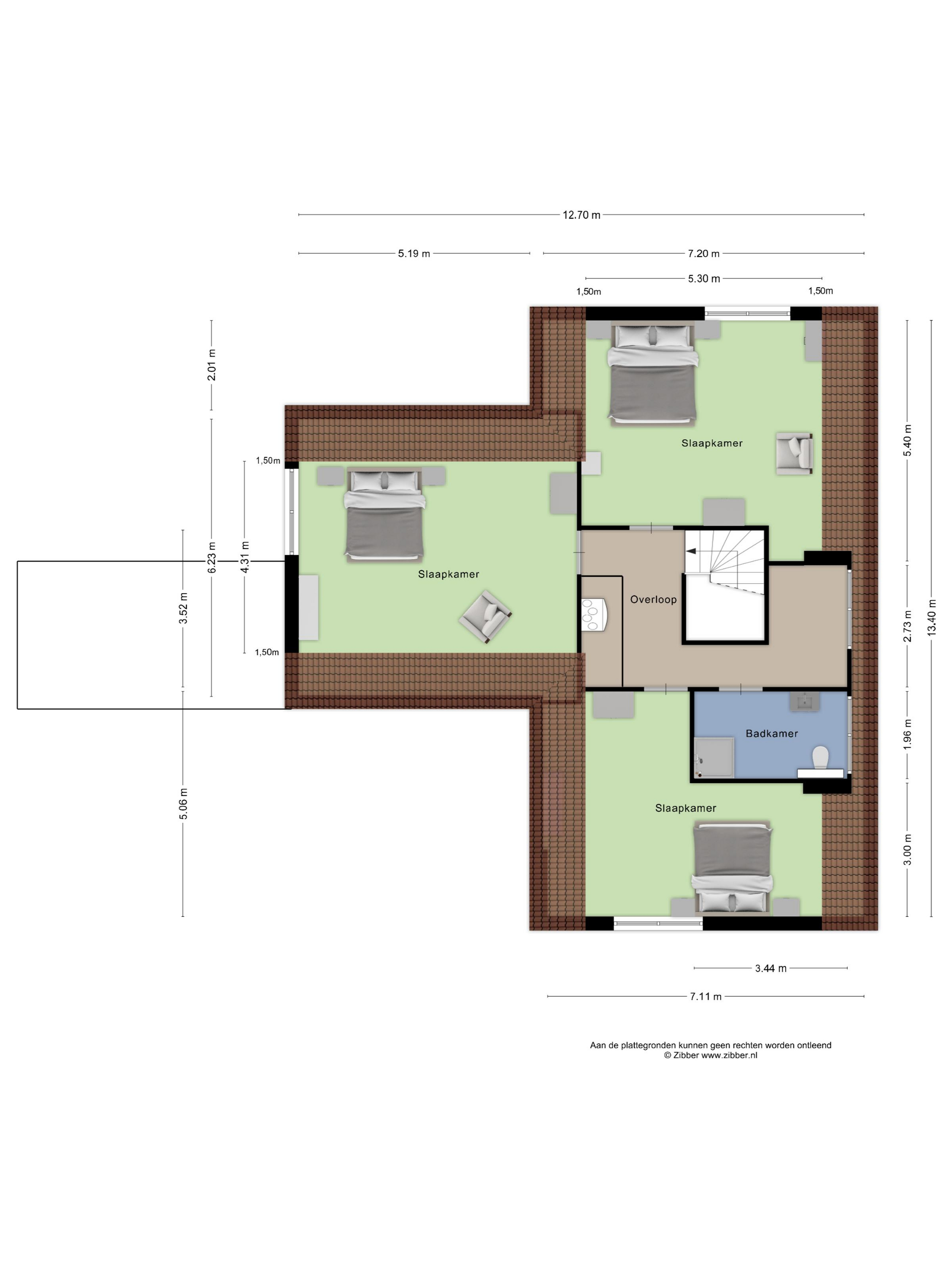
Binnen geniet u van zes ruime slaapkamers, drie badkamers en een indrukwekkende leefkeuken met kookeiland die het kloppende hart van het huis vormt. Er is ruimte voor gasten, thuiswerken, hobby’s of een praktijk aan huis, en tóch blijft het geheel overzichtelijk en warm aanvoelen. Elke verdieping is afgewerkt met hoogwaardige materialen en voorzien van eigentijdse luxe. Voorzien van een bodemwarmtepomp combineert deze woning luxe woongenot met een duurzaam energiesysteem. Buitenom wacht een grote tuin met overkapping, een berging met vliering en plek voor twee auto's met voorbereiding voor een laadpaal. Alles is klaar. U hoeft alleen nog uw meubels mee te nemen.

Hier woont u in de luwte, maar met het gemak van de stad dichtbij. Geldermalsen ligt op fietsafstand, met winkels, scholen en een treinstation dat u binnen 30 minuten naar Utrecht of Den Bosch brengt. De wijk zelf is ruim, groen en volop in ontwikkeling. De Plantage is een plek waar jong en oud samenkomt, waar kinderen veilig kunnen spelen en waar u de rust van het buitenleven combineert met de luxe van vandaag. Blanckestyn 2 is geen huis, het is een nieuw hoofdstuk. Klaar om geschreven te worden.

Bent u benieuwd hoe het voelt om hier binnen te stappen? We nemen graag de tijd om het u te laten ervaren. Bel ons voor een privébezichtiging en ontdek of dit bijzondere huis uw volgende thuis wordt. We staan voor u klaar via telefoon 088 – 808 9000.

Kenmerken van de villa

• Oplevering: mei 2025
• Bouwjaar: 2024/2025
• Perceeloppervlakte: 890 m²
• Woonoppervlakte: 350 m²
• 6 slaapkamers, 3 badkamers
• Sfeervolle leefkeuken aan tuinzijde
• Vide tussen begane grond en eerste verdieping
• Hoogwaardige afwerking met topmerken
• Energielabel A+++
• Voorzien van 9 zonnepanelen
• Voorzien van een bodemwarmtepomp

Kenmerken

Zonnepanelen
Overdracht
Vraagprijs
€ 1.690.000 k.k.
Status
beschikbaar
Aanvaarding
in overleg
Bouw
Soort woonhuis
Villa
Soort bouw
vrijstaande woning
Bouwjaar
2024
Energieklasse
A+++
Soort dak
zadeldak
Slaapkamers
6
Badkamers
3
Oppervlakten en inhoud
Woonoppervlakte
350 m2
Overige inpandige ruimte
16 m2
Gebouwgebonden buitenruimte
32 m2
Inhoud
1310 m3
Perceeloppervlakte
890 m2
faciliteiten
Zonnepanelen
Balansventilatie
In woonwijk
Vrij uitzicht
Landelijk gelegen
Baerz & Co Property Brochure

Brochure

Video’s

Plattegronden

DWE Nieuwbouw Makelaars

Vanadiumweg 11
3812 PX Amersfoort

a.veelers@dwe-nieuwbouw.nl
+31 888089000

www.dwe-luxuryhomes.com

Informatie / bezichtigingsaanvraag

Arjan Veelers profile image
Arjan Veelers
Directeur