Ons kantoor is lid van Baerz & Co Luxury Homes; een internationaal platform dat exclusieve woningmakelaars met elkaar verbindt. Neem contact op met ons secretariaat voor meer informatie over het landelijke aanbod, waarvan u hieronder een selectie kunt bekijken.

Herenhuis te koop in NIJMEGEN

NIJMEGEN Graafseweg 18 - 6512 CB Nederland


Freek van Camp profile image
Freek van Camp
Real Estate Agent
+31 6 55 70 03 60
f.van.camp@verbeek-makelaars.nl

Verbeek Makelaars
Mariaplein 6
6522 AV Nijmegen
NETHERLANDS
+31 24 22 00 111
www.verbeek-makelaars.nl
info@verbeek-makelaars.nl

Woonoppervlakte
352m2
Perceeloppervlakte
244m2
Slaapkamers
7

Omschrijving

Goed onderhouden, karakteristiek herenhuis aan de rand van het stadscentrum met een sfeervolle binnentuin. De woning is een gemeentelijk monument, bouwjaar 1880, en heeft veel originele kenmerken uit deze periode. Denk hierbij aan marmeren vloeren, een stijlvol trappenhuis, hoge plafonds met ornamenten, klassieke schouwen en rijke paneeldeuren en kozijnen.

Naast een royale voortuin beschikt de woning over een balkon, loggia, dakterras én een stadstuin met veel privacy die grenst aan een voormalige kerk. De woning heeft vier woonlagen en elke verdieping is voorzien van een keuken, sanitair en een buitenruimte.

Verder heeft het herenhuis een gunstige ligging dichtbij allerlei voorzieningen. Zo liggen het centrum en het centraal station op loopafstand.

Indeling

Souterrain:
Gang met witgoedaansluiting, aan de achterzijde bevindt zich een open keuken met toegang tot de berging met mechanische ventilatie en stookruimte. Vanuit deze gang zijn aan de voorzijde van de woning een woonkamer met slaapgedeelte aanwezig, inclusief vaste kasten en de badkamer. De keuken heeft een U-opstelling en is voorzien van inbouwapparatuur. De badkamer is uitgerust met een wandtoilet, wastafelmeubel en inloopdouche.

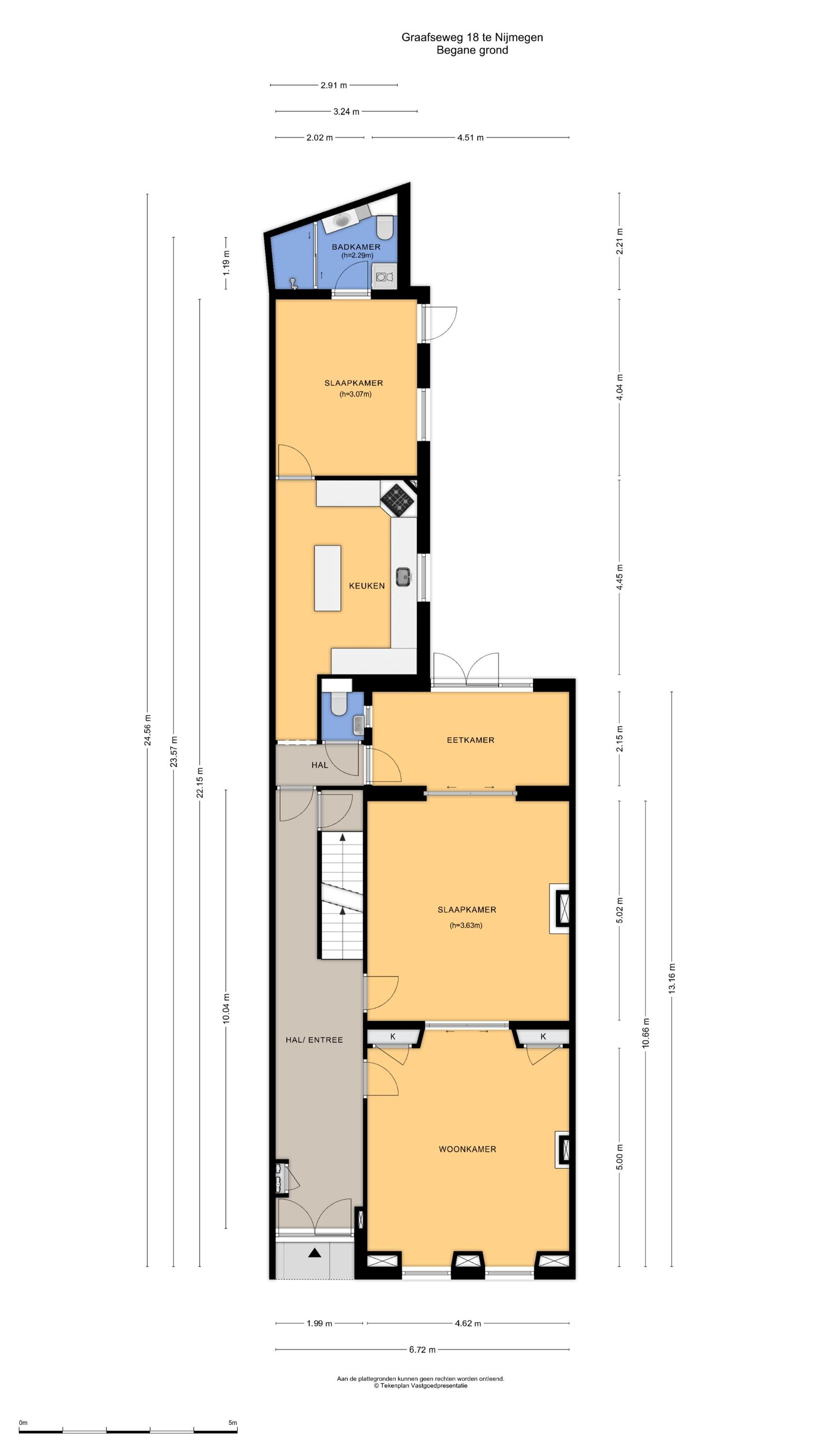
Begane grond (bel-etage):
Statige hal/entree met meterkast en prachtig authentiek trappenhuis met marmeren vloeren, woonkamer en suite en eetkamer met schuifpui. In de kamer aan de voorzijde zijn de originele vensterbanken nog aanwezig, hier kan je lekker van de ochtendzon genieten. Via een tussenhal zijn het toilet, keuken en slaapkamer met badkamer bereikbaar. De sfeervolle binnentuin is toegankelijk zowel vanuit de eetkamer als de slaapkamer. De ruime keuken heeft een U-opstelling met inbouwapparatuur en een barretje.

Eerste verdieping:
Overloop met twee zeer ruime kamers met hoge ornamentenplafonds. De kamer aan de voorzijde heeft toegang tot het balkon en de kamer aan de achterzijde heeft schuifdeuren naar een prachtige loggia. Tevens zijn er op deze verdieping een dichte keuken met apparatuur en een barretje, twee badkamers, een separaat toilet en een studio met hoogslaper en keukenblok gesitueerd.

Tweede verdieping:
Middels een vaste trap is de bovenste verdieping bereikbaar, hier bevindt zich een ruime woonkamer met een bedstee. Tevens is er een moderne dichte keuken met witgoedaansluiting en er is een functionele badkamer met toilet en douche. Deze verdieping is sfeervol doordat de originele constructiebalken zichtbaar zijn gebleven en de ruimte is lekker licht door de dakramen. Bovendien is er veel bergruimte in vaste kasten.

Bijzonderheden:
- Woonoppervlakte ca. 352 m².
- Overig inpandige ruimte ca. 18 m².
- Buitenruimte ca. 12 m².
- Perceel ca. 244 m².
- Het betreft een gemeentelijk monument.
- Vanwege de monumentenstatus is er geen energielabel aanwezig, wel is de woning geïsoleerd (2000: isolatie pannendak, 2021: vernieuwen en isoleren platte dak serre en uitbouw, ca. 2001: vloerisolatie en de woning is gedeeltelijk voorzien van dubbelglas).
- Het huis is goed onderhouden, schilderwerk buiten is gedaan in 2023.
- Op het pand zit een gemengde bestemming (wonen en werken).
- In de koopakte worden enkele clausules (niet zelf bewoond en ouderdom) opgenomen.

Kenmerken

Overdracht
Vraagprijs
€ 1.195.000 k.k.
Status
beschikbaar
Aanvaarding
in overleg
Bouw
Soort woonhuis
Herenhuis
Soort bouw
tussenwoning
Bouwjaar
1888
Soort dak
dwarskap
Slaapkamers
7
Badkamers
5
Oppervlakten en inhoud
Woonoppervlakte
352 m2
Overige inpandige ruimte
18 m2
Gebouwgebonden buitenruimte
12 m2
Inhoud
1450 m3
Perceeloppervlakte
244 m2
faciliteiten
Mechanische ventilatie
Tv kabel
Rookkanaal
Schuifpui
Dakraam
Natuurlijke ventilatie
In centrum
Baerz & Co Property Brochure

Brochure

Informatie / bezichtigingsaanvraag

Video's

Foto's

Plattegronden