 
	        		 
								Zelden doet zich zo’n unieke kans voor.
Op een werkelijk fantastische locatie in Noordwijk, direct aan de boulevard en op slechts enkele stappen van het strand, staat de royale vrijstaande villa ‘Elisabeth’ met dubbele garage. 
Hier begint de dag met een frisse duik in zee en eindigt de dag met een geweldige zonsondergang. Een uitzicht dat elk seizoen anders is en nooit  verveelt.
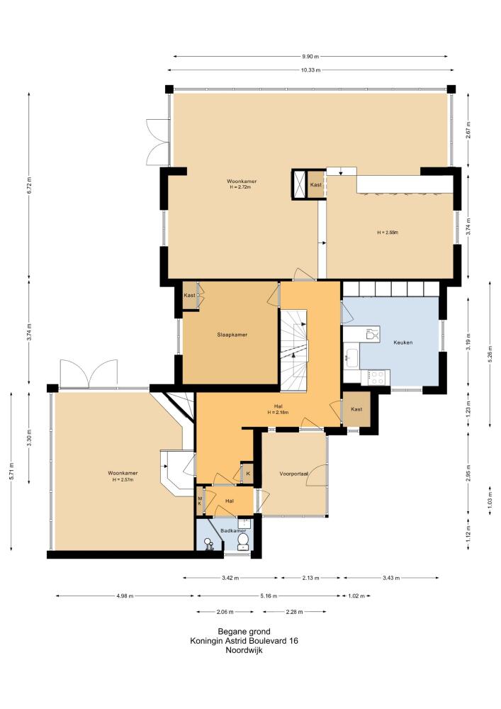
    •	2 Woonkamers
    •	5 Slaapkamers
    •	2 Badkamers
    •	Parkeren op eigen terrein
Bouwjaar 1888, in ca. 1980 van binnen grondig verbouwd, woonoppervlakte 220m2, inhoud 891m3, perceel 608m2
De woning biedt uitstekende mogelijkheden om geheel naar eigen smaak te moderniseren.
Door de grote raampartij in de living geniet je hier elke dag van het fenomenale uitzicht en geeft de open haard extra warmte en sfeer op koudere dagen.
De keuken, voorzien van inbouwapparatuur, is praktisch ingericht met veel kastruimte. Verder vind je op de begane grond een lichte 2e woonkamer met een gashaard, ideaal voor ontspanning of als ruime werkkamer. Daarnaast beschikt de begane grond  over een comfortabele slaapkamer met inbouwkast. Het ruime zonnige terras op het zuiden is bereikbaar via de beide woonkamers. De badkamer in de hal is ideaal om na een dagje strand het zand direct van je af te spoelen.
1e Verdieping
Op de eerste verdieping bevinden zich vier  slaapkamers, alle voorzien van vaste kasten en twee hebben een adembenemend uitzicht op zee.  De grote dakkapel aan de voorzijde zorgt voor extra licht en ruimte. De ruime badkamer is praktisch ingericht en maakt deze verdieping compleet.
Kelder
In de kelder is een hobbyruimte, een was- en stookruimte met extra bergruimte, wat zorgt voor veel praktische opbergmogelijkheden.
De villa beschikt bovendien over een dubbele garage met één elektrische deur, een bergvliering en een loopdeur naar de tuin. Voor de garage is er parkeergelegenheid voor 3 auto’s.
Duurzaamheid
Deze woning heeft energielabel G en vraagt om de nodige aandacht en renovatie, maar biedt daardoor ook veel potentieel.
Locatie
De ligging is werkelijk uniek: u woont hier nagenoeg op het strand, direct aan de boulevard en vlakbij gezellige restaurants en alle voorzieningen die Noordwijk te bieden heeft. 
Een plek met een lange historie en waar ieder jaargetijde te genieten is van strand, zee en het geweldige uitzicht.
   
Historie
Villa Elisabeth was onderdeel van het oude Huis ter Duincomplex. Destijds werden gasten van Huis ter Duin net zo gemakkelijk hier ondergebracht. Eén van hen was de Duitse kunstschilder Max Liebermann, die in zijn eerste periode, een aantal zomers vóór de Eerste Wereldoorlog, in Noordwijk in deze villa heeft gelogeerd.
De woning ligt aan de Max Liebermann route. Een prachtige route door heel Noordwijk, langs de kust, het historische centrum en terug over het strand. Plekken waar Max Liebermann daadwerkelijk schilderde.
Bijzonderheden
    •	Zeer unieke locatie 
    •	Aan de boulevard gelegen
    •	Adembenemend uitzicht over strand en zee
    •	Nabij restaurants, winkels en het historisch centrum van Noordwijk
    •	Toegestaan als tweede woning
    •	Gelegen aan de Max Liebermann route
Mis deze unieke kans niet en bel ons kantoor voor een afspraak
Makelaar Frits Wilbrink leidt je graag rond.
