Ons kantoor is lid van Baerz & Co Luxury Homes; een internationaal platform dat exclusieve woningmakelaars met elkaar verbindt. Neem contact op met ons secretariaat voor meer informatie over het landelijke aanbod, waarvan u hieronder een selectie kunt bekijken.

Villa te koop in ROTTERDAM

ROTTERDAM Plasoord 13 - 3054 LJ Nederland


Joris van Oosten profile image
Joris van Oosten
Real Estate Agent
+31 6 42 19 84 37
info@vanoostenmakelaardij.nl

J.J. Van Oosten Makelaardij BV
Straatweg 225
3054 AG Rotterdam
NETHERLANDS
+31 10 422 11 00
www.vanoostenmakelaardij.nl
info@vanoostenmakelaardij.nl

Woonoppervlakte
119m2
Perceeloppervlakte
226m2
Slaapkamers
4

Omschrijving

Beelden zeggen meer dan 1000 woorden en deze sublieme locatie behoeft geen nadere omschrijving.

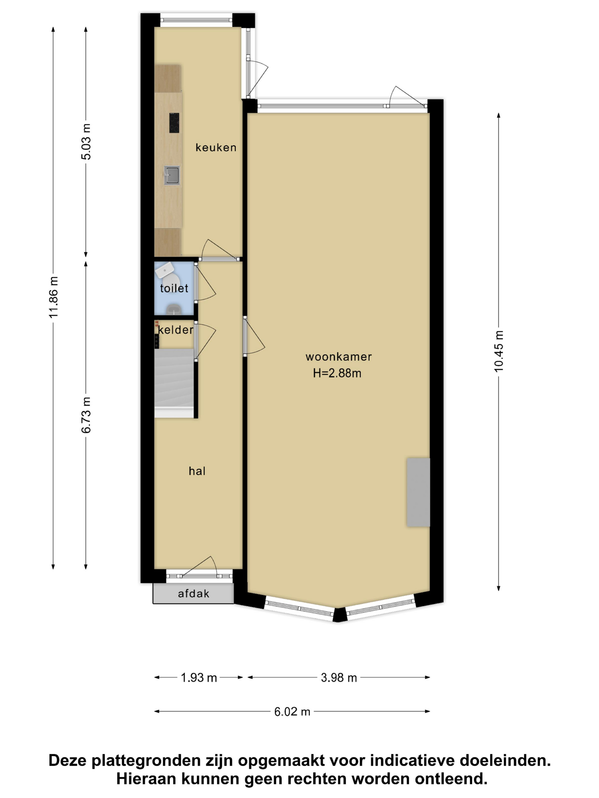
Van de 29m2 overige inpandige ruimte is 7m2 kelder en 22m2 het oppervlak van de 2e verdieping. Als de huidige dakkapel aan de achterzijde een paar cm verhoogd wordt, dan telt de 22m2 mee als gebruiksoppervlak wonen.

Door het plaatsen van een dakkapel aan de voorzijde zal het gebruiksoppervlak wonen zelfs verder toenemen, ook als de dakkapel achter niet verhoogd wordt.

Bijzonderheden:
- bouwjaar 1927
- gelegen op 226m2 eigen grond
- mogelijkheid voor het aanmeren van een sloep aan de achtertuin
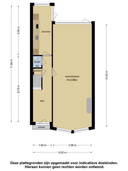
- gebruiksoppervlakte wonen ca. 119 m2 (conform NEN-2580)
- gebruiksoppervlakte overige inpandige ruimte ca. 29 m2 (conform NEN-2580)
- gebouw gebonden buitenruimte ca. 10 m2 (conform NEN-2580)
- gedeeltelijk voorzien van dubbel glas
- warm water en verwarming middels c.v.-combiketel uit 2021
- energielabel D

Oplevering in overleg.

Voor aanvullende informatie over deze woning kunt u de eigen website (adres+huisnummer) bezoeken.

J.J. van Oosten Makelaardij is de NVM-makelaar van de verkoper. Wij adviseren u uw eigen NVM-makelaar in te schakelen om uw belangen te behartigen bij de aankoop van dit object.
Aan deze aanbiedingstekst kunnen geen rechten worden ontleend.

De Meetinstructie is gebaseerd op de NEN2580. De Meetinstructie is bedoeld om een meer eenduidige manier van meten toe te passen voor het geven van een indicatie van de gebruiksoppervlakte. De Meetinstructie sluit verschillen in meetuitkomsten niet volledig uit, door bijvoorbeeld interpretatieverschillen, afrondingen of beperkingen bij het uitvoeren van de meting.

Kenmerken

Overdracht
Vraagprijs
€ 1.250.000 k.k.
Status
beschikbaar
Aanvaarding
in overleg
Bouw
Soort woonhuis
Eengezinswoning
Soort bouw
tussenwoning
Bouwjaar
1927
Energieklasse
D
Soort dak
zadeldak
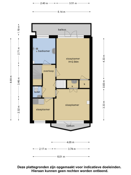
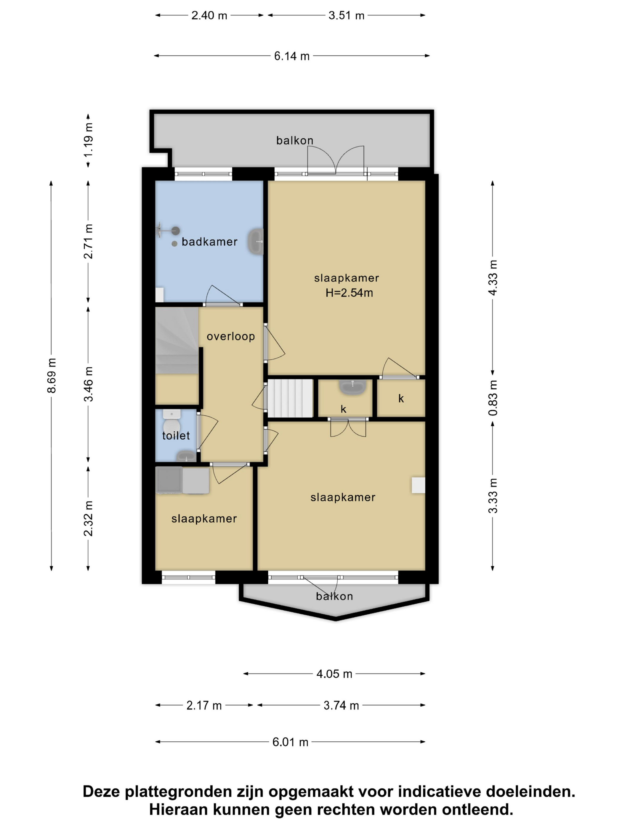
Slaapkamers
4
Badkamers
1
Oppervlakten en inhoud
Woonoppervlakte
119 m2
Overige inpandige ruimte
29 m2
Gebouwgebonden buitenruimte
10 m2
Inhoud
522 m3
Perceeloppervlakte
226 m2
faciliteiten
Tv kabel
Buitenzonwering
Aan water
In woonwijk
Vrij uitzicht
Aan vaarwater
Baerz & Co Property Brochure

Brochure

Informatie / bezichtigingsaanvraag

Video's

Foto's

Plattegronden