Ons kantoor is lid van Baerz & Co Luxury Homes; een internationaal platform dat exclusieve woningmakelaars met elkaar verbindt. Neem contact op met ons secretariaat voor meer informatie over het landelijke aanbod, waarvan u hieronder een selectie kunt bekijken.

'S-GRAVENHAGE
Hellingkade 82 - 2583 WC
Нидерланды

Irma Postma profile image
Irma Postma
Real estate agent
€800,000 k.k.
Жилая площадь
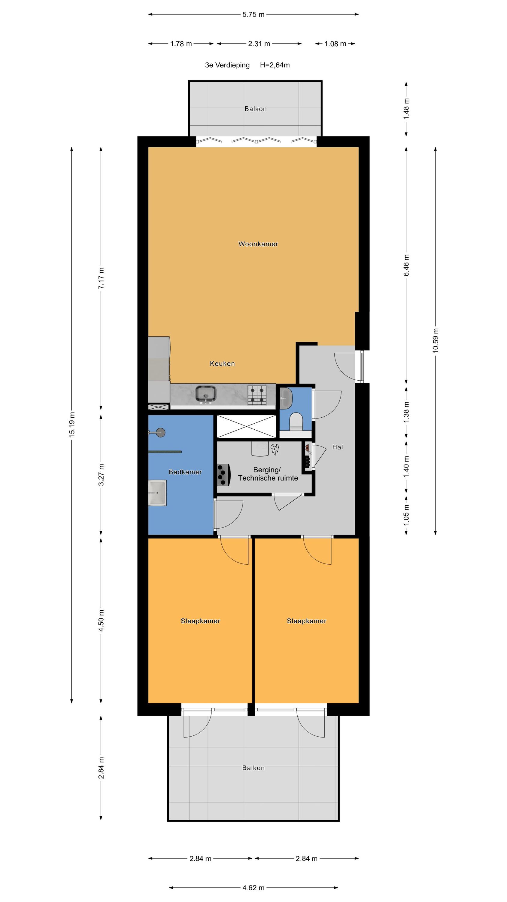
86m2
Размер участка
N/A
Спальни
2

Описание

Апартаменты Scheveningen предоставляют 86 м² утончённой прибрежной жизни, расположены у самой гавани с захватывающим видом на море. Эта новая резиденция с двумя спальнями на третьем этаже сочетает динамику и приватность: большие окна и раздвижные двери наполняют интерьеры панорамным светом и ритмом воды внизу. Вид на гавань и энергия оживлённой набережной Схевенингена связывает повседневную жизнь с изменчивым настроением моря.

Пространство гостиной открытой планировки организовано вокруг кухни NEXT-125 с композитной столешницей и встроенной техникой, включая систему Quooker, индукционную плиту с встроенной вытяжкой и комбинированный духовой шкаф. Тёплый пол с возможностью охлаждения проходит по всей квартире, обеспечивая энергоэффективность на уровне класса A+++. В каждом помещении, кроме технического, царит комфорт. Балкон на южной стороне выходит во двор, предоставляя спокойные минуты отдыха; доступ возможен из обеих спален.

Владельцы пользуются частным парковочным местом с возможностью установки индивидуальной зарядной станции для электромобиля, а также общим крытым помещением для хранения велосипедов с пунктами зарядки. Полная изоляция, отсутствие газа и собственная тепловая помпа выводят эти апартаменты на передовой уровень устойчивого жилья. Рядом находятся бутики Frederik Hendriklaan, исторический центр Гааги, а также оживлённые рестораны и пляжи гавани, подчеркивая стиль жизни, доступный только в роскошных апартаментах на продажу в Схевенингене.

Особенности

Передача права собственности
Запрашиваемая цена
€ 800.000 k.k.
Статус
verkocht onder voorbehoud
Принятие
in overleg
Строительство
Тип дома
Portiekflat
Тип здания
appartement
Период строительства
2024
Энергетический рейтинг
A+++
Тип крыши
plat dak
Спальни
2
Ванные комнаты
1
Площадь и объем
Жилая площадь
86 m2
Другое внутреннее пространство
0 m2
Внешнее пространство, прикрепленное к зданию
18 m2
Внешнее складское помещение
6 m2
Объем в кубических метрах
289 m3
Удобства
Mechanische ventilatie
Lift
Glasvezel kabel
Balansventilatie
Vrij uitzicht
Open ligging
Zeezicht
Baerz & Co Property Brochure

Брошюра

Видео

Планы этажей

Nelisse Makelaarsgroep

Statenlaan 128
2582 GW Den Haag

info@nelisse.nl
+31 (70) 350 14 00

www.nelisse.nl

Информация / Запрос на просмотр

Irma Postma profile image
Irma Postma
Real estate agent