Ons kantoor is lid van Baerz & Co Luxury Homes; een internationaal platform dat exclusieve woningmakelaars met elkaar verbindt. Neem contact op met ons secretariaat voor meer informatie over het landelijke aanbod, waarvan u hieronder een selectie kunt bekijken.

ALMEN
Lage Lochemseweg 31 a - 7218 PA
Нидерланды

Jenne de Haan profile image
Jenne de Haan
Real Estate Agent
€2,445,000 v.o.n.
Жилая площадь
438m2
Размер участка
70635m2
Спальни
3

Описание

Поместье в Алмене, Нидерланды, является редким соединением исторического масштаба и утонченного образа жизни, расположенное на романтических берегах реки Беркел. Главный фермерский дом с жилой площадью 438 м² и объемом 2 564 м³ служит центральным элементом владения общей площадью около 70 635 м², окруженного дубовыми и буковыми лесами, лугами с дикими цветами и декоративным садом. Эта обстановка отражает века голландского наследия — в архивах поместье Erve Besselink упоминается уже в 1382 году, а основной дом, построенный в 1800 году, был полностью преобразован согласно современным стандартам и превосходно отделан после обновления в 2011 году.

В интерьере сочетается величественный исторический характер с современными материалами. Натуральный травертин Vieux de Bourgogne, обработанный маслом дуб, изысканные льняные обои и тщательно восстановленные полы гармонируют с современными удобствами — кондиционером, теплым полом и солнечными панелями. Три спальни включают спокойную мастер-сьют с двойным душем Rain Shower, отдельно стоящей ванной и гардеробной с дверями из обожжённой древесины. Гостиные просторные и наполнены светом, раздвижные двери соединяют музыкальные комнаты, сады и террасы, ориентированные на естественное освещение и виды на реку.

Универсальный амбар может использоваться как частная студия, бизнес-ателье или гостевой дом, сохраняя оригинальные балки и восстановленные материалы. Рядом с кухней расположена солнечная терраса с видом на фруктовые сады и тщательно продуманное озеленение. На территории есть теплица и огород для самообеспечения. Классический сеновал предназначен для хранения автомобилей, а на частных участках предусмотрено достаточно парковочных мест для уединения и комфорта.

За пределами усадьбы Алмен открывает поэтичные пейзажи, величественные аллеи, древние церкви и удобный доступ к Зутфену и агломерации Рандстад, а река Беркел располагает к прогулкам, гребле на каноэ и сельскому покою. Объект признан культурной ценностью согласно акту о природной красоте от 1928 года. Это поместье в Алмене сочетает происхождение, ландшафт и вневременное мастерство, предоставляя редкую приватность и привилегированный взгляд на окружающий мир.

Исследуйте Almen вместе с Baerz — вашим надежным советником и личным поисковиком недвижимости



Избегайте распространённых ошибок

Международные покупатели часто тратят ценное время на изучение дублирующихся, устаревших или вводящих в заблуждение онлайн-объявлений, особенно учитывая, что почти 30% объектов элитной недвижимости вообще не появляются на открытом рынке.
Агенты продавца представляют интересы продавца, а не ваши, и даже простой запрос о недвижимости может привести к тому, что агентство зарегистрирует вас как своего “клиента” без вашего согласия.
С Baerz Property Finders & Advisors вы полностью избегаете этих подводных камней.
Мы действуем исключительно в ваших интересах, предоставляя независимое представительство, прозрачные рекомендации и доступ ко всем доступным объектам, включая частные и вне-рыночные предложения, которых другие никогда не увидят.

Хотите узнать, как получить собственного персонального консультанта по недвижимости? Свяжитесь с нами, чтобы узнать, как мы можем представлять ваши интересы и открыть вам весь рынок.

Особенности

Солнечные панели
Кондиционер
Передача права собственности
Запрашиваемая цена
€ 2.445.000 v.o.n.
Статус
beschikbaar
Принятие
in overleg
Строительство
Тип дома
Landgoed
Тип здания
vrijstaande woning
Период строительства
1890
Энергетический рейтинг
C
Тип крыши
samengesteld dak
Спальни
3
Ванные комнаты
2
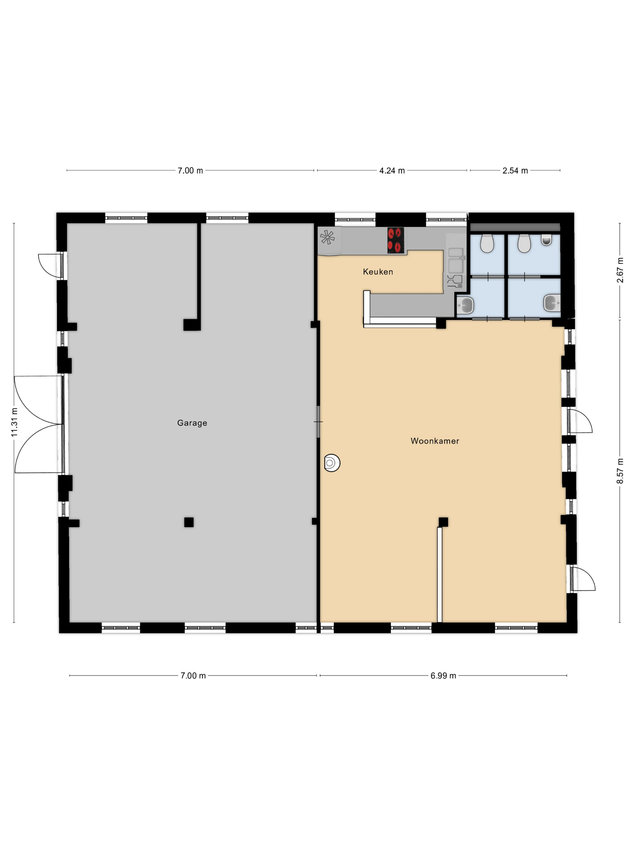
Площадь и объем
Жилая площадь
438 m2
Другое внутреннее пространство
253 m2
Внешнее складское помещение
94 m2
Объем в кубических метрах
2564 m3
Размер участка
70635 m2
Удобства
Buitenzonwering
Airconditioning
Rookkanaal
Dakraam
Zonnepanelen
Aan rustige weg
Vrij uitzicht
Buiten bebouwde kom
Aan vaarwater
Landelijk gelegen
Baerz & Co Property Brochure

Брошюра

Видео

360 Панорамы

360°
360 Panorama - Lage Lochemseweg 31 a
360°
360 Panorama - Lage Lochemseweg 31 a
360°
360 Panorama - Lage Lochemseweg 31 a
360°
360 Panorama - Lage Lochemseweg 31 a
360°
360 Panorama - Lage Lochemseweg 31 a
360°
360 Panorama - Lage Lochemseweg 31 a
360°
360 Panorama - Lage Lochemseweg 31 a
360°
360 Panorama - Lage Lochemseweg 31 a

Планы этажей

de Haan Schippers Makelaars

Larenseweg 53
7241 CM Lochem

dehaan@dehaanschippers.nl
+31 573 25 82 58

www.dehaanschippers.nl

Информация / Запрос на просмотр

Jenne de Haan profile image
Jenne de Haan
Real Estate Agent