Welkom bij Korver makelaars Internationaal. Ook ver buiten Nederland zijn wij zeer actief. Via ons internationale netwerk binnen Baerz & Co Luxury Homes begeleiden onze Nederlandse (!) partners u vakkundig bij de aankoop van exclusieve tweede huizen. U vindt ons in 20 landen rond de Middellandse zee, de Alpen, Mexico en Dubai. Neem voor meer informatie contact op met ons secretariaat.

BARCELONA
Испания

Chantal Cunningham profile image
Chantal Cunningham
Chief Property Advisory
€2,100,000
Жилая площадь
201m2
Размер участка
N/A
Спальни
3

Описание

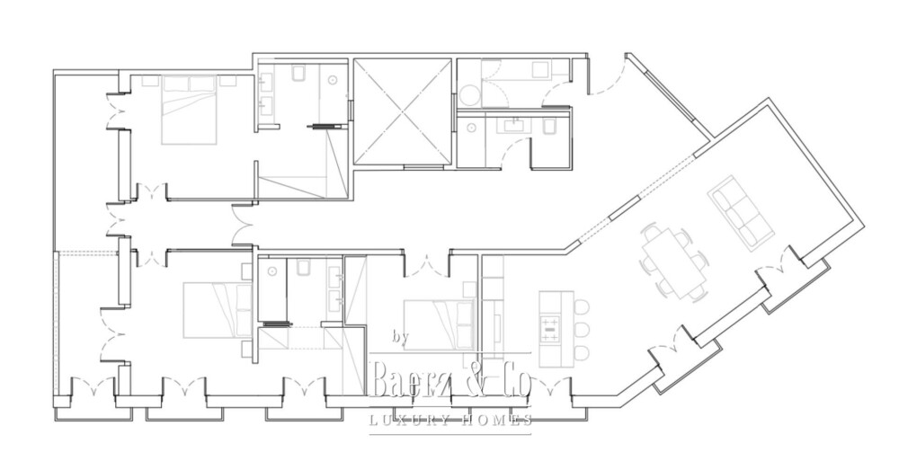
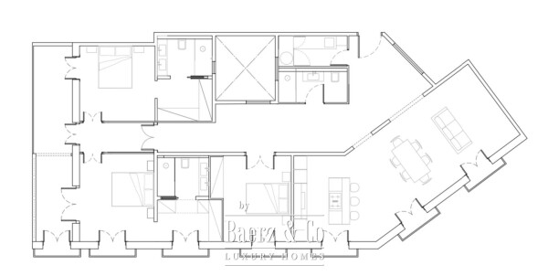
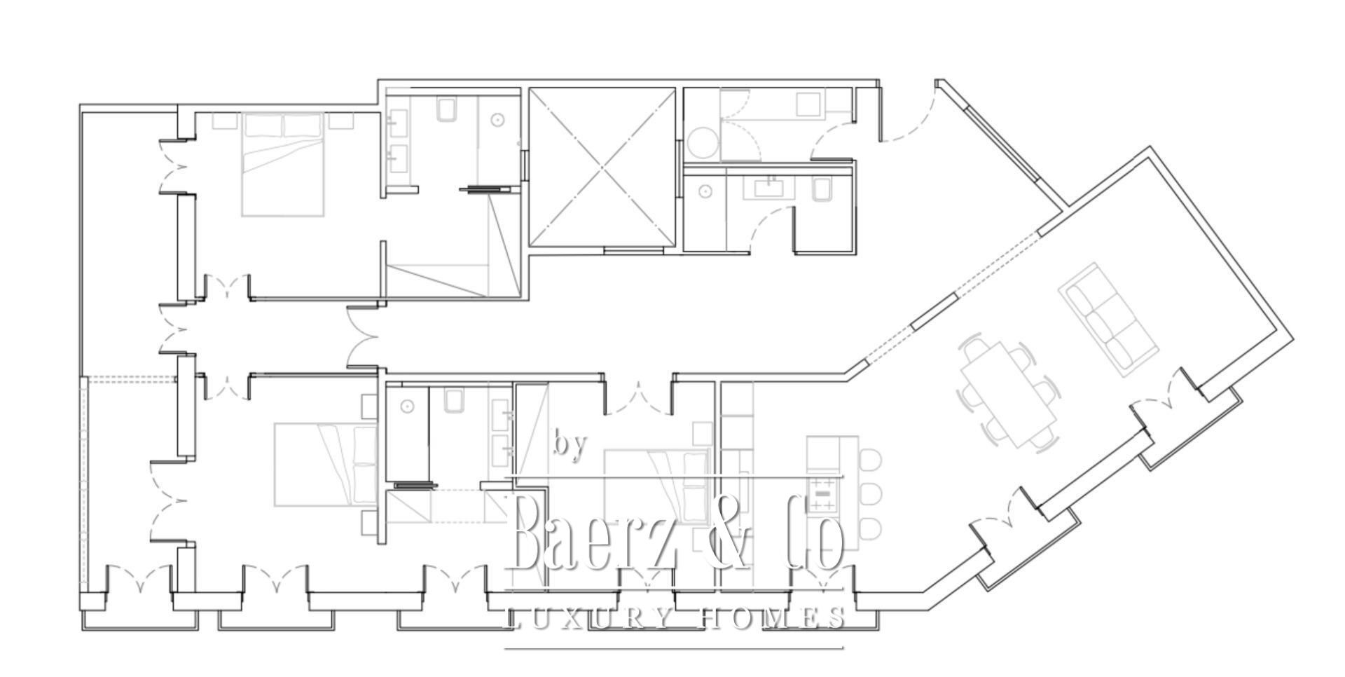
Пентхаус Barcelona Quadrat d'Or — воплощение изысканной жизни на пересечении Calle Girona и Gran Via de les Corts Catalanes. Этот полностью отреставрированный пентхаус площадью 201 м² с террасой 20 м² расположен в самом сердце знакового района Quadrat d'Or в Барселоне, обеспечивая непосредственный доступ к Passeig de Gràcia и Plaça Catalunya. Резиденция создана для истинных ценителей дизайна, истории и вечного характера исторических кварталов.

Планировка включает три двухместные спальни, две из которых с собственными ванными комнатами, и три полноценных санузла. Бережная реставрация позволила сохранить оригинальную гидравлическую плитку и деревянные элементы, дополняя их современным комфортом благодаря системе аэротермии. Просторная гостиная, объединённая со столовой, плавно переходит в индивидуально спроектированную открытую кухню с центральным островом, премиальной техникой Miele и Liebherr, столешницами Neolith и лакированными шкафами. Балконы, большое количество мест для хранения и отдельная прачечная делают повседневную жизнь более удобной.

Свет проникает с террасы и балконов, создавая гармонию между утончённым интерьером и панорамой Барселоны. В здании имеется лифт и профессиональный консьерж-сервис. Этот роскошный пентхаус на продажу в Барселоне уникально сочетает городскую энергию и приватность, окружён ресторанами, театрами, бутиками и архитектурными достопримечательностями. Итог — сдержанная элегантность в самом центре города.

Исследуйте Barcelona вместе с Baerz — вашим надежным советником и личным поисковиком недвижимости

Обращение к экспертному консультанту в престижных сегментах рынка Барселоны неоценимо. Это обеспечивает уверенное ориентирование в нюансах, доступ к эксклюзивным и конфиденциальным предложениям, квалифицированные переговоры. Индивидуальное сопровождение обеспечивает деликатность, глубокие связи и защиту интересов на каждом этапе сделки, помогая клиенту достичь поставленных целей.

Избегайте распространённых ошибок

Международные покупатели часто тратят ценное время на изучение дублирующихся, устаревших или вводящих в заблуждение онлайн-объявлений, особенно учитывая, что почти 30% объектов элитной недвижимости вообще не появляются на открытом рынке.
Агенты продавца представляют интересы продавца, а не ваши, и даже простой запрос о недвижимости может привести к тому, что агентство зарегистрирует вас как своего “клиента” без вашего согласия.
С Baerz Property Finders & Advisors вы полностью избегаете этих подводных камней.
Мы действуем исключительно в ваших интересах, предоставляя независимое представительство, прозрачные рекомендации и доступ ко всем доступным объектам, включая частные и вне-рыночные предложения, которых другие никогда не увидят.

Хотите узнать, как получить собственного персонального консультанта по недвижимости? Свяжитесь с нами, чтобы узнать, как мы можем представлять ваши интересы и открыть вам весь рынок.

Особенности

Передача права собственности
Запрашиваемая цена
€ 2.100.000
LAS
Строительство
Комнаты
N/A
Спальни
3
Ванные комнаты
3
Площадь и объем
Жилая площадь
201 m2
Размер участка
0 m2
Удобства
Balcon
A/A
Telephone
Terrace
Elevator
Wardrobes cupboard
Appliances
Light
Town Gas
Laundry
Automatic Doors
Satellite
T. V.
Clearly
Baerz & Co Property Brochure

Брошюра

Видео

Информация / Запрос на просмотр

Chantal Cunningham profile image
Chantal Cunningham
Chief Property Advisory

Buying a Luxury Property in Barcelona

Элитный рынок недвижимости Барселоны открыт для международных резидентов, ищущих утончённый стиль жизни, динамичную культуру и безопасные инвестиционные возможности. Здесь, в средиземноморском центре, сочетаются наследие, сообщество и высочайший уровень сервиса.