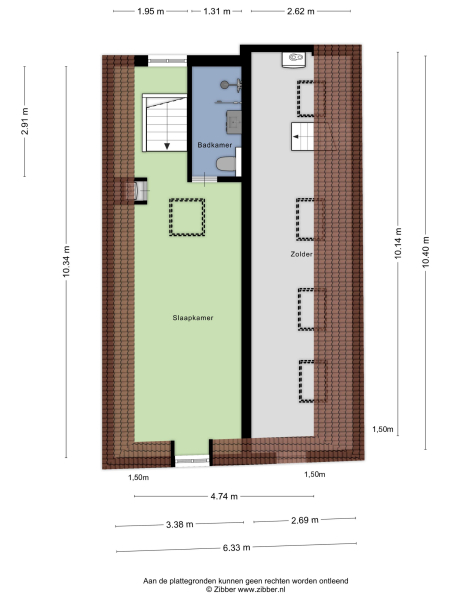
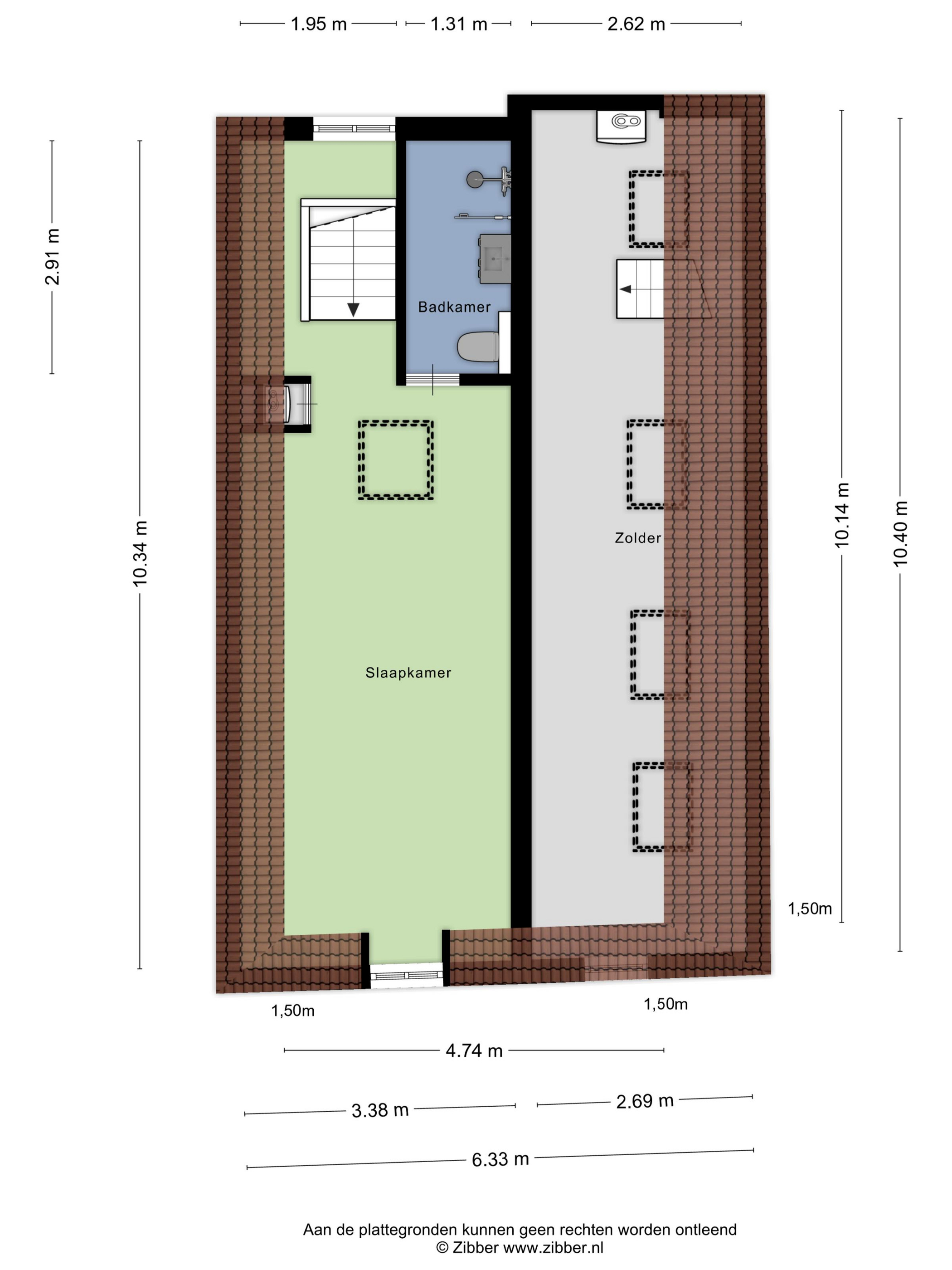
Этот монументальный дом в Лейдене занимает исключительное положение в историческом центре города, фасад которого открывается на завораживающие виды Рейна. Собственность объединяет два фронтальных дома и спокойную заднюю резиденцию, теперь безупречно преобразованные в многослойный, гибкий семейный дом. На площади 332 м² расположены семь спален, пять из которых имеют собственные ванные комнаты, обеспечивая приватность и комфорт как жильцам, так и гостям. Естественный свет щедро наполняет каждое просторное помещение, а высокие потолки добавляют ощущение объема и умиротворения.
Три разные террасы на крыше, включая просторную зону рядом с кухней и столовой, предлагают уникальное пространство на свежем воздухе в городской среде. Две кухни дома — одна из них особенно предназначена для кулинарных энтузиастов — приглашают наслаждаться знаменитыми рынками Лейдена и продуктами местных поставщиков, в нескольких шагах от входа. Многочисленные помещения для хранения расположены в цоколе, подвале и на чердаке, позволяя поддерживать высокий уровень порядка и возможностей.
Архитектурно значимый, этот объект внесен в реестр национальных памятников и расположен в охраняемой городской среде. Современные удобства — механическая вентиляция, оптоволоконный кабель, телевидение и частичное двойное остекление — тонко подчеркивают исторический облик дома. Акт раздела преобразует этот дом в единый апартамент, а потенциальным покупателям предоставляется независимая техническая экспертиза. Этот дом — не просто место жительства; это воплощение статуса в одном из самых известных районов Лейдена. Для тех, кто ищет роскошный дом на продажу в Лейдене, сочетающий уважение к наследию и современности, это предложение станет исключительным приглашением.
Исследуйте Leiden вместе с Baerz — вашим надежным советником и личным поисковиком недвижимости
Рынок Лейдена требует глубоких знаний местных традиций, норм и закрытых предложений. Авторитетные советники обеспечивают доступ к эксклюзивным портфелям, ведут переговоры и сопровождают сделки на всех этапах, предугадывая тренды и защищая интересы клиента.
Избегайте распространённых ошибок
Международные покупатели часто тратят ценное время на изучение дублирующихся, устаревших или вводящих в заблуждение онлайн-объявлений, особенно учитывая, что почти 30% объектов элитной недвижимости вообще не появляются на открытом рынке.
Агенты продавца представляют интересы продавца, а не ваши, и даже простой запрос о недвижимости может привести к тому, что агентство зарегистрирует вас как своего “клиента” без вашего согласия.
С Baerz Property Finders & Advisors вы полностью избегаете этих подводных камней.
Мы действуем исключительно в ваших интересах, предоставляя независимое представительство, прозрачные рекомендации и доступ ко всем доступным объектам, включая частные и вне-рыночные предложения, которых другие никогда не увидят.
Хотите узнать, как получить собственного персонального консультанта по недвижимости? Свяжитесь с нами, чтобы узнать, как мы можем представлять ваши интересы и открыть вам весь рынок.