Ons kantoor is lid van Baerz & Co Luxury Homes; een internationaal platform dat exclusieve woningmakelaars met elkaar verbindt. Neem contact op met ons secretariaat voor meer informatie over het landelijke aanbod, waarvan u hieronder een selectie kunt bekijken.

OEGSTGEEST
Prins Bernhardlaan 53 - 2341 KJ
Нидерланды

Wim Graal RM profile image
Wim Graal RM
NVM Register Makelaar & Partner
€1,520,000 k.k.
Жилая площадь
294m2
Размер участка
245m2
Спальни
7

Описание

Особняк Herenhuis Oegstgeest представляет собой подлинный образец мастерства 1930-х годов и находится в самом сердце престижного района. Эту элегантную резиденцию с жилой площадью 294 м² отличают высокие потолки, оригинальные витражные окна, паркетные полы и классические панели на стенах. Ключевой запрос herenhuis Oegstgeest отражён в гармоничном сочетании исторического наследия и современного комфорта, присущем этому дому.

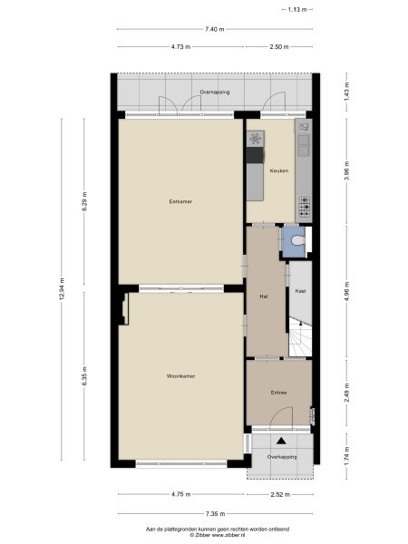
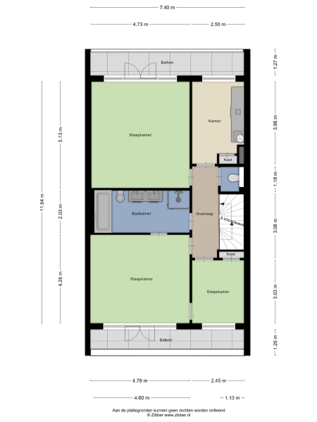
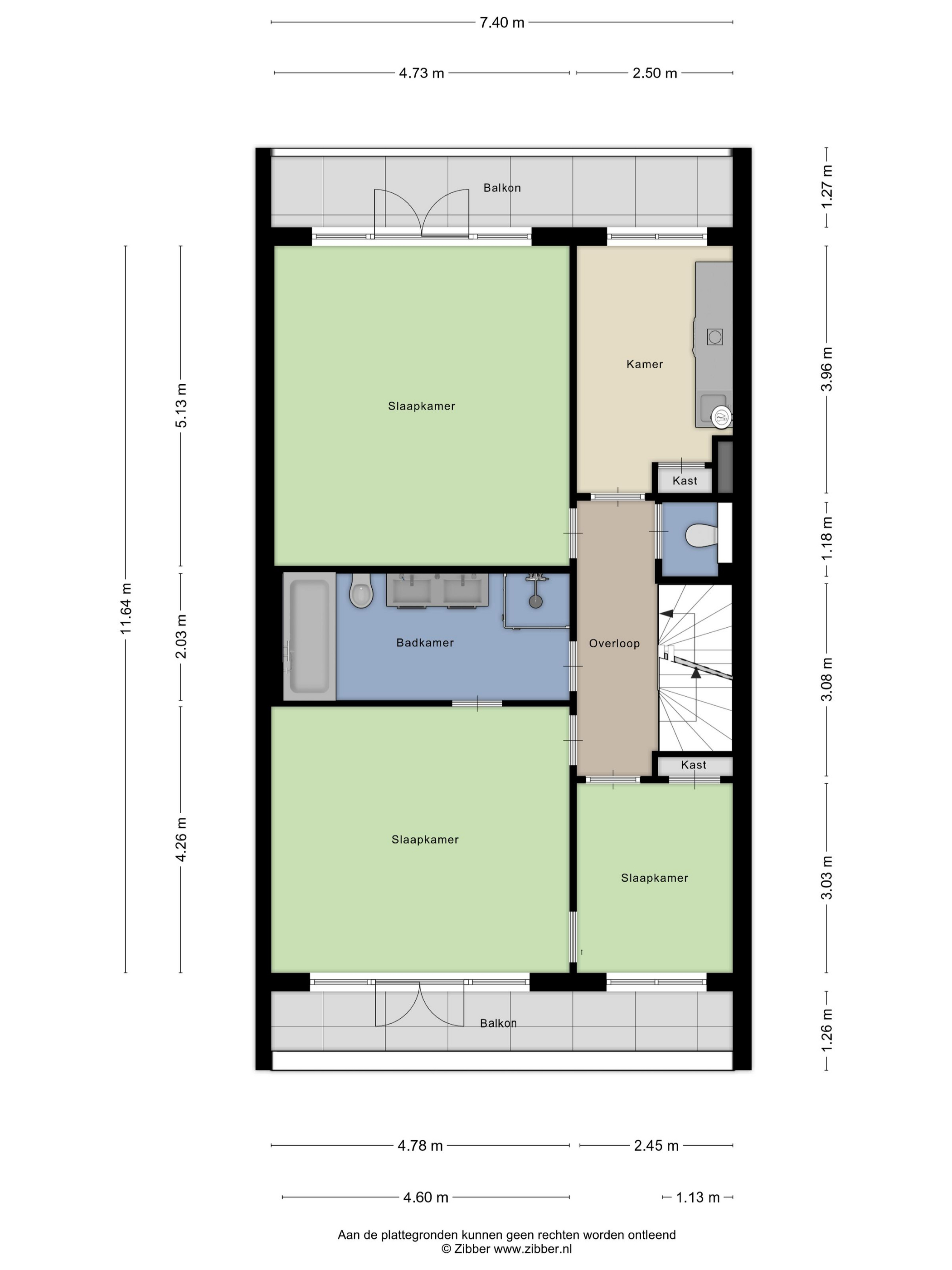
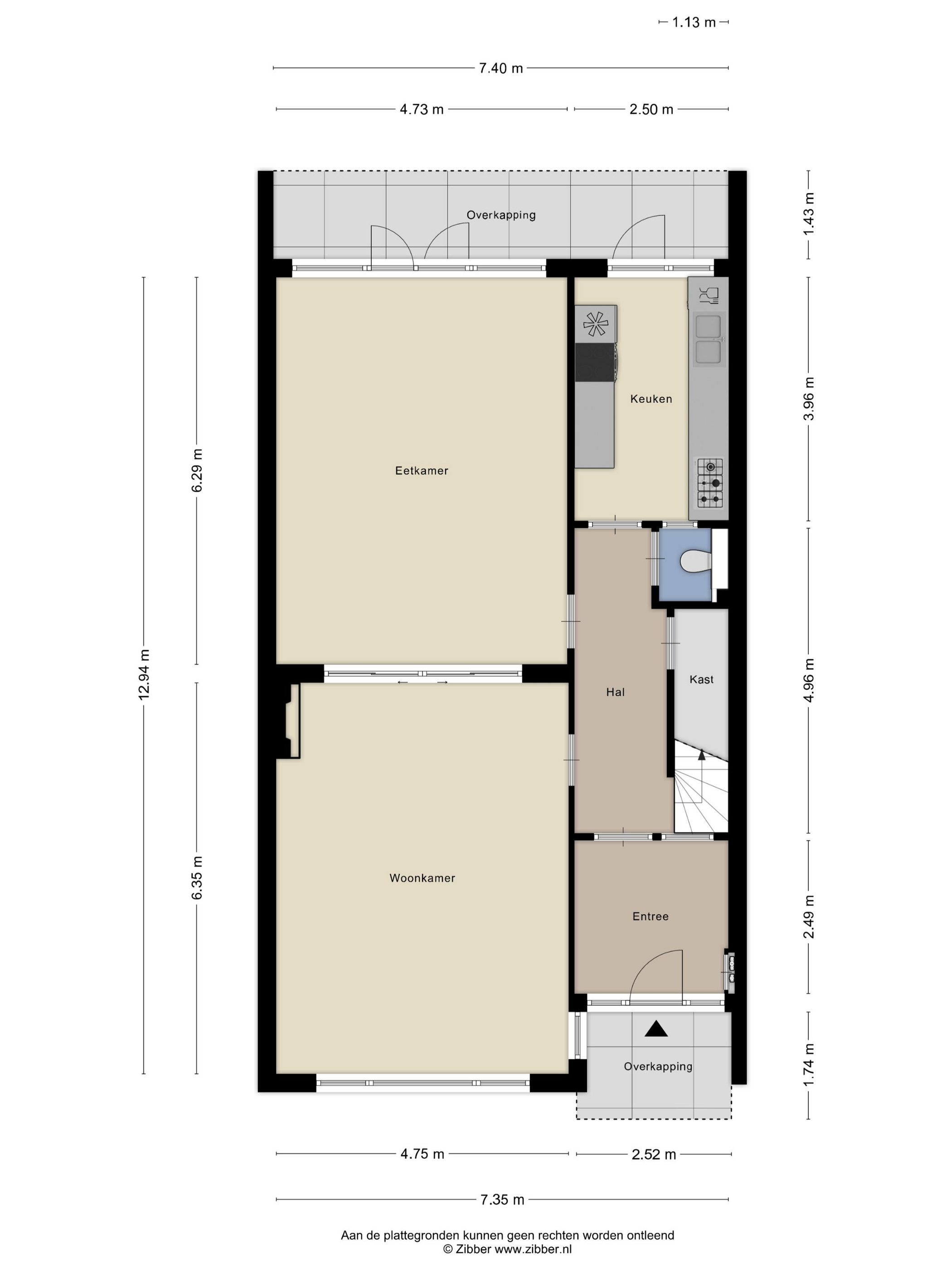
Планировка начинается с просторной гостиной площадью около 60 м², плавно переходящей через двери en suite в столовую, каждая комната органично соединяется с глубокой, залитой солнцем террасой и садом. Семь спален на трёх верхних этажах и две ванные комнаты обеспечивают пространство и удобство как для взыскательной семьи, так и для тех, кто ценит ощущение простора. Свет проникает в каждый уголок, подчеркнутый мансардными окнами и чердаком с коньком высотой 4 метра.

Особняк расположен на тихой улице, окружённой зелёными зонами, и обеспечивает непосредственный доступ к городскому парку De Leidse Hout и оживлённой улице De Kempenaerstraat с магазинами и ресторанами. В шаговой доступности — школы, спортивные клубы и объекты для отдыха, а исторический центр Лейдена и железнодорожный вокзал легко доступны на велосипеде. До пляжей Katwijk и Noordwijk можно быстро доехать на машине. Продвинутое утепление, энергетический класс B, центральное отопление и система кондиционирования обеспечивают комфорт, не жертвуя аутентичностью, делая этот роскошный herenhuis в Oegstgeest редким и уединённым убежищем.

Исследуйте Oegstgeest вместе с Baerz — вашим надежным советником и личным поисковиком недвижимости



Избегайте распространённых ошибок

Международные покупатели часто тратят ценное время на изучение дублирующихся, устаревших или вводящих в заблуждение онлайн-объявлений, особенно учитывая, что почти 30% объектов элитной недвижимости вообще не появляются на открытом рынке.
Агенты продавца представляют интересы продавца, а не ваши, и даже простой запрос о недвижимости может привести к тому, что агентство зарегистрирует вас как своего “клиента” без вашего согласия.
С Baerz Property Finders & Advisors вы полностью избегаете этих подводных камней.
Мы действуем исключительно в ваших интересах, предоставляя независимое представительство, прозрачные рекомендации и доступ ко всем доступным объектам, включая частные и вне-рыночные предложения, которых другие никогда не увидят.

Хотите узнать, как получить собственного персонального консультанта по недвижимости? Свяжитесь с нами, чтобы узнать, как мы можем представлять ваши интересы и открыть вам весь рынок.

Особенности

Alarm system
Передача права собственности
Запрашиваемая цена
€ 1.520.000 k.k.
Статус
verkocht onder voorbehoud
Принятие
in overleg
Строительство
Тип дома
Herenhuis
Тип здания
tussenwoning
Период строительства
1938
Энергетический рейтинг
B
Тип крыши
samengesteld dak
Спальни
7
Ванные комнаты
2
Площадь и объем
Жилая площадь
294 m2
Другое внутреннее пространство
0 m2
Внешнее пространство, прикрепленное к зданию
30 m2
Внешнее складское помещение
6 m2
Объем в кубических метрах
1040 m3
Размер участка
245 m2
Удобства
Mechanische ventilatie
Alarminstallatie
Aan rustige weg
Baerz & Co Property Brochure

Брошюра

Видео

Планы этажей

Graal Makelaardij

Rapenburg 4
2311 EV Leiden

info@graalmakelaardij.nl
+31 (0)71 51 61 000

www.graalmakelaardij.nl

Информация / Запрос на просмотр

Wim Graal RM profile image
Wim Graal RM
NVM Register Makelaar & Partner