Загородный дом Schoorl скрывается в глубине лесной дороги, предлагая уединенное убежище в нескольких минутах от голландского побережья. Это уникальное поместье, спроектированное архитектором Royaards в 1935 году, объединяет покой, природу и историю, делая объект по-настоящему исключительным.
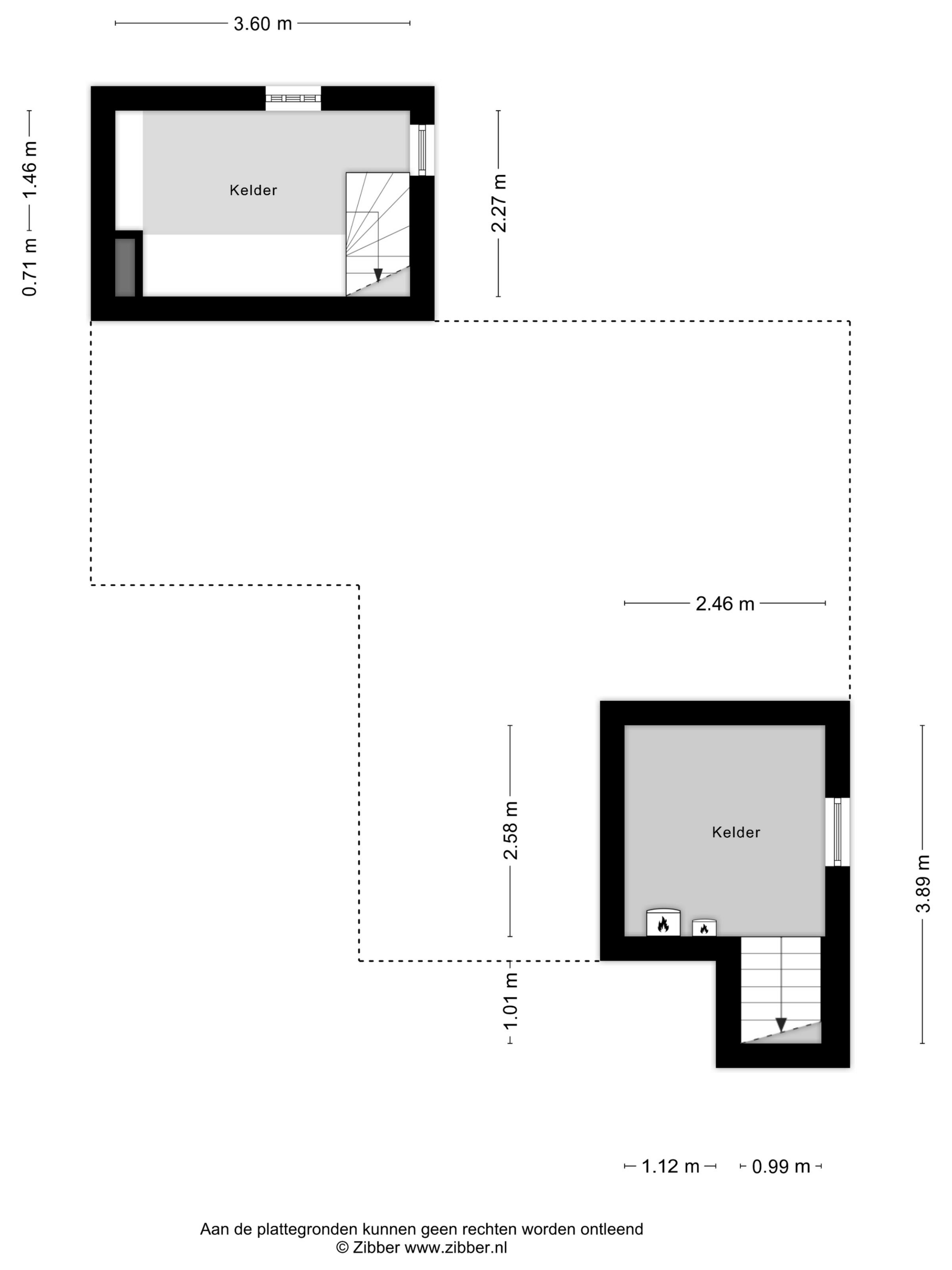
Главный дом построен с использованием материалов XVII века, что подчеркивают массивные камины, открытые дубовые балки, стены из глины и просторные дубовые полы. Щедрая жилая площадь 273 м² открывает укромные уголки и залитые светом комнаты, среди которых гостиная с видом на сад и камином, уютная передняя гостиная с приподнятой нишей и примыкающий кабинет с видом на участок, способствующий сосредоточенности. Современные удобства органично сочетаются с историей, в числе которых ванная с отделкой таделакт и отопление от центральной системы.
Душа этого дома ощущается и на улице, на частной полностью огороженной территории площадью 7 454 м², окруженной рвом и пересеченной дюнными ручьями, где всегда слышно пение птиц. На участке также расположены отдельный полностью оборудованный гостевой дом, хозяйственные постройки, спокойный чайный павильон и глиняная печь для пиццы, располагающая к уединенным или гостеприимным встречам.
С четырьмя спальнями, двумя ванными комнатами, обновленной камышовой крышей и кабельными сетями этот дом живет в ритме природы. Эксклюзивный, сдержанный стиль; загородный дом гарантирует непревзойденную приватность, комфорт и близость к земле. Редкая роскошь тишины и простора ждет вас на улице Duinweg в городке Schoorl.
Исследуйте Schoorl вместе с Baerz — вашим надежным советником и личным поисковиком недвижимости
Экспертиза и КонфиденциальностьПремиальный сектор Схоорла требует глубокого знания рынка и сильных связей. Консультанты эффективно работают с ограниченными предложениями, обеспечивая клиентам доступ к уникальным объектам. Стратегические переговоры и понимание особенностей регулирования и наследия гарантируют результат без ущерба для приватности и ценностей.
Избегайте распространённых ошибок
Международные покупатели часто тратят ценное время на изучение дублирующихся, устаревших или вводящих в заблуждение онлайн-объявлений, особенно учитывая, что почти 30% объектов элитной недвижимости вообще не появляются на открытом рынке.
Агенты продавца представляют интересы продавца, а не ваши, и даже простой запрос о недвижимости может привести к тому, что агентство зарегистрирует вас как своего “клиента” без вашего согласия.
С Baerz Property Finders & Advisors вы полностью избегаете этих подводных камней.
Мы действуем исключительно в ваших интересах, предоставляя независимое представительство, прозрачные рекомендации и доступ ко всем доступным объектам, включая частные и вне-рыночные предложения, которых другие никогда не увидят.
Хотите узнать, как получить собственного персонального консультанта по недвижимости? Свяжитесь с нами, чтобы узнать, как мы можем представлять ваши интересы и открыть вам весь рынок.