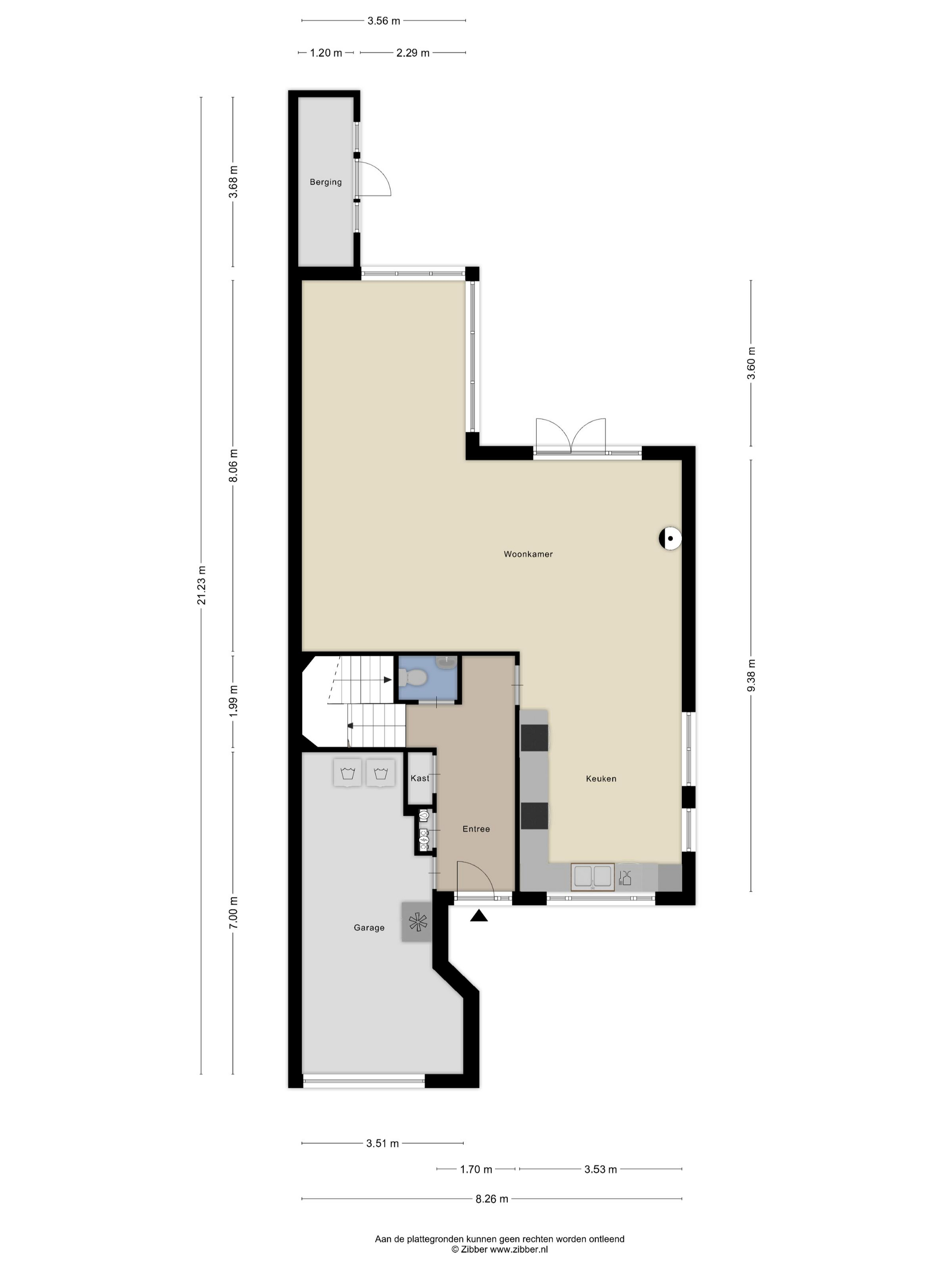
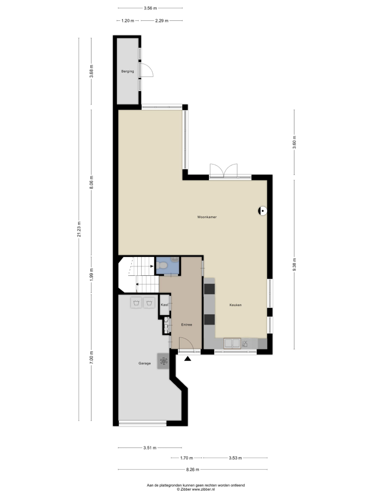
Этот смежный особняк в Валкенбурге расположен непосредственно на берегу, предлагая спокойную жизнь у воды в самом сердце региона Рандстад. В распоряжении владельцев 162 м² изысканных интерьеров на участке площадью 655 м², объединённом авторским садом и частным десятиметровым причалом на старой Рейне с лёгким выходом в сторону Лейдена и озёр Кагерплассен. Из солнечного двора можно сразу попасть к воде, где прогулки на лодке становятся частью ежедневного ритма, а озеро Валкенбург находится в шаговой доступности.
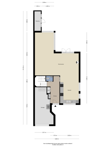
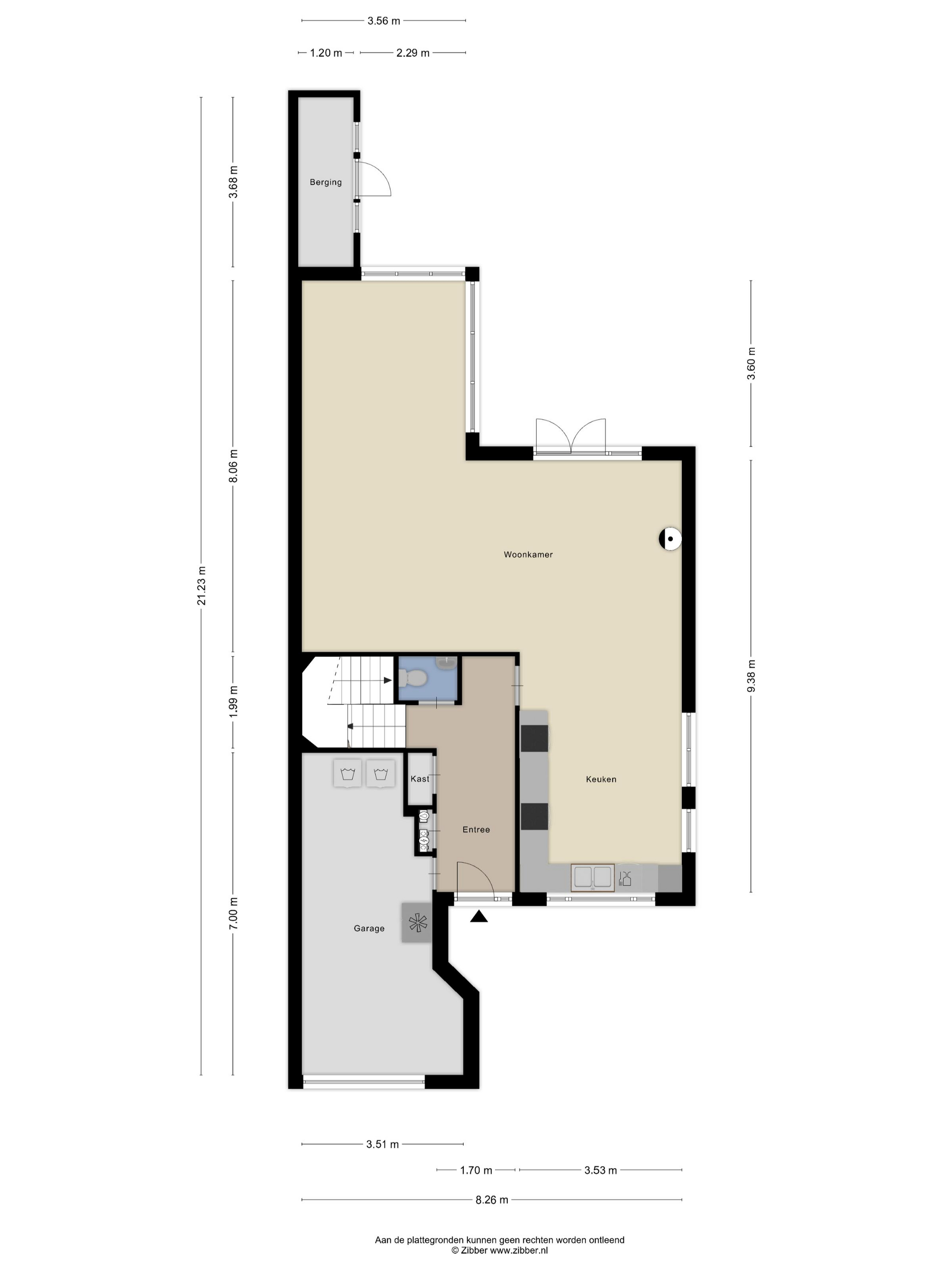
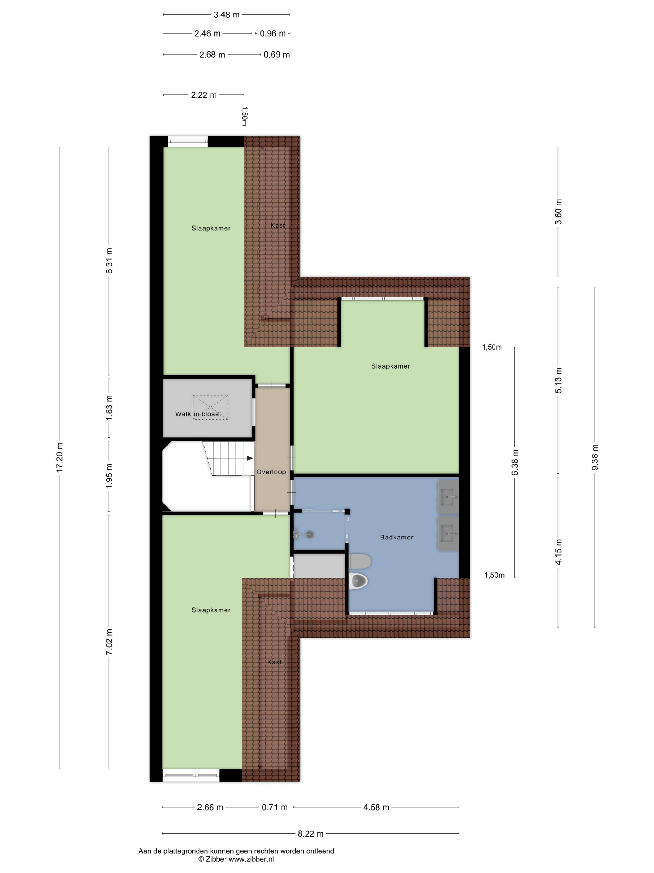
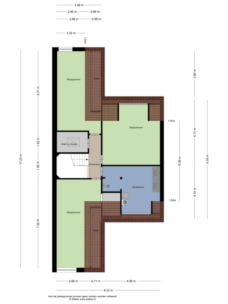
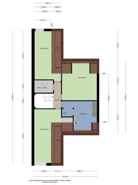
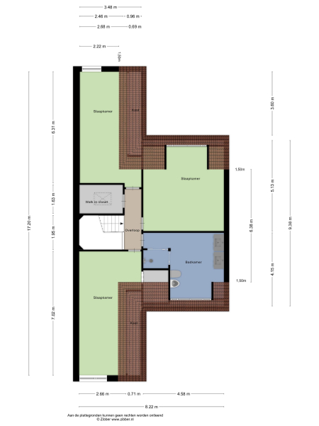
Внутри виллы гостей встречает просторный холл, ведущий в наполненную светом гостиную. Большие окна и французские двери наполняют пространство видами на сад и воду, а уют создают газовый камин и система тёплых полов по всему первому этажу. Кухня совмещает функции рабочей зоны и места для общения. Примыкающий гараж оснащён электрическими воротами и выделенными инженерными коммуникациями. На верхнем этаже размещены три спальни и роскошная ванная комната с тёплыми полами и душевой кабиной (2022), формируя приватную зону дома. Просторная гардеробная и вместительный чердак создают дополнительную гибкость, а четвёртая спальня легко может быть обустроена в будущем.
Озеленённые передний и задний дворы обеспечивают и тень, и солнечный свет, дополнены автоматической системой полива, хозяйственным сараем на берегу и частной парковкой на три автомобился. Энергетический сертификат класса B, остекление HR++ и безопасные отделки обеспечивают комфорт и спокойствие. Эта элитная вилла на продажу в Валкенбурге находится в нескольких минутах от центра Лейдена, рядом с международными школами и всего в двадцати минутах от Амстердама, аэропорта Схипхол и Гааги, благодаря чему идеально подходит для семейной и деловой жизни. Здесь жизнь определяют пространство, свет и тихое присутствие воды.
Исследуйте Valkenburg вместе с Baerz — вашим надежным советником и личным поисковиком недвижимости
Услуги местных профессионалов незаменимы из-за разнообразной архитектуры, охраны памятников и эксклюзивных внебиржевых вариантов. Опытные консультанты знают историю и потенциал районов, открывают доступ к лучшим предложениям. Их мастерство переговоров и связи с профильными специалистами обеспечивают тактическое преимущество на рынке.
Избегайте распространённых ошибок
Международные покупатели часто тратят ценное время на изучение дублирующихся, устаревших или вводящих в заблуждение онлайн-объявлений, особенно учитывая, что почти 30% объектов элитной недвижимости вообще не появляются на открытом рынке.
Агенты продавца представляют интересы продавца, а не ваши, и даже простой запрос о недвижимости может привести к тому, что агентство зарегистрирует вас как своего “клиента” без вашего согласия.
С Baerz Property Finders & Advisors вы полностью избегаете этих подводных камней.
Мы действуем исключительно в ваших интересах, предоставляя независимое представительство, прозрачные рекомендации и доступ ко всем доступным объектам, включая частные и вне-рыночные предложения, которых другие никогда не увидят.
Хотите узнать, как получить собственного персонального консультанта по недвижимости? Свяжитесь с нами, чтобы узнать, как мы можем представлять ваши интересы и открыть вам весь рынок.