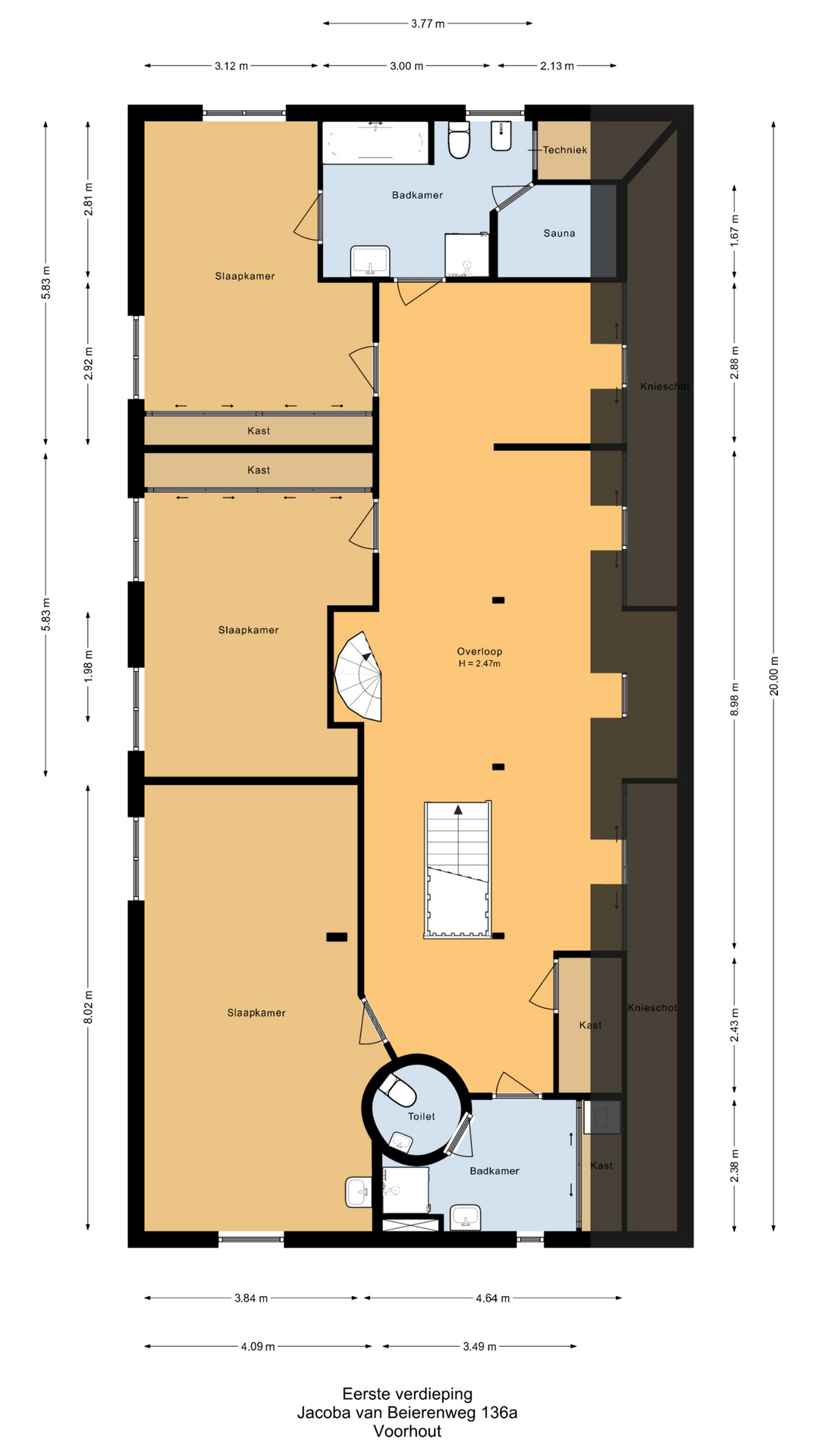
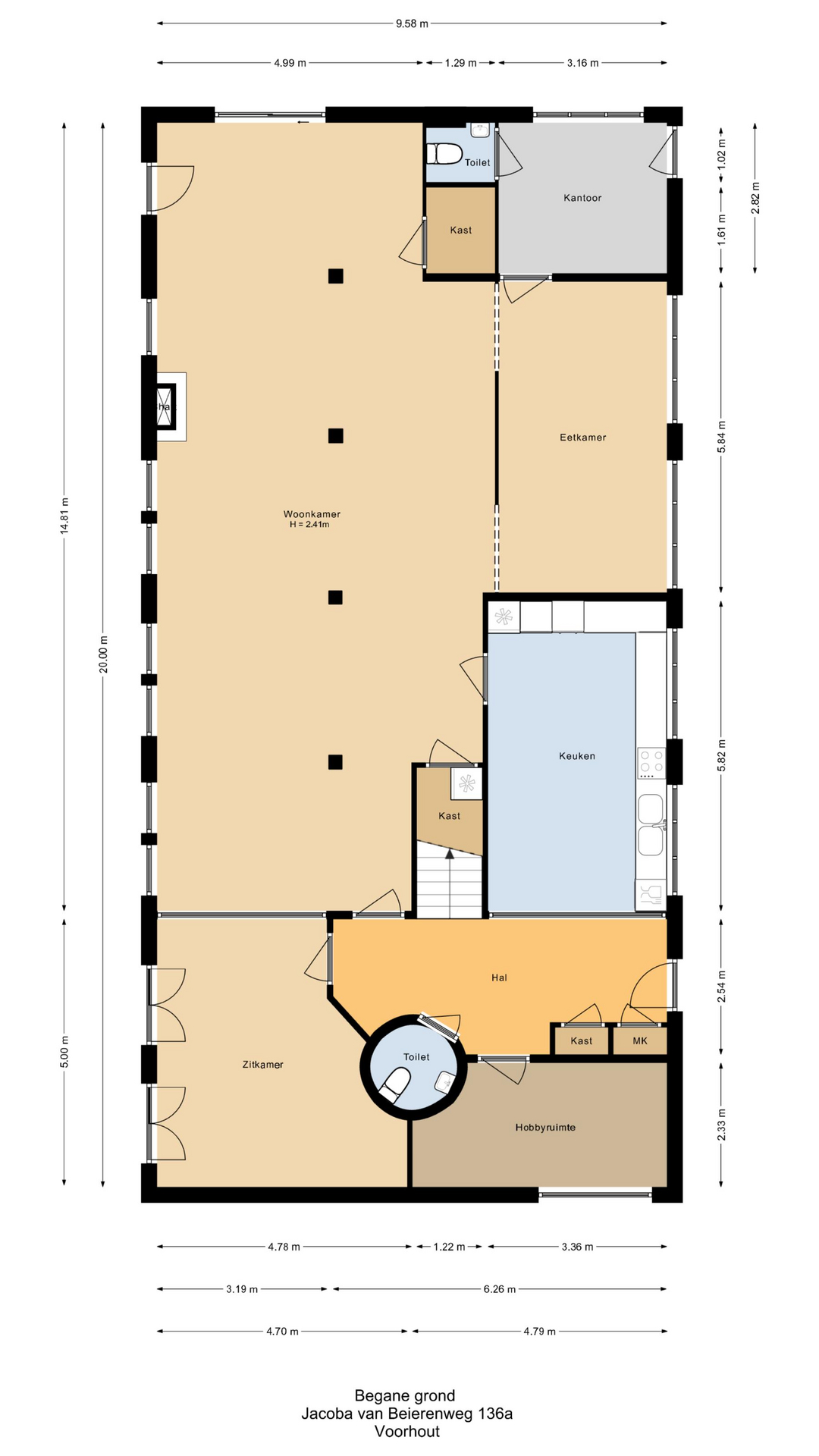
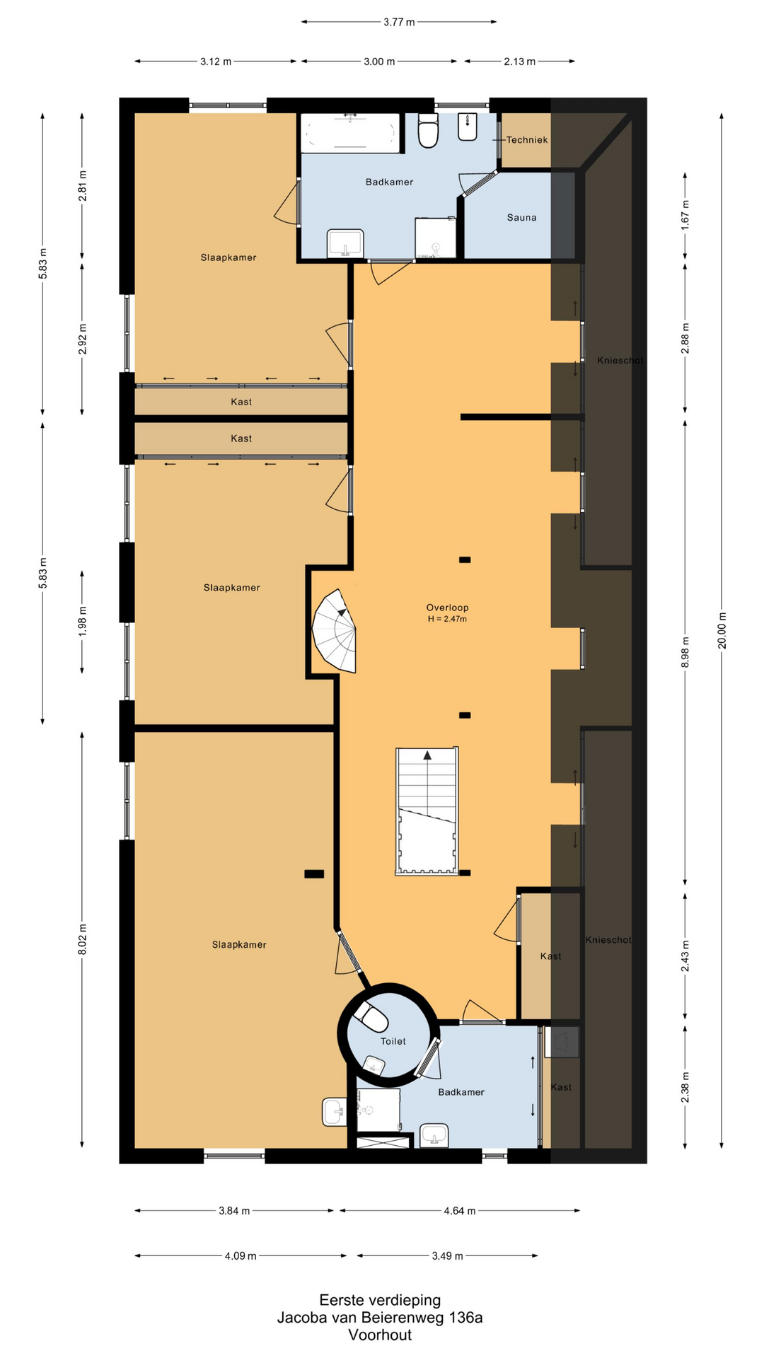
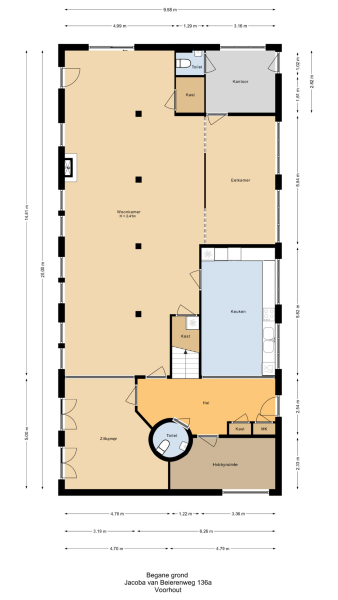
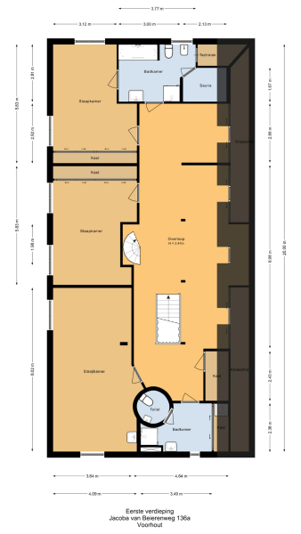
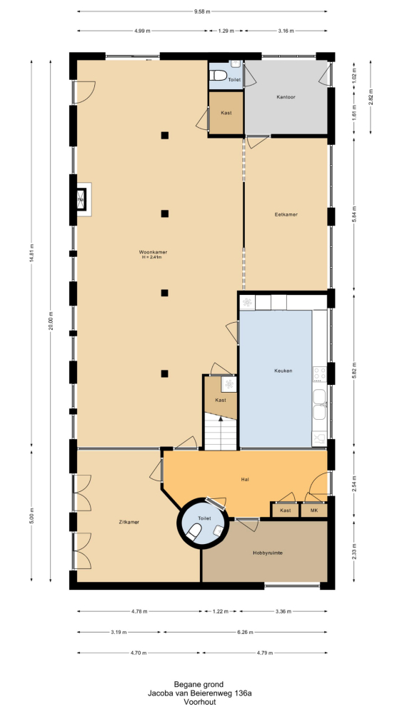
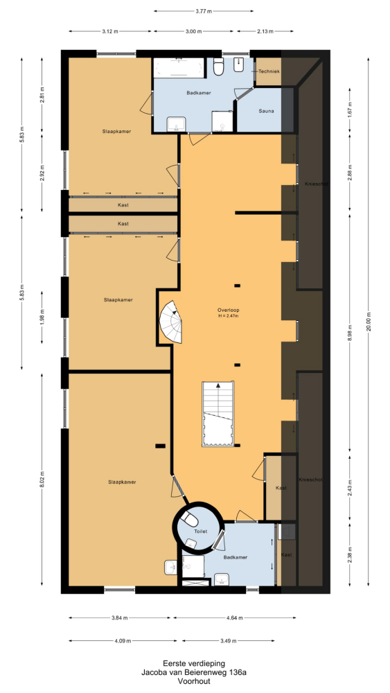
Вилла Voorhout воплощает утонченную приватность на площади 422 м², обрамленной открытыми видами и природным окружением региона Болленстрейк. Просторный холл встречает мягким светом от больших окон, подчеркивая каждую линию и поверхность. Просторные гостиные зоны, камин и отдельная столовая создают тонкую гармонию уюта и гостеприимства. Паркет и аутентичная монастырская плитка придают интерьеру спокойное начало. Пять спален, распределенных на трех уровнях, обеспечивают гибкость — все комнаты залиты естественным светом, некоторые с видом на сад и с кондиционером. Два полностью оборудованных санузла, один из которых с сауной, сопровождаются продуманными деталями: четыре туалета, достаточное количество мест для хранения и современные возможности подключения, включая оптоволокно. Кухня выходит как во двор, так и на луг, объединяя домашние ритуалы с видом на природу. Отдельные входы позволяют организовать двойную резиденцию или сочетать работу и личную жизнь. Участок в 726 м² окружает дом ландшафтным садом, кирпичным барбекю и уединенными уголками. Длинная подъездная дорога и частная парковка обеспечивают деликатность и удобство прибытия. Архитектура позволяет адаптацию под семейную жизнь или домашний бизнес. Модернизированное отопление, кондиционирование с апреля 2024 года и возможность установки солнечных панелей подчеркивают ориентированность на комфорт и будущее. Из этой виллы к удобствам деревни Voorhout и железнодорожной станции можно легко добраться на велосипеде, что обеспечивает доступ в город, не жертвуя покоем. Эта вилла дарит редкое сочетание приватности, масштаба и транспортной доступности — для тех, кто стремится к глубокой тишине в жилой среде.
Исследуйте Voorhout вместе с Baerz — вашим надежным советником и личным поисковиком недвижимости
Избегайте распространённых ошибок
Международные покупатели часто тратят ценное время на изучение дублирующихся, устаревших или вводящих в заблуждение онлайн-объявлений, особенно учитывая, что почти 30% объектов элитной недвижимости вообще не появляются на открытом рынке.
Агенты продавца представляют интересы продавца, а не ваши, и даже простой запрос о недвижимости может привести к тому, что агентство зарегистрирует вас как своего “клиента” без вашего согласия.
С Baerz Property Finders & Advisors вы полностью избегаете этих подводных камней.
Мы действуем исключительно в ваших интересах, предоставляя независимое представительство, прозрачные рекомендации и доступ ко всем доступным объектам, включая частные и вне-рыночные предложения, которых другие никогда не увидят.
Хотите узнать, как получить собственного персонального консультанта по недвижимости? Свяжитесь с нами, чтобы узнать, как мы можем представлять ваши интересы и открыть вам весь рынок.